Eladó családi ház Gödöllő 150 000 000 Ft

Leírás


Gödöllő keresett, Egyetemhez közeli részén, kertvárosias környezetben, kiváló elosztású, nappali + 4 szobás újépítésű ikerházfél referenciákkal rendelkező, megbízható építőtől eladó!

Műszaki paraméterek:

- 30-as Porotherm tégla falazat + 10cm grafit szigetelés,

- beton cserépfedés,

- födémen 20cm vastag kőzetgyapot,

- 3 réteg üvegezésű, 5 légkamrás hőszigetelt nyílászárókkal, redőny előkészítéssel,

- kondenzációs kazán vagy hőszivattyú (+3Mft), padlófűtéssel,

- riasztó előkészítés, 

- hűtő-fűtő klíma 250.000.-Ft-ig,

- bejárati ajtó: 250.000.-Ft,

- beltéri ajtók: 70.000.-Ft/db,

- kerámia burkolatok 5.500.-Ft/nm,

- parketta 4.500.-Ft/nm,

- mosdó 20.000.-Ft/db,

- WC 30.000.-Ft/db,

- csaptelepek 15.000.-Ft/db,

- kád 50.000.-Ft,

- zuhanyfolyóka 25.000.-Ft,

- helyiségenként 1db kiállás + kiállások 25.000.-Ft/db,

-  helyiségenként 1db kapcsoló + kapcsolók 35.000.-Ft/db.

Elosztás:

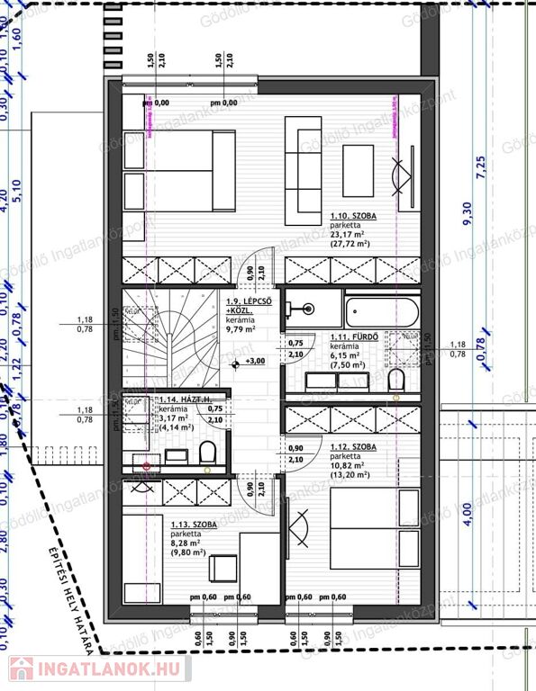
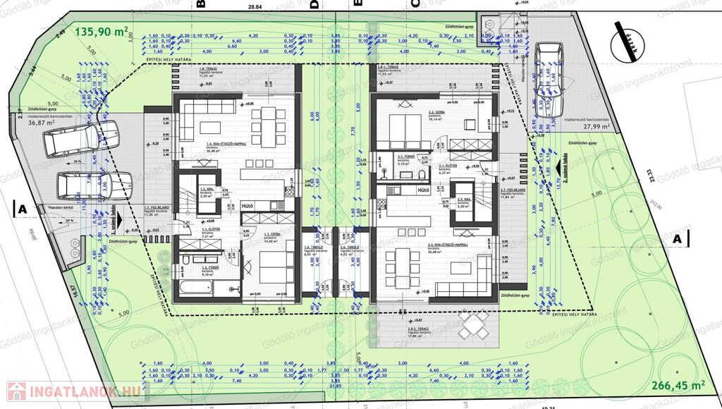
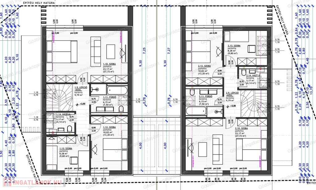
- Földszint: előtér, nappali-konyha-étkező, kamra, szoba, fürdő + 11,53nm terasz és 6,03nm tároló.

- Tetőtér: 3 szoba (az egyik kettéosztható), közlekedő, fürdő, háztartási helyiség.

Telek:

- kb.350nm-es telken helyezkedik el, parkoláshoz kocsibeálló kerül kialakításra,

- kaputól a bejárati ajtóig 1m széles, térkövezett járda,

- Kerítés díszkővel, fa vagy acél közökkel.

Környék:

- Csendes, nyugodt környék óvoda, iskola, bevásárlóközpont a közelben megtalálható. Buszmegálló, vasútállomás gyalog 5 percre van.

Az ingatlant megbízható kivitelező építi! Burkolatok, belső ajtók a vevői igényei szerint még szabadon választhatók!

Kérésre teljes műszaki tartalmat, alaprajzot szívesen küldünk!

Várható kulcsrakész átadás: szerződéskötéstől 6 hónap

Irányár: 150.000.000.-Ft

Hivatkozási szám: 2518149.

Megtekinthető telefonos időpont egyeztetés alapján:

Sápi Balázs +36 20 772-2429 sapibalazs@godolloi.hu 

GÖDÖLLŐ INGATLANKÖZPONT - www.godolloi.hu: Gödöllő és környéke legnagyobb ingatlan választéka /Gödöllő, Szada, Veresegyház, Kistarcsa, Kerepes, Erdőkertes, Fót, Dunakeszi/ eladó-kiadó családi ház, telek, lakás! Ingatlan építés és felújítás!

 

Családi ház részletei

Ár: 150 000 000 Ft
Méret: 148 négyzetméter
Azonosító: 11608223
Irodai azonosító: 2518149
Telek: 350 négyzetméter
Ingatlan állapota: Kitűnő
Jelleg: ikerház
Építőanyag: Tégla
Fűtés jellege: Központi
Komfort fokozat: Dupla komfort
Kor: Új építésű
Egész szobák: 5

Hasonló családi ház hirdetések

Eladó családi ház

Gödöllő

CasaNetWork Ingatlaniroda Gödöllő Ingatlaniroda kínálatában eladó ikerház ...

Eladó családi ház

Gödöllő

CasaNetWork Gödöllő Ingatlaniroda kínálatában eladó új építésű ...

Eladó családi ház

Gödöllő

Új építésű kulcsrakész lakás Gödöllőn – magas műszaki tartalommal! Gödöllőn ...

Eladó családi ház

Gödöllő

Gödöllőn, a központhoz közel, folyamatosan karbantartott, ...

Hasonló családi ház hirdetések

Eladó családi ház

Gödöllő

CasaNetWork Ingatlaniroda Gödöllő Ingatlaniroda kínálatában eladó ikerház ...

Eladó családi ház

Gödöllő

CasaNetWork Gödöllő Ingatlaniroda kínálatában eladó új építésű ...

Eladó családi ház

Gödöllő

Új építésű kulcsrakész lakás Gödöllőn – magas műszaki tartalommal! Gödöllőn ...

Eladó családi ház

Gödöllő

Gödöllőn, a központhoz közel, folyamatosan karbantartott, ...