Eladó családi ház Gyál 140 000 000 Ft

Leírás

Gyálon az Ady Iskola közelében, a piac térnél eladó 562 m2-es telken
160 m2-es családi ház, 70 m2 pincével, 60 m2-es melléképülettel.
Az ingatlan lakótere jelenleg fsz 80m2, emelet 80m2.
A tetőtér beépítésével (60 m2)tovább bővíthető.
A lépcső a tetőtérig kiépített.
Pince 70 m2, külső lejáratú, gépkocsi beálló és tároló található benne.
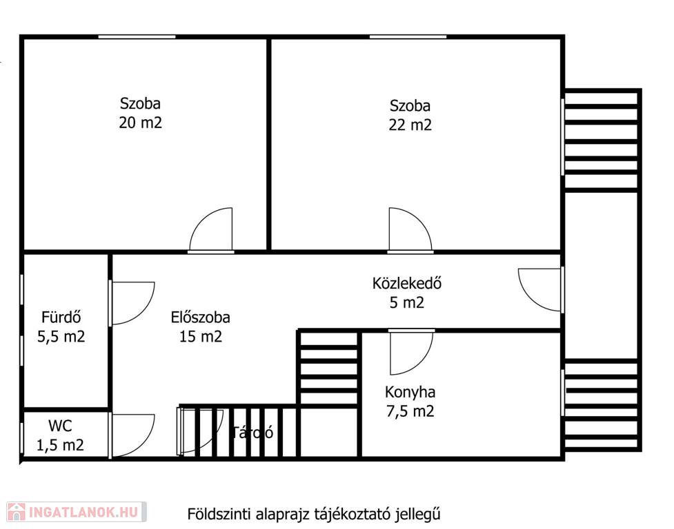
Fsz: 80 m2 fedett belépőről a közlekedőbe vezet, 2 szoba, előtér-lépcsőház,a lépcső alatt tároló,konyha, fürdő,külön WC.
Emelet: 80 m2 előtér, 3 szoba, fürdő, külön WC,lépcsőház.
2 szobához erkély is tartozik 5 m2.
Tetőtere kb. 60 m2 beépíthető.
Az ingatlan tégla falazatú, beton födémes, cserép héjalással, műanyag nyílászáróit 2022-ben építették be.
Az udvarban tégla falazatú 60 m2 szerelőaknás műhely-garázs, héjazata cserép.
Kézmosó-WC-öltöző helyiséggel rendelkezik.
Bejárata előtt a tető bővítve lett 20 m2-es fedett teraszhoz.
Alkalmas lehet önálló lakás átalakítására is.
250 m-en belül piactér, Iskola, DM,PEPCO, SPAR,üzletsor, buszmegálló.
Az ingatlan tehermentes, rövid távon birtokba vehető.
(További képekért és információkért kérem hívjon!)

Családi ház részletei

Ár: 140 000 000 Ft
Méret: 160 négyzetméter
Azonosító: 11392951
Irodai azonosító: 590560
Erkély mérete: 5.00 négyzetméter
Telek: 562 négyzetméter
Ingatlan állapota: Átlagos
Jelleg: családi ház
Építőanyag: Tégla
Fűtés jellege: Cirkó
Egész szobák: 5

Egyéb jellemzők

  • Beépíthető tetőtér
  • Csatorna
  • Garázs
  • Melléképület
  • Pince
  • Terasz

Hasonló családi ház hirdetések

Eladó családi ház

Gyál

IGAZI KIS GYÖNGYSZEM GYÁL SZÍVÉBEN – TELJESKÖRŰEN FELÚJÍTOTT, MESEBE ...

Eladó családi ház

Gyál

Eladó azonnal költözhető két generációs családi ház Gyálon – Kényelem ...

Eladó családi ház

Gyál

Azonnal költözhető 270 m²-es családi ház Gyál városközpontjában! Többgenerációs ...

Eladó családi ház

Gyál

Prémium új építésű családi házak Gyál egyik legkedveltebb részén ...

Hasonló családi ház hirdetések

Eladó családi ház

Gyál

IGAZI KIS GYÖNGYSZEM GYÁL SZÍVÉBEN – TELJESKÖRŰEN FELÚJÍTOTT, MESEBE ...

Eladó családi ház

Gyál

Eladó azonnal költözhető két generációs családi ház Gyálon – Kényelem ...

Eladó családi ház

Gyál

Azonnal költözhető 270 m²-es családi ház Gyál városközpontjában! Többgenerációs ...

Eladó családi ház

Gyál

Prémium új építésű családi házak Gyál egyik legkedveltebb részén ...