Eladó családi ház Gyenesdiás 990 000 Euro

Leírás


Azonnal költözhető új építésű családi ház! Azonnal költözhető új építésű családi ház!

A Gold Balaton Home Ingatlaniroda megvételre kínálja a 200 011-es sorszámú GYENESDIÁSI CSALÁDI HÁZAT

A családi ház 1397 m2-es területen helyezkedik el nyugodt, csendes környezetben.

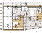
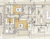
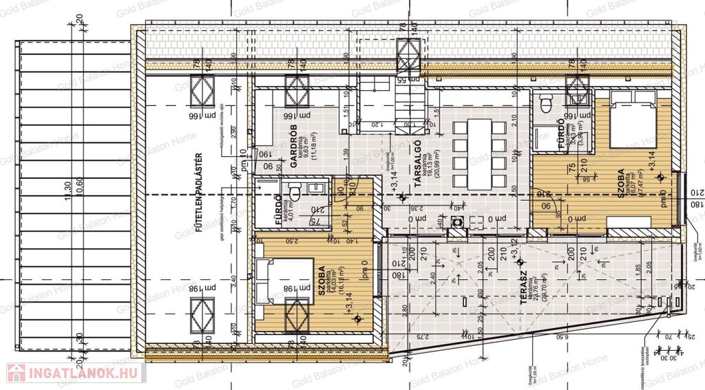
A kettő szintes ház öt hálószobával, kettő nappalival, konyha étkezővel, négy fürdőszobával, szintenként fedett terasszal épült. Kényelmes életteret biztosít Ön és családja számára a ház nagy udvarral. Az emeleti teraszról részpanorámás kilátás a Balatonra. Medence csak igény esetén épül meg, mely költsége nem szerepel az eladási árban.

2022-ben készült el egy külön álló apartman, melynek alapterülete 25 m2. Földszinten amerikai konyhás nappali, fürdőszoba, a tetőtérben egy hálószoba található.

 

Műszaki paraméterek:

- téglából épült családi ház cserép tetővel

- az épület nettó alapterülete két szinten 260 m2, plusz kettő terasz összesen 52 m2 területű

- nyílászárók három rétegű üvegezéssel, elektromos alumínium redőnnyel, szúnyoghálóval

- nappaliban nagyméretű nyílászárók

- hőszivattyús fűtés padlófűtéssel

- kiépítésre kerül: klíma, riasztó, elektromos kapu

- 6 KW teljesítményű napelem

 

Az ingatlan egyéb jellemzői:

- füvesített, rendezett, körbekerített terület

- térkővel lerakott udvarrész

Gyenesdiáson orvosi rendelők, gyógyszertár, iskola, óvoda, bölcsőde, több üzlet található.

Amennyiben hirdetésem felkeltette érdeklődését, kérem, keressen bizalommal!

 

Irodánk szolgáltatásai igény esetén: ügyvéd, energetikai tanúsítvány, hitelügyintézés, értékbecslés, statikus, földmérő, belsőépítész. Biztonság, szakértelem - GOLD BALATON HOME - „Élj ott, ahol mások nyaralnak”

Családi ház részletei

Ár: 990 000 Euro
Méret: 312 négyzetméter
Azonosító: 11607394
Irodai azonosító: 731200011
Cím: Bem józsef
Telek: 1397 négyzetméter
Ingatlan állapota: Kitűnő
Jelleg: családi ház
Építőanyag: Tégla
Komfort fokozat: Dupla komfort
Kor: Új építésű
Egész szobák: 7