Eladó családi ház Gyenesdiás 95 000 000 Ft

Leírás



Kedves Érdeklődő!

Szeretnék figyelmébe ajánlani egy gyenesdiási, rendkívűl kellemes környezetben elhelyezkedő földszintes (gondolván az idősekre is) praktikus kialakítással tervezett jelenleg szerkezetkész készültségi fokig megtervezett és kialakított ingatlant. Itt fontos tudni, hogy a jelenlegi készültségi fokot tartalmazza az ár, de a kivitelező mindenképpen kulcsrakészen adja át az ingatlant. Manapság egy ilyen beruházás személyre szabása irányok nélkül szinte lehetetlen. Éppen ezért itt a tulajdonos izlésére és pénztárcájára szeretné a kivitelező befejezni és leszervezni az adott építkezést. Ez a tulajdonosra nézve sokkal megnyugtatóbb, mert valjuk be nem kevésbe kerül egy ilyen családi ház kialakítása, de nem kell nyüglődnie azzal, hogy szakembereket keressen, de még a saját izlését is fogja a végén tükrözni.

A telek 2247m2, mely két családi ház kialakítását adja lehetőségként, valamint mindegyik épülethez van lehetőség egy-egy garázs megépítésére. Ezen felül az épület megépítése mellett teljes parkosítási is, térkövezés, kerítés építés benne foglaltatik majd a megbízásban. Ezek részleteiről elsőre én fogom tájékoztatni bemutatás folyamán.

Tervezett paraméterek:
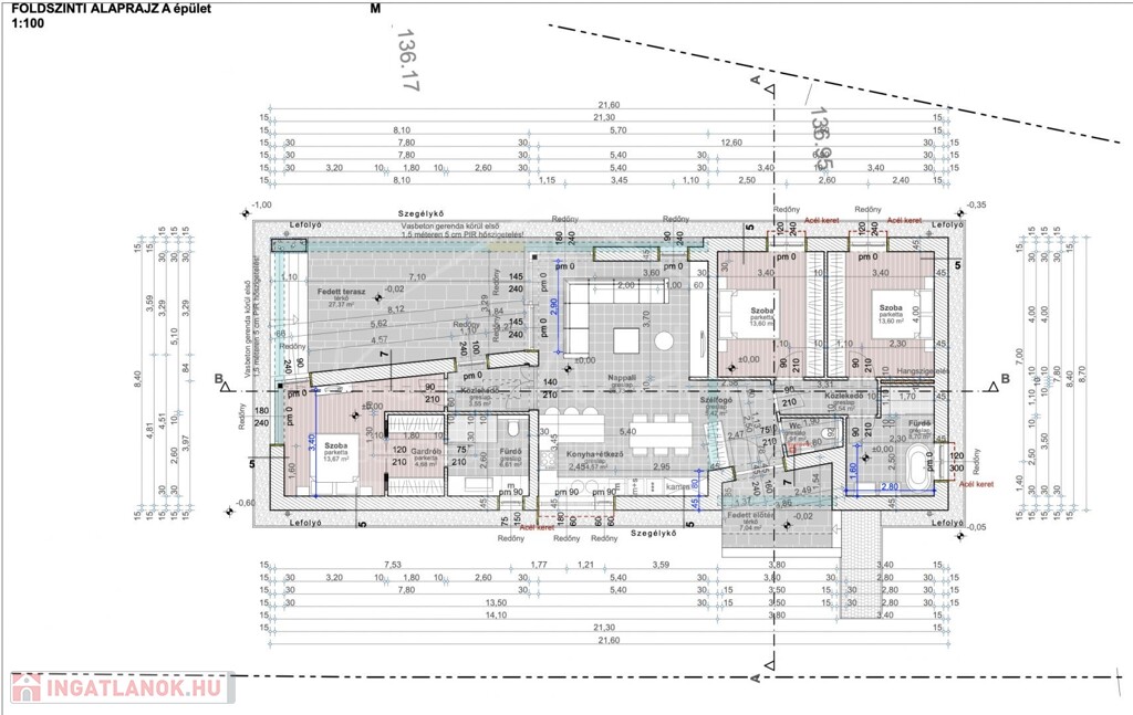
• Épület belső nettó mérete 127 m2, fedett előtér bejáratnál 7m2, fedett terasz 27m2, összesen 151 m2. Ehhez tartozik egy különálló garázs, mely 46 m2
• Tartalmaz 1 amerikai konyhás étkezős nappalit, 3 szobát, 2 fürdőt, 2 gardróbot, 1 vendég toalettet, közlekedőt és fedett teraszt
• Az lakóépület Porothterm (Thermo Rapid falazati rendszer) 44cm-es okos téglából készült, mely már nem kap szigetelést, hisz ez már megfelelel a mai korszerű szigetelési elvárásnak. Tetőszerkezete 35 fokos, mely betoncserepes fedést kapott, födéme 2x15cm-es ásványgyapot szigetelést kap. Részletekért személyesen.
• 3 rétegű műanyag nyílászárók lesznek beszerelve
• Az épület fűtésére padlófűtést terveztek, valamint mennyezeti hűtés-fűtést hőszivattyú segítségével. Ehhez természetesen 3 fázisos villany szükséges H tarifával együtt.
• A különálló garázs alapja beton és a falszerkezetét könnyűszerkezetesre tervezték.

A LAKÓÉPÜLET elrendezésével kapcsolatban kérem nézzék meg az alaprajzot. További rajzokat (metszet, helyszínrajz egyéb) a személyes találkozó során beszéljük át.

Egyéb tudnivalók:
• A telek 2247 m2-es, melyet a kivitelező teljes mértékben az épületek teljes elkészítésén felül a parkosítást és a térkövezést is elvégzi megegyezés szerinti határidőn belül. Természetesen extra igényeket is megoldanak, de ami nincs bent a tervekben azokat külön megegyezés szerint intézik.
• Az épület egyébként déli tájolású, a kert is déli balatoni fekvésű. Kicsit még a teraszról is látszik a Balaton.
• Balatonpart 1,5 km-re van mindösszesen, gyalog 20 perc alatt kényelmesen leérhetünk a strandra, de kocsival 5 perc. Biciklis út is pár perc alatt elérhető.


Az ingatlan egy családiházas övezetben helyezkedik el. Keszthelytől mindössze 2 km-es távolságra van, autóval pár perc. Kórház, orvosi rendelő, gyógyszertár, Interspar, Tesco, Alfapark 5 percen belül megközelíthető autóval.

Gyenesdiás az üdülőövezetek egyik kedvelt helye, gyerekbarát stranddal rendelkezik, sok étterem, szórakozási lehetőség található itt a parton.
A közeli Keszthely városa viszont idegenforgalmi szempontból is nagyon jelentős, folyamatosan újul. Sok látnivalója van, többek között a Festetics Kastély, Balaton múzeum, Csigaparlament, Játék múzeum, Baba múzeum stb.
Részben idősebbeknek ajánljuk Hévízt termálvizes fürdői miatt, terápiákat és sok egyéb lehetőséget ajánl.
A közelben nagyon sok hely van, amit érdemes meglátogatni. Többek között Balatongyöröki szépkilátó, Szigligeti vár, Badacsony, Tapolcán a Tavas Barlang. A túrázóknak is akad itt bőven lehetőség. Közelben van a Vadlánlik barlang Gyenesdiáson, az erdőben is vannak kijelölt túra ösvények, amiket érdemes kipróbálni.

AZ INGATLAN TULAJDONVISZONYAI RENDEZETTEK, TEHERMENTES!

Ha ezen ajánlatunk felkeltette érdeklődését, komolyak a szándékai, esetleg kérdése van, kérem forduljon hozzám bármikor bizalommal!

További videóval tudok szolgálni!!

Komoly érdeklődés esetén átbeszéljük a részleteket, továbbiakat.

Üdvözlettel: Kuti Andrea

Családi ház részletei

Ár: 95 000 000 Ft+ÁFA
Méret: 151 négyzetméter
Azonosító: 11358904
Irodai azonosító: 109636
Cím: Gyenesdiás
Telek: 1000 négyzetméter
Ingatlan állapota: Szerkezetkész
Jelleg: családi ház
Építőanyag: Kérdezzen rá a hirdetőtől »
Fűtés jellege: Cirkó
Egész szobák: 4

Egyéb jellemzők

  • Terasz

Hasonló családi ház hirdetések

Eladó családi ház

Gyenesdiás

ELADÓ CSALÁDI HÁZ! GYENESDIÁS BALATON! Alapterület - 90 m² Gyenesdiás KIVÁLLÓ ...

Eladó családi ház

Gyenesdiás

A Gold Balaton Home Ingatlaniroda megvételre kínálja a 100 384-es sorszámú ...

Eladó családi ház

Gyenesdiás

Rendkívüli lehetőség !  Gyenesdiás erdő alatti részén ...

Hasonló családi ház hirdetések

Eladó családi ház

Gyenesdiás

ELADÓ CSALÁDI HÁZ! GYENESDIÁS BALATON! Alapterület - 90 m² Gyenesdiás KIVÁLLÓ ...

Eladó családi ház

Gyenesdiás

A Gold Balaton Home Ingatlaniroda megvételre kínálja a 100 384-es sorszámú ...

Eladó családi ház

Gyenesdiás

Rendkívüli lehetőség !  Gyenesdiás erdő alatti részén ...