Eladó családi ház Győr 165 000 000 Ft

Leírás

MEDITERRÁN ÉLETÉRZÉS CSANAKON
Csak a Tradíció Ingatlan kínálatában!
Győr kedvelt kertvárosi részén, Ménfőcsanak csendes, forgalom mentes mellékutcájában kínálom eladásra ezt a gyönyörűen parkosított 1830 m2-es telken lévő, nappali + 3 hálószobás, újszerű állapotú, 2014-ben téglából épült családi házat.
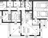
A bruttó 150 m2-es ingatlan nettó 96,66 m2-es lakótérből, 34,80 m2-es két gépjármű kényelmes parkolására alkalmas garázsból és egy fényben úszó, 18,66 m2-es teraszból áll.
A 15 cm szigeteléssel rendelkező ingatlan többféle gazdaságos fűtési móddal rendelkezik.
A melegvizet is biztosító Ariston típusú gázkazán mellett a fűtésről a kazánházban egy puffertartállyal is rendelkező vegyes-tüzelésű kazán, valamint 2 db hűtő-fűtő klíma gondoskodik.
A kerámiával burkolt helyiségek padlófűtéssel és radiátoros fűtéssel rendelkeznek, a szőnyegpadlós hálószobák fűtését radiátorok biztosítják.
A hőszigetelt, kiváló minőségű fa nyílászárók redőnnyel és szúnyoghálóval is rendelkeznek.
Az 1830 m2-es gyönyörűen karbantartott, parkosított, trópusi, mediterrán hangulatú telken a ház mellett egy medence, egy kazánház és egy fedett tároló is helyet kapott.
A motoros kapuval rendelkező duplagarázs előtt egy térkövezett gépkocsibeálló lett kialakítva.
Az ingatlannal kapcsolatban részletekért, bővebb információkért és megtekintésért kérem HÍVJON!

A Tradíció Ingatlaniroda az alábbi szolgáltatásokkal áll az ügyfelek rendelkezésére:
- lakossági és ipari ingatlanok értékesítése és bérbeadása
- díjmentes pénzügyi tanácsadás, hitelügyintézés (lakáshitelek, állami támogatások (CSOK, ÁFA) Babaváró hitel, személyi kölcsön, Lakástakarék)
- jogi háttérrel adásvételi szerződések készítése kedvező feltételekkel
- energetikai tanúsítvány készítése
- ingatlan értékbecslése
Lakások, családi házak, egyéb ingatlanok teljeskörű felújítását, átépítését, külső szigetelését vállaljuk.
Ha eladó vagy kiadó ingatlannal rendelkezik, akkor kérem keressen!

Rosenbecker Tamás

Családi ház részletei

Ár: 165 000 000 Ft
Méret: 150 négyzetméter
Azonosító: 11592151
Irodai azonosító: 124132
Cím: Győr
Telek: 1830 négyzetméter
Ingatlan állapota:
Jelleg: családi ház
Építőanyag: Kérdezzen rá a hirdetőtől »
Fűtés jellege: Cirkó
Egész szobák: 4

Egyéb jellemzők

  • Terasz

Hasonló családi ház hirdetések

Eladó családi ház

Győr

évfaluban családi-ikerház eladó! A Ciklámen utcai új lakóparknál ...

Eladó családi ház

Győr

Megvételre kínálok egy 13 szobás apartmanházat, amelyhez ...

Eladó családi ház

Győr

Meghitt otthon két generációnak – vagy akár plusz bevételi ...

Eladó családi ház

Győr

MEDITERRÁN ÉLETÉRZÉS CSANAKON Csak a Tradíció Ingatlan kínálatában! Győr ...

Hasonló családi ház hirdetések

Eladó családi ház

Győr

évfaluban családi-ikerház eladó! A Ciklámen utcai új lakóparknál ...

Eladó családi ház

Győr

Megvételre kínálok egy 13 szobás apartmanházat, amelyhez ...

Eladó családi ház

Győr

Meghitt otthon két generációnak – vagy akár plusz bevételi ...

Eladó családi ház

Győr

MEDITERRÁN ÉLETÉRZÉS CSANAKON Csak a Tradíció Ingatlan kínálatában! Győr ...