Eladó családi ház Győr 66 500 000 Ft

Leírás


Új Építésű Lakások - Beruházótól! – Menjen biztosra, foglalja le most! 2025 szeptemberben  indul a B TÖMB építse, a Hegyalja Lakóparkban Győrújbaráton, egy modern és igényes sorházas lakóprojektben, ahol 3 ingatlan közül választhat, amire már most lehetőség van szerződni.  

Fűtéskész átadás 2026 áprilisában lesz, a hirdetési ár erre vonatkozik (B tömb L3)!

A B tömb szélső lakásainak fűtéskész ára: 66,5 M Ft  /db

A B tömb középső lakásának fűtéskész ára: 64,5 M Ft.

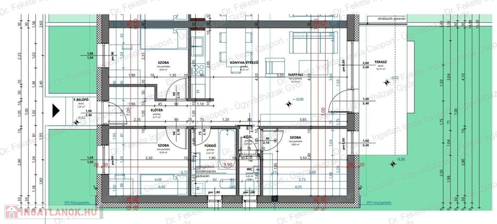
Minden lakás mérete megegyezik, csak a kert mérete változó.(Lásd alaprajzok)

 

Lakótér 66,55 nm (nappali + 3 szoba) fürdő - WC (egyben és külön) padlástér cca. 6 nm, lenyitható lépcsővel. 

Terasz: 10,75 nm. 

Kertkapcsolat: 139,91 nm + előkert 5,32 nm

Az ingatlanok 100%-os szerkezeti és közmű készültséggel kerülnek átadásra, igény szerint kulcsrakész állapotban is elérhetőek!

 

Műszaki Tartalom

•          Beton alapozás, tégla teherhordó falazat, 20 cm-es külső szigetelés

•          Magas tetős kialakítás, komplett tetőszerkezettel, ereszcsatornával

•          Aljzatbeton elkészítve, egyenletes, burkolásra előkészített felülettel

•          Modern, esztétikus színezés

•          Víz- és szennyvízhálózat kiépítve 1 db kerti csap kiállás a teraszon

•          A nappaliban a klíma beltéri egységnek csordalékvíz elvezetés kiépítés

•          Elektromos redőny előkészítés

•          Elektromos hálózat alapszerelve. A lakások csatlakozási teljesítménye 1x32 A

•          Külön mérőóra kialakítás minden lakáshoz

•          3 rétegű hőszigetelt nyílászárók (u=0,7), bejárati ajtó: MABISZ minősítésű

•          BOSCH kondenzációs kazán az optimalizált padlófűtéshez

•          A fürdő és WC rendkívül hatékony kürtős szellőztetést kap a középső lakásban,

•          A szélső lakások természetes szellőzést biztosító ablakkal ellátottak

•          Terasz: fagyálló térkő burkolattal

•          A kertkapcsolat átlapolt 220cm átláthatatlan antracit kerítéssel készül

•          Bejáratnál csengő, világítás lámpával, az ehhez tartozó kapcsoló kerül kialakításra

 

Külső környezet:

•          járdák,

•          Gépkocsibeállók kockakő burkolattal 2,5 M Ft / db

•          Alkonykapcsolós külső világítás

 

Ez a projekt tökéletes választás:

•          aki modern, energiatakarékos és igényesen kivitelezett otthont keresnek

•          családosoknak, akik saját igényeik szerint szeretnék befejezni otthonukat

•          befektetőknek, akik értéknövelő lehetőséget keresnek

 

További információért, alaprajzokért, opcionálisan rendelhető extrákért érdeklődjön most!

Várom hívását.

Kulcsrakész kivitelezés: bruttó 110.000 Ft/m² áron, külön műszaki leírás alapján, kérje részletes ajánlatunkat!

A hirdetésben szereplő képek a már elkészült / átadott lakásokról készültek, amelyek az ön ingatlanának méretével azonosak. A képek és a látványképek az értékesítés célját szolgálják.

 

Várom hívását! +36 20 481 3369 Hartmann-né Viki

Családi ház részletei

Ár: 66 500 000 Ft
Méret: 74 négyzetméter
Azonosító: 11559824
Irodai azonosító: 210600625
Cím: VERESS PÉTER (B tömb L3)
Telek: 144 négyzetméter
Összesített energetikai besorolás: B
Ingatlan állapota: Kitűnő
Jelleg: családi ház
Építőanyag: Tégla
Fűtés jellege: Egyéb
Komfort fokozat: Összkomfort
Kor: Új építésű
Egész szobák: 4

Hasonló családi ház hirdetések

Eladó családi ház

Győr

Győr Szabadhegyen, a József Attila utcában eladó, egy 80'as években ...

Eladó családi ház

Győr

Város a városban!  Egy biztonságos közeg Győr belvárosától, ...

Eladó családi ház

Győr

Több lehetőséget tartogató családi ház eladó. Győr-Újvárosban, ...

Eladó családi ház

Győr

Csak a Tradíció Ingatlan kínálatában. Kis ház a városszélén Győr ...

Hasonló családi ház hirdetések

Eladó családi ház

Győr

Győr Szabadhegyen, a József Attila utcában eladó, egy 80'as években ...

Eladó családi ház

Győr

Város a városban!  Egy biztonságos közeg Győr belvárosától, ...

Eladó családi ház

Győr

Több lehetőséget tartogató családi ház eladó. Győr-Újvárosban, ...

Eladó családi ház

Győr

Csak a Tradíció Ingatlan kínálatában. Kis ház a városszélén Győr ...