Eladó családi ház Győrság 59 900 000 Ft

Leírás

KIVÉTELES LEHETŐSÉG, ne hagyja ki! Hívjon mielőbb, mert nem lesz meg sokáig!

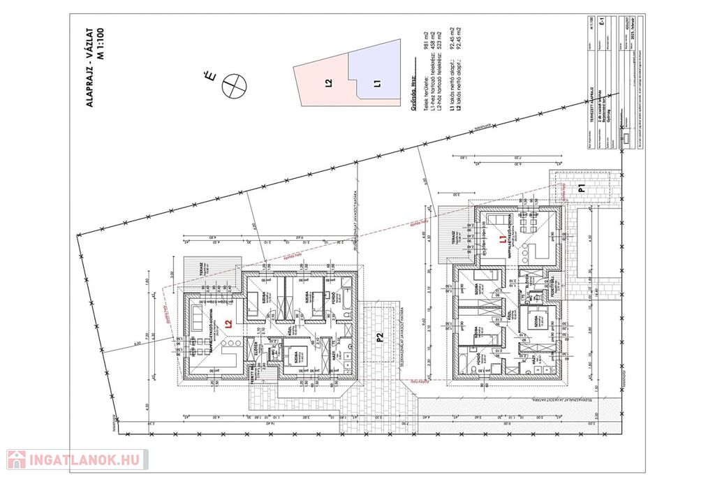
Győrság új parcellázású, csendes utcájának egyik legszebb telkén épülő ikerház L2 lakását kínálom Önnek.
A két épület egy 981 m2-es nagyon szép panorámás telken épül fel. A házak teljesen elkülönülnek egymástól, közös faluk nincs. Kerítéssel elválasztható a két telekrész.

A 523 m2 saját telekhányaddal rendelkező 92,45 m2-es ház helyiségei: amerikai konyhás nappali, 3 hálószoba, fürdőszoba+ WC, közlekedő, háztartási helyiség, WC és előszoba.
Az ingatlanhoz 14,8 m2 terasz és fedett bejárat tartozik.

Az ár fűtéskész állapotra vonatkozik 5% Áfával és tartalmazza a telekhányadot.
Megbízható kivitelező! Megtekinthető referencia házak.

Várható befejezés: 2025. év vége

Műszaki tartalom:
- Leier 30-as N+F tégla falazat, 10 cm tégla válaszfalak
- Gealan típusú, 3 rétegű üveggel ellátott fehér hőszigetelt ablakok, Igényes, hőszigetelt bejárati ajtó
- Baumit Star EPS hőszigetelő rendszer 15 cm homlokzati szigeteléssel
- padlószerkezetbe 10 cm lépésálló hőszigetelés kerül
- fafödém 30 cm Rockwool Multirock ásványgyapot hőszigeteléssel. ,
- Terran Synus tetőcserép
- kondenzációs gázkazán minden helyiségben padlófűtéssel

Egyéni megbeszélés alapján értékegyeztetéssel még választható. ( Napelem, klíma, hőszivattyú.)

Ajánlom mindazoknak akik Győr vonzáskörzetének egyik kiemelkedően fejlődő településén, kellemes környezetben szeretnék élni életüket.
CSOK nélkül is ILLETÉKMENTES!

Hitelre lenne szüksége? Irodánk bank független tanácsadással és díjmentes hitelügyintézéssel áll rendelkezésére. Babaváró, CSOK, piaci és támogatott hitelek. Megkeressük Önnek a legkedvezőbb megoldást.

További információkért hívjon bizalommal. Válasszuk ki az Önnek legmegfelelőbb lakást közösen!
Várom hívását! 20/2777237

Családi ház részletei

Ár: 59 900 000 Ft
Méret: 92 négyzetméter
Azonosító: 11495631
Irodai azonosító: 117277
Cím: Győrság
Telek: 523 négyzetméter
Ingatlan állapota: Átlagos
Jelleg: családi ház
Építőanyag: Kérdezzen rá a hirdetőtől »
Fűtés jellege: Cirkó
Kor: Új építésű
Egész szobák: 4

Egyéb jellemzők

  • Terasz

Hasonló családi ház hirdetések

Eladó családi ház

Győrság

Győrság-Halomalja újonnan kialakult kedvelt részén, festői környezetben, ...

Eladó családi ház

Győrság

Nappali + 3 szobás ház eladó! Győrság új építésű ...

Eladó családi ház

Győrság

Tökéletes OTTHON várja családod! ÚJ ÉPÍTÉSŰ családi házak elérhető ...

Hasonló családi ház hirdetések

Eladó családi ház

Győrság

Győrság-Halomalja újonnan kialakult kedvelt részén, festői környezetben, ...

Eladó családi ház

Győrság

Nappali + 3 szobás ház eladó! Győrság új építésű ...

Eladó családi ház

Győrság

Tökéletes OTTHON várja családod! ÚJ ÉPÍTÉSŰ családi házak elérhető ...