Eladó családi ház Győrzámoly 126 990 000 Ft

Leírás


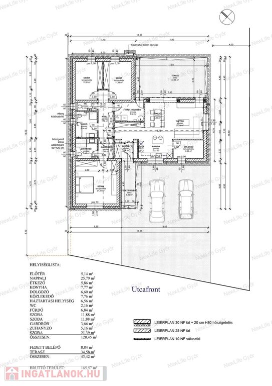
Az egyik legkedveltebb szigetközi településen, Győrzámolyon ajánlom megvételre ezt az 858m2-es telekre épülő 128 m2 alapterületű (+35nm terasz) 4 szobás, nappali-étkező-konyhás házat. 

 

Egy ingatlan, amely egyszerre otthon és értékálló befektetés.

 

Fontosabb műszaki adatok:

A ház 30NF falazóelemekből épül 12cm-es aljzatszigeteléssel, fafödémes (30cm födémszigetelés), a homlokzatra 20 cm vastag Drywit hőszigetelő rendszer kerül. Nyílászárói 6 légkamrás 3 rétegű hőszigetelt műanyag ablakok A fűtését és melegvíz ellátását hőszivattyú látja el padlófűtéses hőleadással.

 

 

Miért érdemes megvenni? (A teljesség igénye nélkül)

-modern stílusú ház, szép környezetben

-négy szoba + nappali

-gépesített konyhabútor

-hűtő-fűtő klma

-rejtett tokos, alumínium motoros redőnyök mindenhol

-kívül színezett nyílászárók

-okos ház előkészítés!

-2 fürdő, 3 WC

-hatalmas terasz

-sík felületű, letisztult formavilágú tetőcserép

-stb.. stb.., további információkkal kapcsolatban keressen!

 

 

 

Várható átadás és az ingatlan ára:

 

Fűtéskészen állapotban 2026 szeptember, vételár: 126.990.000 Ft

Kulcsrakész állapotban 2026 december, vételár:  139.990.000 ft

 

A telek méretéből adódóan tökéletesen alkalmas azoknak, akik szeretik a nagy területet, akik szeretnek kicsit kertészkedni, vagy akik csak élvezni akarják a kész kertet.

 

 

Lokáció

 

A Község a megyeszékhelytől, Győrtől 10 km-re található csodálatos környezetben közvetlenül a Mosoni-Duna és az Öreg Duna szomszédságában. Győr autóval és kerékpárral is gyorsan megközelíthető a munkahely eléréséhez, valamint az esetleges bevásárlás és mindennapi ügyek intézéséhez is nagyon közel van, bár helyben is minden szolgáltató adott az általános igények kielégítésére. Valamint a hétköznapok kényelméhez hozzájárul a közeli élelmiszerüzlet, játszótér, és egyéb szolgáltatók. Gyalogtávolságon belül a háziorvosi szolgálat, gyógyszertár és állatorvosi rendelő is elérhető. A főút mellett húzódik a kerékpárút mely egész Szigetközt átszeli, így kötve össze Győrt Mosonmagyaróvárral.

 

A közelben rengeteg kikapcsolódási lehetőség található, többek között, lovarda, horgásztó, teniszpálya, gokart pálya és nem mellesleg a közeli Mosoni-Duna part és szabad strandja. Nagyon sok szép kirándulóhely található a Szigetközben, emiatt is vonzó sokaknak ez a település.

 

 

Ideális, ha:

 

✔️ egy élhető családi otthont keresel

✔️ fontos számodra a nyugodt környezet, de nem szeretnél elszigetelődni

✔️ szeretnél egy modern, minden igényt kielégítő otthont magadnak

 

Ügyfeleimnek az adásvétel teljes körű lebonyolítását vállalom.

Ügyvédi szolgáltatással, díjmentes jogi tanácsadással, bank független Otthon Start, CSOK+, Babaváró hitel, kamattámogatott és piaci hitelek ügyintézésével állok rendelkezésükre.

 

Ha szívesen megnéznéd, hívj bizalommal akár hétvégén is!

06-30/156-6513

 

Ügyfeleimnek az adásvétel teljes körű lebonyolítását vállalom.

 

Az adatok a tulajdonosok által közölt információk alapján kerültek rögzítésre.

Amennyiben a ház, vagy bármely a kínálatunkban található ingatlan felkeltette az érdeklődését, hívjon a megadott telefonszámon.

 

Ügyvédi szolgáltatással, díjmentes jogi tanácsadással, bank független Otthon Start, CSOK+, Babaváró hitel, kamattámogatott és piaci hitelek ügyintézésével állok rendelkezésükre.

Családi ház részletei

Ár: 126 990 000 Ft
Méret: 128 négyzetméter
Azonosító: 11600657
Irodai azonosító: 718800808
Telek: 858 négyzetméter
Ingatlan állapota: Kitűnő
Jelleg: családi ház
Építőanyag: Tégla
Komfort fokozat: Dupla komfort
Kor: Új építésű
Egész szobák: 4

Hasonló családi ház hirdetések

Eladó családi ház

Győrzámoly

KIZÁRÓLAG AZ OTTHON CENTRUMNÁL, KIZÁRÓLAG NÁLAM!! Szigetköz, újszerű, ...

Hasonló családi ház hirdetések

Eladó családi ház

Győrzámoly

KIZÁRÓLAG AZ OTTHON CENTRUMNÁL, KIZÁRÓLAG NÁLAM!! Szigetköz, újszerű, ...