Eladó családi ház Győrzámoly 149 000 000 Ft

Leírás


Igazi gyöngyszem Győrzámolyon! A Szigetköz egyik legkedveltebb településén eladó Benes Gábor építész által tervezett és épített, 3 hálószobás családi ház. 

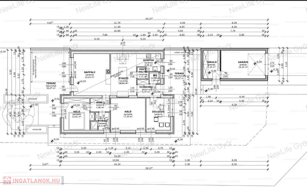
A ház alapterülete 108 m2 + 27 m2 (garázs, tároló), míg a telek mérete 1109 m2.

A házban 3 hálószoba+nappali, valamint 2 fürdőszoba -egy zuhanyzóval, egy mosdóval, plusz egy vendégmosdó található. A ház 2013-ban épült.

A ház szerkezete: sávalapra épült, 30 cm kerámia falazat+15 cm külső hőszigetelés, 30 cm cellulóz padlás szigetelés, Baumit tetőcserép, látszó fagerendás pórfödém.

A nyílászárók 3 rétegű hőszigetelt üvegezésű, Visi-Therm fa nyílászárók, Velux tetőtéri ablakok, fa beltéri ajtók.

A fűtést Sauner Duval kombi gázkazán, padlófűtés + helyiségenként korszerű lapradiátorokkal, fürdőszobában törölközőszárító radiátorral. A nappaliban található cserépkályha igény esetén plusz meleget és kellemes hangulatot biztosít.



A BELSŐ TÉR JELLEMZŐI:



- előszoba (beépített szekrénnyel)

- 3 hálószoba, nagy ablakokkal, részben beépített bútorokkal

- 1 zuhanyzós fürdőszoba wc-vel (beépített szekrénnyel)

- 1 különálló wc

- háztartási helyiség

- konyha (konyhabútorral, hibátlan gépekkel, indukciós főzőlappal)

- étkező

- nappali (fatüzelésű cserépkályhával)





A ház előtt 3 beállós, térkövezett kocsibeálló + 1 garázs + zárt tároló kapott helyet.

A kertben 2 ellentétes tájolású, részben fedett terasz (25 + 36 m2).

Egy teljesen felszerelt konyha is kiépítésre került a  teraszon.

Valamint elkerített kutyaudvar,tüzifa és kuka tároló,dekor medence a hátsó teraszon,magaságyások a kert végében,szép, gondozott kert, nagy méretű fákkal, dús növényzettel, termő gyümölcsfákkal.



Az ingatlan elrendezése és belső kialakítása az építész stílusában készült, amely magába foglalja a tágas, világos tereket és a természetes anyagok használatát.



A ház körüli kert gondosan ápolt, tökéletes hely a pihenésre és kikapcsolódásra.



Az ingatlan kiváló elhelyezkedésű csendes zsákutcában, közvetlenül a töltés mentén fekszik; 4 perc sétára található a buszmegálló, faluközpont 10 perc sétával elérhető. Autóval Győr belvárosa 15 perc alatt közelíthető meg.



A közelben található bölcsőde, óvoda, általános iskola, lovarda, Coop, CBA, háztartási üzlet, fodrász, kozmetikus, háziorvosi rendelő, gyógyszertár, éttermek, fagyizók, Lipóti pékség, benzinkút és autómosó is.

Családi ház részletei

Ár: 149 000 000 Ft
Méret: 135 négyzetméter
Azonosító: 11539692
Irodai azonosító: 718800416
Telek: 1109 négyzetméter
Ingatlan állapota: Kitűnő
Jelleg: családi ház
Építőanyag: Tégla

Hasonló családi ház hirdetések

Eladó családi ház

Győrzámoly

Milyen ingatlant keres…..? Eladó egy teljesen felújított, napfényes, ...

Eladó családi ház

Győrzámoly

Milyen ingatlant keres…..?Eladó egy teljesen felújított, napfényes, családi ...

Eladó családi ház

Győrzámoly

KIZÁRÓLAG AZ OTTHON CENTRUMNÁL, KIZÁRÓLAG NÁLAM!! Szigetköz, újszerű, ...

Eladó családi ház

Győrzámoly

Idilli családi otthon Győrzámoly szívében – Nyugalom, kényelem és ...

Hasonló családi ház hirdetések

Eladó családi ház

Győrzámoly

Milyen ingatlant keres…..? Eladó egy teljesen felújított, napfényes, ...

Eladó családi ház

Győrzámoly

Milyen ingatlant keres…..?Eladó egy teljesen felújított, napfényes, családi ...

Eladó családi ház

Győrzámoly

KIZÁRÓLAG AZ OTTHON CENTRUMNÁL, KIZÁRÓLAG NÁLAM!! Szigetköz, újszerű, ...

Eladó családi ház

Győrzámoly

Idilli családi otthon Győrzámoly szívében – Nyugalom, kényelem és ...