Eladó családi ház Győrzámoly 69 990 000 Ft

Leírás

ÚJ OTTHONOD GYŐRZÁMOLYON!

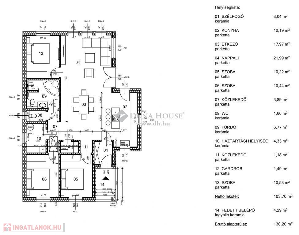
103 m2-es 3 szobás családi ház 860 m2-es telken egy hihetetlenül tágas 52 m2-es nappali, konyha, étkező kombinációval. Nagy üvegfelületek, felesleges terektől mentes tervezés. A klasszikus és a minimál stílus tökéletes egyvelege.

Amit kínálunk:
-23 év alatt több mint 1 100 megépített otthon, közel 190 településen.
-Energiatakarékos, környezetbarát, fenntartható
-Egyedi konyha és bútorgyártás
-Bankfüggetlen hitelügyintézés

Fűtéskész állapot (hirdetési ár):
-Külső falszerkezet 60x140 cm-es hossztoldott fagerendákból
-Belső főfalszerkezet 60x100 cm-es hossztoldott fagerendákból
-Rácsos tetőszerkezet 30°-os dőlésszöggel
-Külső falak borítása 12 mm-es OSB lappal 1 rétegben, szigetelve.
-Tetőfedés Bramac Római Novo tetőcseréppel, színazonos alumínium bádogozással
-Műanyag fehér nyílászárók 3 rétegű üvegezéssel, könyöklőkkel.
-Falakba táblás gyapot szigetelés, mennyezetbe 20+10 cm tekercs gyapotszigetelés
-A külső és belső főfalak borítása belülről 1 réteg 12 mm-es OSB lappal és 1réteg 1,25 cm-es gipszkartonnal
-Belső válaszfalak borítása 2-2 réteg 1,25 cm-es gipszkartonnal
-Függesztett mennyezet CD, UD profilvázzal 1 réteg 1,25 cm-es gipszkarton lappal
-Vizes helyiségekben 1 réteg 1,25 cm-es impregnált karton használata a falakon és a mennyezeten
-Fűtésszerelés levegő
-levegő hőszivattyúval
-Melegvíz ellátás elektromos 120 literes bojlerrel
-Villany-, víz- és szennyvíz alapszerelés
-Hőszigetelt padlásfeljáró

Kulcsrakész állapot (67,4 millió Ft.)
-Belső glettelés és festés
-Szaniterek és azok felszerelése
-Beltéri ajtók
-Burkolás

A családi ház bruttó fűtéskész, telek nélküli ára 41.8 millió Ft.-. CSOK igényléssel idén még 5 % áfa visszaigényléssel megépíthető saját vagy másik telekre.

Miért válassz típusházaink közül?
-Gyors kivitelezés, tervezés, engedélyeztetés
-Kiszámítható költségek
-Épülő és átadás előtt álló ingatlanok megtekintésének lehetősége.
-A legjobb ár-érték arány

A pontos részletekért, bővebb műszaki tartalomért, szerződéskötési feltételekért,

HÍVJ! MUTATOM!

Referencia szám: HZ046296-NOK

Családi ház részletei

Ár: 69 990 000 Ft
Méret: 103 négyzetméter
Azonosító: 11383740
Irodai azonosító: HZ046296-4496842
Telek: 860 négyzetméter
Összesített energetikai besorolás: B
Ingatlan állapota: Átlagos
Jelleg: családi ház
Építőanyag: Könnyűszerkezetes
Fűtés jellege: Villany
Fűtés módja: Hőszivattyú
Komfort fokozat: Összkomfort
Kor: Új építésű
Szintek száma: Földszintes
Egész szobák: 4

Egyéb jellemzők

  • Garázs

Térkép

Hasonló családi ház hirdetések

Eladó családi ház

Győrzámoly

Remek ajánlat!  Győrzámoly központjához közel 93,48 ...

Eladó családi ház

Győrzámoly

Nagyon jó helyen, csendes környéken új építésű családi ház Győrzámolyon. Győrzámoly ...

Hasonló családi ház hirdetések

Eladó családi ház

Győrzámoly

Remek ajánlat!  Győrzámoly központjához közel 93,48 ...

Eladó családi ház

Győrzámoly

Nagyon jó helyen, csendes környéken új építésű családi ház Győrzámolyon. Győrzámoly ...