Eladó családi ház Gyula 62 900 000 Ft

Leírás

Minden szinten szinte minden!

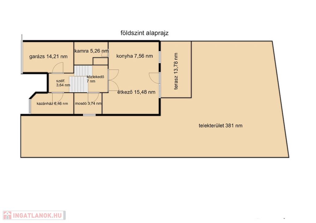
Erre az egyedi elrendezésű házra ez nagyon igaz, hiszen az ingatlanban 2 emelet és 2 félemelet is található, így a szobákban élvezhetjük a csendet és nyugalmat, amíg a nappaliban és az étkezőben zajlik a családi, baráti összejövetel. Az ingatlanban minden helyet kapott, hiszen az étkezővel és kamrával felszerelt konyha mellett 4 szoba, 2 fürdőszoba, külön WC, kazánház, gardrób és garázs is. Ezek mellett lehetőség van a padlástér beépítésére is. A ház alapterülete 148 nm, betonalapra tégla falazattal épült, 2017-ben az ablakok műanyagra lettek cserélve, illetve egy hűtésre és fűtésre is alkalmas klíma lett felszerelve. Az otthon melegéről gázkazánról működtetett padlófűtés gondoskodik minden szinten. A kert alapterülete 381 nm, melyhez egy tágas fedett terasz biztosít kertkapcsolatot, emellett egy szerszámtároló és egy fúrott kút is helyet kapott.
Az ingatlan a belvárostól 5 perces sétára található, de ugyanilyen távolságra van a Várfürdő és a gyulai vár is. A közelben található iskola, óvoda és élelmiszerbolt is.
Tökéletes elhelyezkedésének és egyedi elrendezésének köszönhetően kitűnő választás nagycsaládosoknak, fiataloknak, de akár többgenerációs családigáznak is.
Az ingatlanra CSOK+ igényelhető!
Hívjon mielőbb és tekintse meg! Higgye el nem fog csalódni!
(További képekért és információkért kérem hívjon!)

Családi ház részletei

Ár: 62 900 000 Ft
Méret: 148 négyzetméter
Azonosító: 11402535
Irodai azonosító: 770504
Telek: 381 négyzetméter
Ingatlan állapota: Felújított
Jelleg: ikerház
Építőanyag: Tégla
Fűtés jellege: Cirkó
Egész szobák: 3
Fél szobák: 2
Nappalik: 1

Egyéb jellemzők

  • Beépíthető tetőtér
  • Csatorna
  • Garázs
  • Melléképület
  • Pince
  • Terasz

Hasonló családi ház hirdetések

Eladó családi ház

Gyula

Nagycsaládosok figyelem! Jó elrendezésű, jó szerkezetű, kétgenerációs ...

Eladó családi ház

Gyula

Eladó Családi Ház Gyula Újvárosban – Ideális Otthon Önnek és Családjának! Keresi ...

Eladó családi ház

Gyula

Igényes családi ház plusz 3 db. apartman! Gyula városában, csendes, ...

Eladó családi ház

Gyula

Gyula kedvelt városrészén, az Újvárosban eladóvá vált egy 95 nm alapterületű ...

Hasonló családi ház hirdetések

Eladó családi ház

Gyula

Nagycsaládosok figyelem! Jó elrendezésű, jó szerkezetű, kétgenerációs ...

Eladó családi ház

Gyula

Eladó Családi Ház Gyula Újvárosban – Ideális Otthon Önnek és Családjának! Keresi ...

Eladó családi ház

Gyula

Igényes családi ház plusz 3 db. apartman! Gyula városában, csendes, ...

Eladó családi ház

Gyula

Gyula kedvelt városrészén, az Újvárosban eladóvá vált egy 95 nm alapterületű ...