Eladó családi ház Hajdúsámson 66 900 000 Ft

Leírás

Képzeld el, hogy egy modern, új házban éled mindennapjaidat Sámsonkertben!

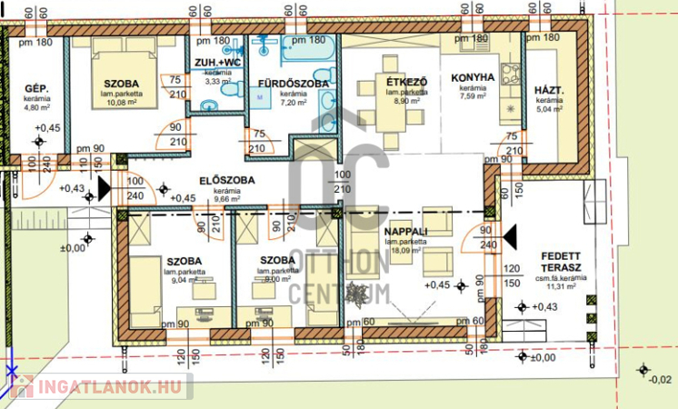
A 93 négyzetméteres alapterülettel rendelkező, új építésű házban tágas nappali +3 szoba és két fürdőszoba vár rád. Az amerikai konyhás nappali a középpontja a lakásnak, ahol barátaiddal és családoddal együtt élvezheted a közös pillanatokat. A 13 négyzetméteres terasz ideális helyszín a reggeli kávézáshoz vagy a nyári grillpartikhoz, miközben a panorámát csodálhatod.
A ház fűtése gáz cirkó rendszerrel működik, ami gazdaságos és kényelmes megoldást kínál a hideg téli hónapokban, míg a klíma a nyári melegben biztosítja a kellemes hőmérsékletet.
A közel 700 m2 telek tökéletesen alkalmas kertkapcsolatos lakás kialakítására, így a szabadban eltöltött idő mindenki számára élvezetes lehet. Az ingatlan modern dizájnja és praktikus elrendezése lehetővé teszi, hogy a hétköznapokban is maximálisan kihasználhasd a teret. A környék csendes és biztonságos, ideális helyszín a fiatalok számára, akik értékelik a nyugodt, de mégis élénk városi életet. A közlekedési lehetőségek kiemelkedőek: a városközpont mindössze néhány percre található, így a mindennapi teendőid könnyedén megoldhatóak.

A ház jellemzői:
- 30-as téglafalazat 15 cm hőszigeteléssel
- 3 rétegű műanyag nyílászárók
- gáz cirkó padlófűtéssel, a szobákban radiátoros hőleadókkal
- az ingatlan fúrt kúttal nyert vízzel ellátott, és ingatlanonként külön zárt szennyvíztároló építve
- a nappaliban 1 db inverteres klíma kerül
- autó beállási lehetőség az udvaron
-osztatlan közös terület, ügyvédileg szabályozott használati szerződéssel
- az utában jelenleg 5 új ház építése zajlik, a környék később felértékelődik
-az utcában fiatalok laknak kisbabás családok
-tervezett átadás: 2027. március

Az ár tartalmazza a telek árát, és a még igénybevehető 5% ÁFÁ-t!

Az ingatlanra CSOK+, babaváró és piaci hitel igénybevehető!
Az Otthon Start hitelere alkalmas! Ne maradj le, a keret kifogyóban van!


A tömegközlekedés is jól kiépített, így bármikor gyorsan elérheted Debrecent a 4405-ös buszjárattal. A központi boltok, szolgáltatások, orvosi rendelő kb. 1,5 km-re található azonban ezek mind hozzájárulnak ahhoz, hogy minden szükséges dolog "karnyújtásnyira" legyen.

Ez az ingatlan nemcsak egy otthon, hanem egy lehetőség is a jövőd építésére. Ha befektetési céllal keresel ingatlant, ez a modern ház tökéletes választás lehet, hiszen a környék folyamatosan fejlődik, és a kereslet egyre nő. Ne habozz, hiszen az ilyen lehetőségek gyorsan elkelnek! Kérlek, bátran keresd fel kérdéseiddel, hiszen itt vagyok, hogy segítsek neked a legjobb döntés meghozatalában!

Családi ház részletei

Ár: 66 900 000 Ft
Méret: 93 négyzetméter
Azonosító: 11574752
Telek: 700 négyzetméter
Ingatlan állapota: Kitűnő
Jelleg: ikerház
Építőanyag: Kérdezzen rá a hirdetőtől »
Fűtés jellege: Cirkó
Egész szobák: 4

Egyéb jellemzők

  • Garázs
  • Kábel TV
  • Melléképület
  • Parketta
  • Pince
  • Terasz

Hasonló családi ház hirdetések

Eladó családi ház

Hajdúsámson

Prémium minőség – energia hatékony kivitelezés – 2026. decemberi átadással! Sámsonkert ...

Eladó családi ház

Hajdúsámson

Sámsonkert szívében – 3 szoba+ nappalis ikerház várja! Ha egy új, modern ...

Eladó családi ház

Hajdúsámson

Várja a jó lehetőséget? Keres már egy ideje, de nem találta meg a mindenben ...

Eladó családi ház

Hajdúsámson

Prémium minőség – energia hatékony kivitelezés – 2026. decemberi átadással! Sámsonkert ...

Hasonló családi ház hirdetések

Eladó családi ház

Hajdúsámson

Prémium minőség – energia hatékony kivitelezés – 2026. decemberi átadással! Sámsonkert ...

Eladó családi ház

Hajdúsámson

Sámsonkert szívében – 3 szoba+ nappalis ikerház várja! Ha egy új, modern ...

Eladó családi ház

Hajdúsámson

Várja a jó lehetőséget? Keres már egy ideje, de nem találta meg a mindenben ...

Eladó családi ház

Hajdúsámson

Prémium minőség – energia hatékony kivitelezés – 2026. decemberi átadással! Sámsonkert ...