Eladó családi ház Hajdúsámson 69 000 000 Ft

Leírás

Bájos, azonnal birtokba vehető családi ház eladó – Debrecentől mindössze 10 percre!

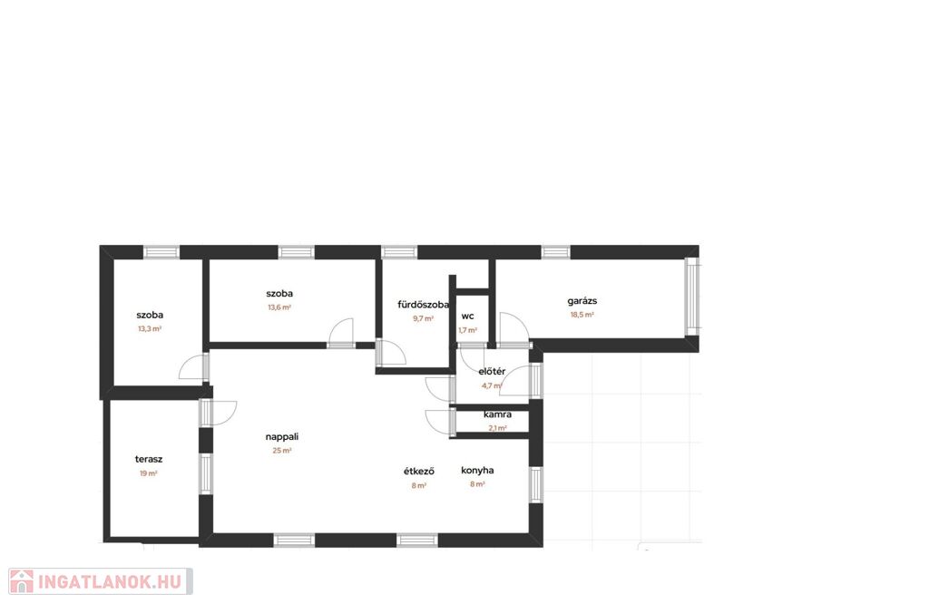
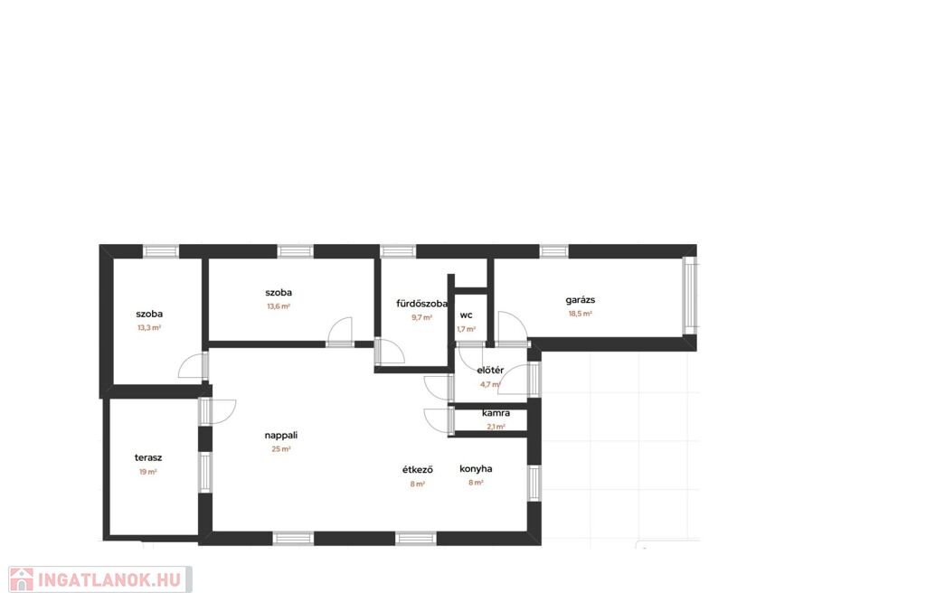
Eladásra kínálunk egy 125 m²-es, hangulatos ingatlant, melyből 88 m² a lakótér, továbbá 19 m² fedett terasz és 18 m²-es garázs tartozik hozzá – bájos, azonnal birtokba vehető otthon, ideális választás mindazoknak, akik kényelmes, jól felszerelt házra vágynak.

✅ Főbb jellemzők:

-Amerikai konyhás, tágas nappali padlófűtéssel
-Hangulatos cserépkályha és hűtő-fűtő klíma a tökéletes hőmérsékletért
-2 nagy méretű szoba
-Külön WC és fürdőszoba, ahol a kád mellett zuhanyzó is helyet kapott
-Konyha melletti kamra
-Laminált parkettás szobák
-Optikai internetkapcsolat elérhető

Garázs és extra tárolás:

-Fűthető, 18 m²-es garázs vízvételi lehetőséggel és plafonra szerelt polccal

Kültéri lehetőségek:

-Közel 10 m²-es faházikó tárolásra
-Szalonnasütő
-Esővíz-gyűjtő,
-egyedi szennyvíztisztító
-hidrofor rendszer
-Tágas, rendezhető kert

Elhelyezkedés:

-Pár percre játszótér, focipálya, élelmiszerbolt és helyközi buszmegálló

Debrecen autóval kb. 10 perc alatt elérhető

Ne hagyja ki ezt a remek lehetőséget! Várom jelentkezését (+36 20 312 65 19), amennyiben egy olyan helyet keres, amit könnyedén otthonának érezhet.
(További képekért és információkért kérem hívjon!)

Családi ház részletei

Ár: 69 000 000 Ft
Méret: 88 négyzetméter
Azonosító: 11581755
Irodai azonosító: 088203
Telek: 1039 négyzetméter
Ingatlan állapota: Átlagos
Jelleg: családi ház
Építőanyag: Tégla
Fűtés jellege: Cirkó
Egész szobák: 3
Nappalik: 1

Egyéb jellemzők

  • Beépíthető tetőtér
  • Csatorna
  • Garázs
  • Melléképület
  • Pince
  • Terasz

Hasonló családi ház hirdetések

Eladó családi ház

Hajdúsámson

Prémium minőség – energia hatékony kivitelezés – 2026. decemberi átadással! Sámsonkert ...

Eladó családi ház

Hajdúsámson

Sámsonkertben építés alatt – új, tágas 4 szobás ház várja Önt! ...

Eladó családi ház

Hajdúsámson

Eladó Hajdú-Bihar vármegyében lévő Hajdúsámson központjában 3 szobás ...

Eladó családi ház

Hajdúsámson

Eladó téglaépítésű sorház Sámsonkertben! Az ingatlan a Szűcs utcából ...

Hasonló családi ház hirdetések

Eladó családi ház

Hajdúsámson

Prémium minőség – energia hatékony kivitelezés – 2026. decemberi átadással! Sámsonkert ...

Eladó családi ház

Hajdúsámson

Sámsonkertben építés alatt – új, tágas 4 szobás ház várja Önt! ...

Eladó családi ház

Hajdúsámson

Eladó Hajdú-Bihar vármegyében lévő Hajdúsámson központjában 3 szobás ...

Eladó családi ház

Hajdúsámson

Eladó téglaépítésű sorház Sámsonkertben! Az ingatlan a Szűcs utcából ...