Eladó családi ház Hajdúsámson 97 500 000 Ft

Leírás

Hajdúsámson csendes részén, rövid időn belül beköltözhető, modern családi ház eladó!

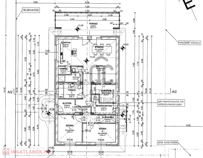
Az ingatlan egy 93 m²-es, új építésű, korszerű kialakítású 3 szobás + amerikai konyhás-nappalis családi ház, amely kimagasló műszaki tartalommal és energiahatékonysággal készül.

Szerkezet és szigetelés
- 30 cm-es Porotherm/Leier tégla falazat
- 15 cm homlokzati EPS hőszigetelés
- 10 cm XPS lábazati szigetelés
- 30 cm födémszigetelés
- 3 rétegű üvegezésű, 6 légkamrás műanyag nyílászárók

Fűtés és gépészet
- korszerű padlófűtés
- a vételár része 2 db inverteres klíma
- a modern technológiának köszönhetően rendkívül alacsony fenntartási költség várható

Közműellátás
- A kivitelező a közművek telken belüli csatlakoztatását elvégzi, amennyiben erre adott a lehetőség.
- Városi víz hiányában házi vízmű kerül kialakításra
- Csatornahálózat hiányában 3 m³-es zárt szennyvíztartály készül (igény szerint nagyobb kapacitásúra is cserélhető, azonban ez nem része az alapárnak)

A ház jelenleg körülbelül 70%-os készültségi szinten áll, a tervezett átadás 3–4 hónapon belül várható.

Az ingatlan kiváló választás mindazoknak, akik megbízható kivitelezésű, jól szigetelt, energiatakarékos és alacsony rezsijű új otthont keresnek nyugodt, csendes környezetben, mégis elérhető közelségben a várostól.

Családi ház részletei

Ár: 97 500 000 Ft
Méret: 93 négyzetméter
Azonosító: 11583927
Telek: 728 négyzetméter
Ingatlan állapota: Kitűnő
Jelleg: családi ház
Építőanyag: Kérdezzen rá a hirdetőtől »
Fűtés jellege: Cirkó
Egész szobák: 3

Egyéb jellemzők

  • Garázs
  • Kábel TV
  • Melléképület
  • Parketta
  • Pince
  • Terasz

Hasonló családi ház hirdetések

Eladó családi ház

Hajdúsámson

Eladó családi ház Hajdúsámson Sámsonkert városrész csendes, zöldövezeti ...

Eladó családi ház

Hajdúsámson

Debrecen-Martinkán az Iskola utcában eladó egy Új építésű 106 nm alapterületű ...

Eladó családi ház

Hajdúsámson

Eladó 3 szoba nappalis, ikerház Sámsonkert fő utcáján! Kihagyhatatlan ...

Eladó családi ház

Hajdúsámson, Gerébitelep

Értékesítésre kínalom Debrecen agglomerációjában Hajdúsámsonban, ...

Hasonló családi ház hirdetések

Eladó családi ház

Hajdúsámson

Eladó családi ház Hajdúsámson Sámsonkert városrész csendes, zöldövezeti ...

Eladó családi ház

Hajdúsámson

Debrecen-Martinkán az Iskola utcában eladó egy Új építésű 106 nm alapterületű ...

Eladó családi ház

Hajdúsámson

Eladó 3 szoba nappalis, ikerház Sámsonkert fő utcáján! Kihagyhatatlan ...

Eladó családi ház

Hajdúsámson, Gerébitelep

Értékesítésre kínalom Debrecen agglomerációjában Hajdúsámsonban, ...