Eladó családi ház Hajdúszoboszló 99 900 000 Ft

Leírás

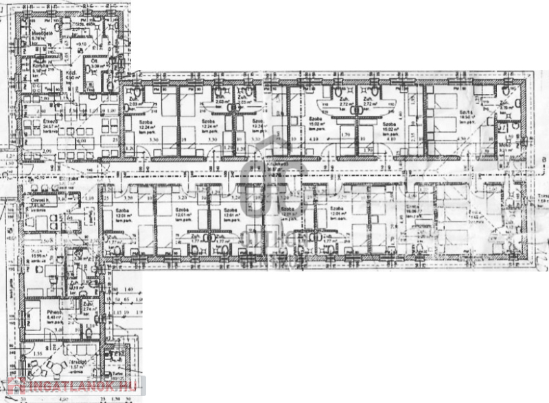
Épülő lakóparkban eredetileg idősek otthonának tervezett 420 nm-es most épülő ingatlan 1400 nm-es telken eladó.
Az épület kiválóan hasznosítható panziónak, apartman háznak, de akár 6 - 8 lakásos társaházzá is alakítható.

jelenlegi állapot:
- 13 apartman, (szoba + fürdőszoba)
- kiszolgáló helyiségek, konyha, étkező, társalkodó, stb, mely még bármi más funkcióra is átalakítható
- villamos hálózat kiépítve
- víz és fűtés csövek részben kiépítve
- belső vakolt falak
- kűlső műanyag nyílászárók, fa beltéri ajtók
- külső szigetelés 80%-ban befejezve
- lindab lemeztető
- összes közmű bekötve

Az épület mostani formájában még sokcélú hasznosítási tevékenységgel fejezhető be, elhelyezkedése miatt rendkívűl jó befektetési lehetőség,

Családi ház részletei

Ár: 99 900 000 Ft
Méret: 420 négyzetméter
Azonosító: 11131838
Telek: 1420 négyzetméter
Ingatlan állapota: Kitűnő
Jelleg: családi ház
Építőanyag: Kérdezzen rá a hirdetőtől »
Fűtés jellege: Cirkó
Egész szobák: 13

Egyéb jellemzők

  • Csatorna
  • Garázs
  • Kábel TV
  • Melléképület
  • Parketta
  • Pince
  • Terasz

Hasonló családi ház hirdetések

Eladó családi ház

Hajdúszoboszló

Új építésű, igényes családi ház 100 millió forint ...

Eladó családi ház

Hajdúszoboszló

Hajdúszoboszló frekventált részén eladásra kínálunk egy ...

Eladó családi ház

Hajdúszoboszló

Eladó egy lakóingatlan egy új építésű sorházban Hajdúszoboszló ...

Eladó családi ház

Hajdúszoboszló, Kertváros

Hajdúszoboszlón Ádám utca környékén eladó egy 2002ben épült 2 szintes ...

Hasonló családi ház hirdetések

Eladó családi ház

Hajdúszoboszló

Új építésű, igényes családi ház 100 millió forint ...

Eladó családi ház

Hajdúszoboszló

Hajdúszoboszló frekventált részén eladásra kínálunk egy ...

Eladó családi ház

Hajdúszoboszló

Eladó egy lakóingatlan egy új építésű sorházban Hajdúszoboszló ...

Eladó családi ház

Hajdúszoboszló, Kertváros

Hajdúszoboszlón Ádám utca környékén eladó egy 2002ben épült 2 szintes ...