Eladó családi ház Hajdúszoboszló 59 900 000 Ft

Leírás


Azonosító: 1820

 

Eladásra kínálok Hajdúszoboszló kertvárosi részén csendes kis zugban egy 3 szobás családi házat.

Lidl,Tesco, Penny pár perc távolságra van.

Elsősorban nagycsaládosok figyelmébe ajánlom!

 

 

Az ingatlan jellemzői:

-a telek 1358 nm, hasznos tér 110 nm

-beton alapra szilikát  és tégla falazattal

-1980-ban épült

-2015-ben felújításon esett át

-szerkezetileg kitűnő állapotban van

-víz, villany vezeték korszerüsítésre került

-fűtés vegyes tüzelésű kazánnal (Új radiátorok)

-laminált parkettás szobák

-villanybojler

-hatalmas hátsó terasz

-2 állású új mobilgarázs

-tetőtér beépítésére van lehetőség a villanyvezeték hálózat már kiépítésre került

-kamera

 

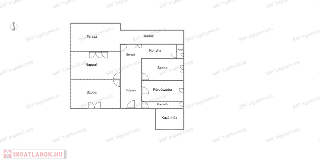
Az ingatlant tágas szobák jellemzik.

A nappaliból és az étkezőből egy hatalmas hátsó teraszra jutunk ki, ahol kényelmesen le lehet bonyolítani akár egy nagyobb családi rendezvényt.

 

A környék tiszta, rendezett, kedves segítőkész szomszédok jellemzik.

 

Az ingatlan jelenlegi állapotban is azonnal költözhető.

 

Az alaprajz tájékoztató jellegű!

 

CSOK plusz igényelhető!

 

Csok Plusz, Lakáshitel, Babaváró hitel, Biztosítás, teljeskörű ügyintézésével állunk rendelkezésére.

Tekintse meg további hirdetéseinket a B&F Ingatlaniroda weboldalán.

 

Családi ház részletei

Ár: 59 900 000 Ft
Méret: 110 négyzetméter
Azonosító: 11545971
Irodai azonosító: 209100291
Telek: 1358 négyzetméter
Ingatlan állapota:
Jelleg: családi ház
Építőanyag: Kérdezzen rá a hirdetőtől »
Fűtés jellege: Egyedi
Komfort fokozat: Összkomfort
Egész szobák: 3
Fél szobák: 1

Hasonló családi ház hirdetések

Eladó családi ház

Hajdúszoboszló

Eladó Hajdúszoboszló kertvárosi részén, a vasútállomáshoz ...

Hasonló családi ház hirdetések

Eladó családi ház

Hajdúszoboszló

Eladó Hajdúszoboszló kertvárosi részén, a vasútállomáshoz ...