Eladó családi ház Harkány 82 500 000 Ft

Leírás

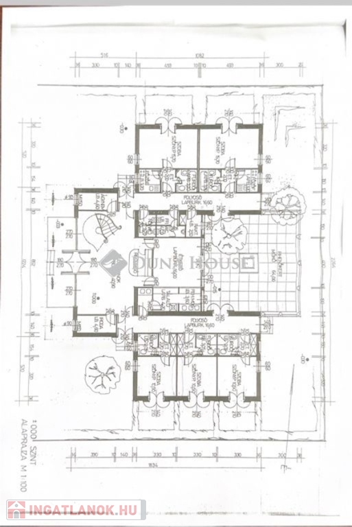
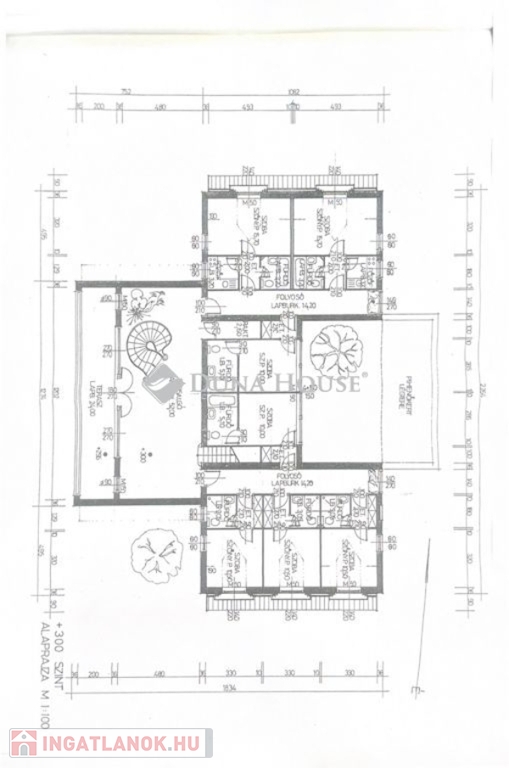
Eladó panzió Harkány központjában! Eladó panzió Harkány központjában, a híres gyógyfürdő és termálfürdő közvetlen közelében. A fürdő és a buszállomás is egy kellemes sétára található, így a vendégek számára minden fontos szolgáltatás könnyen elérhető. Az épület 12 lakrészből áll, összesen 28 fő kényelmes elhelyezése biztosítható. A panzióban több tágas apartman és fürdőszobás szoba található. A panzióhoz nagy étkező, tágas teraszok, parkoló és udvar is tartozik, egész évben üzemeltethető. Az ingatlan felújításra szorul, így új tulajdonosa saját igényei szerint alakíthatja át, korszerűsítheti. Igény esetén lakások is könnyedén kialakíthatók belőle, akár hosszú távú kiadás, akár egyéni hasznosítás céljából. A harkányi gyógyvíz országosan híres mozgásszervi és reumás betegségek kezelésében, gyógyturisztikai vonzereje évente több tízezer vendéget hoz a térségbe! A közeli fürdő nemcsak kikapcsolódást, hanem biztos vendégforgalmat is garantál. Ideális választás befektetőknek, vállalkozóknak, vendéglátásban gondolkodóknak a környék számos lehetőséget kínál: horgászat, vadászat, túrázás, borpincék, kerékpározás, családi és csoportos programok. Az ingatlan előzetes időpont-egyeztetést követően megtekinthető! Igény esetén e-mailben örömmel megküldjük a részletes alaprajzokat és a műszaki leírást is az érdeklődők számára.

Családi ház részletei

Ár: 82 500 000 Ft
Méret: 512 négyzetméter
Azonosító: 11571277
Irodai azonosító: HZ024704-5057942
Cím: Harkányi eladó 512 nm-es ház
Telek: 1376 négyzetméter
Ingatlan állapota: Átlagos
Jelleg: családi ház
Építőanyag: Tégla
Fűtés jellege: Cirkó
Fűtés módja: Gáz
Kor: 21-50 éves
Szintek száma: Földszintes
Egész szobák: 12

Térkép

Hasonló családi ház hirdetések

Eladó családi ház

Harkány

Harkány gyógyfürdő szomszédságában kétgenerációs sorház eladó:- ...

Eladó családi ház

Harkány

Harkány gyógyfürdő szomszédságában kétgenerációs sorház eladó: - ...

Eladó családi ház

Harkány

Harkány gyógyfürdő szomszédságában kétgenerációs sorház eladó: - ...

Eladó családi ház

Harkány

Tágas, Szinteltolásos Családi Ház Eladó Harkány Központjától mindössze ...

Hasonló családi ház hirdetések

Eladó családi ház

Harkány

Harkány gyógyfürdő szomszédságában kétgenerációs sorház eladó:- ...

Eladó családi ház

Harkány

Harkány gyógyfürdő szomszédságában kétgenerációs sorház eladó: - ...

Eladó családi ház

Harkány

Harkány gyógyfürdő szomszédságában kétgenerációs sorház eladó: - ...

Eladó családi ház

Harkány

Tágas, Szinteltolásos Családi Ház Eladó Harkány Központjától mindössze ...