Eladó családi ház Helvécia 48 900 000 Ft

Leírás

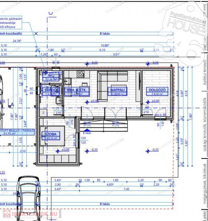
Új építésű 47 m2 es, nappali + 2 szobás ikerház eladó Kecskemét vonzáskörzetében!

Jellemzői:

2026szeptemberi átadás
nappali + 2szoba
47 m2
könnyűszerkezetes építés
bioderítő
2 db klíma
fedett gépkocsi beálló
810 m2 telek
burkolat választható
10 cm-es szigetelés, 20 cm födémszigetelés


A fenti adatok tájékoztató jellegűek, felelősséget érte nem vállalok.

Referencia szám: 3620803

Családi ház részletei

Ár: 48 900 000 Ft
Méret: 47 négyzetméter
Azonosító: 11579498
Irodai azonosító: 3620803-5084217
Telek: 810 négyzetméter
Ingatlan állapota: Épülő
Jelleg: ikerház
Építőanyag: Könnyűszerkezetes
Fűtés jellege: Egyéb
Komfort fokozat: Összkomfort
Kor: Új építésű
Szintek száma: Földszintes
Egész szobák: 3

Térkép

Hasonló családi ház hirdetések

Eladó családi ház

Helvécia

Eladó lovastanya Helvécia külterületén – ahol a tyúkok is VIP lakosztályban ...

Eladó családi ház

Helvécia

Otthonok és megoldások! Helvécián, 46 nm, 2 szobás, könnyűszerkezetes ...

Hasonló családi ház hirdetések

Eladó családi ház

Helvécia

Eladó lovastanya Helvécia külterületén – ahol a tyúkok is VIP lakosztályban ...

Eladó családi ház

Helvécia

Otthonok és megoldások! Helvécián, 46 nm, 2 szobás, könnyűszerkezetes ...