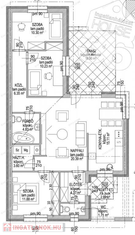
Kecskeméten,új építésű, nappali + 3 szobás, garázsos családi háza legmodernebb technológiákkal,prémium anyagokkal!
Nettó 90 m² - tágas nappali + 3 szoba, ideális a családi élethez
400 m²-es telek - elegendő tér a pihenéshez és szórakozáshoz
Porotherm Wienerberger X-Therm tégla - kiemelkedő hőtartás a téli hónapokban
15 cm-es hőszigetelés - energiahatékony otthon, alacsony fenntartási költségek
Hőszivattyús fűtésrendszer - környezetbarát, gazdaságos megoldás
Padlófűtés - egyenletes meleg, maximális komfort
Prémium minőségű műanyag nyílászárók - hosszú távú megbízhatóság és biztonság
Kiváló hidegburkolatok - 9000 Ft/m²-ig, a legjobb minőség az árban
Szaniterek - akár 1 millió Ft értékben, a komplett fürdőszoba megoldás biztosított
garázs
oldalhatáros beépítés
a tervezési költséget az ár tartalmazza, módosítások megoldhatók!
Építési idő:10-12 hónap
Árgarancia, Időgarancia, ingyenes hitelügyintézés
Képeinken referencia házat láthatnak.
Az iroda legfrissebb, aktuális kínálatát a HOUSE36 saját weboldalán találja!
Ár: | 72 000 000 Ft |
Méret: | 90 négyzetméter |
Azonosító: | 11519122 |
Irodai azonosító: | 3619700-4922010 |
Cím: | 90 nm-es ház eladó Helvécia |
Telek: | 400 négyzetméter |
Ingatlan állapota: | Épülő |
Jelleg: | családi ház |
Építőanyag: | Tégla |
Fűtés jellege: | Egyéb |
Komfort fokozat: | Összkomfort |
Kor: | Új építésű |
Szintek száma: | Földszintes |
Egész szobák: | 4 |