Eladó családi ház Helvécia 89 900 000 Ft

Leírás

Építkezzen Kecskemét vonzáskörzetében a közkedvelt Helvécia központi részén!
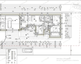
Eladó egy új építésű családi ház, 627 m2-es telken lévő, belső elhelyezkedésű ingatlan.

Jellemzői:
- Telek mérete: 627 m2
- Összközműves
- Aszfaltozott út mellett
- Lakótér: 104,38 m2
- Terasz: 25,24 m2
- Nappali - étkező - konyha + 3 szoba + nagy gardrób
- Fürdőszoba: kád, zuhanyzó, dupla mosdó, külön wc
- Dupla garázs: 36 m2
- Tároló: 8,85 m2
- Tégla építésű
- Külső nyílászárók: fehér műanyag ablakok ( 3 rétegű, 6 légkamrás), fix szúnyoghálóval
- Bejárati ajtó: fehér, műanyag hőszigetelt ajtó
- Beltéri ajtók: teli ajtók kilinccsel (CPL fóliás: 75.000,-/db)
- Fűtés: padlófűtés (Bosch kazán)
- Burkolatok: hideg burkolatok (7.000,-/m2), meleg burkolatok ( 9.000,-/m2)
- Egyéb extrák: - 2 kW napelem (bővíthető)
- 2 db hűtő-fűtő klíma
- Várható átadás: 2026.augusztus


Figyelem az adatlap megbízónktól kapott adatok alapján készült, pontosságáért felelősséget nem tudunk vállalni!
Szolgáltatásaink Kereső ügyfeleink számára INGYENESEK! Amennyiben eladó-kiadó ingatlana van vagy finanszírozási megoldást keres, hívjon, megtaláljuk a legjobb lehetőséget Önnek! A HOUSE36 kínálatában található összes ingatlannal kapcsolatban tudok felvilágosítást nyújtani!
Hívjon bizalommal!
Az iroda legfrissebb, aktuális kínálatát a HOUSE36 saját weboldalán találja!

Családi ház részletei

Ár: 89 900 000 Ft
Méret: 104 négyzetméter
Azonosító: 11569203
Irodai azonosító: 3620547-5049455
Telek: 627 négyzetméter
Ingatlan állapota: Épülő
Jelleg: családi ház
Építőanyag: Tégla
Fűtés jellege: Cirkó
Fűtés módja: Gáz
Komfort fokozat: Dupla komfort
Kor: Új építésű
Szintek száma: Földszintes
Egész szobák: 4

Egyéb jellemzők

  • Garázs

Térkép

Hasonló családi ház hirdetések

Eladó családi ház

Helvécia

**Csak a HOUSE36 kínálatában** Helvécián otthonos, karbantartott otthon ...

Eladó családi ház

Helvécia

**Csak a HOUSE36 kínálatában** Helvécián otthonos, karbantartott otthon ...

Eladó családi ház

Helvécia

**Csak a HOUSE36 kínálatában** Helvécián otthonos, karbantartott otthon ...

Eladó családi ház

Helvécia

PRÉMIUM CSALÁDIHÁZ, SAROKTELEK, MODERN CSALÁDI OTTHON, 3 PERCRE AZ M5-TŐL! ...

Hasonló családi ház hirdetések

Eladó családi ház

Helvécia

**Csak a HOUSE36 kínálatában** Helvécián otthonos, karbantartott otthon ...

Eladó családi ház

Helvécia

**Csak a HOUSE36 kínálatában** Helvécián otthonos, karbantartott otthon ...

Eladó családi ház

Helvécia

**Csak a HOUSE36 kínálatában** Helvécián otthonos, karbantartott otthon ...

Eladó családi ház

Helvécia

PRÉMIUM CSALÁDIHÁZ, SAROKTELEK, MODERN CSALÁDI OTTHON, 3 PERCRE AZ M5-TŐL! ...