Eladó családi ház Hódmezővásárhely 41 000 000 Ft

Leírás

Hódmezővásárhely Tabán városrészben eladó egy vegyes építésű 95 m2 hasznos alapterületű családi ház /nagyrészt tégla, kisebb része vályog/. Az ingatlan osztatlan közös tulajdon használati megosztással, saját önálló 1111 m2-es telekkel, külön utcai bejárattal /a másik tulajdonosnak nincs telekrésze, közvetlen az utcáról megy be a saját ingatlanába/.
Részletek:
2005-ben történt az ingatlanon jelentősebb felújítás: vízszigetelés aljzatbetonozással, új padlószőnyegek vásárlása, gázkonvektorok cseréje, burkolás, festés-tapétázás. A villamoshálózat teljes felújítását és az udvar felőli homlokzat külső hőszigetelését /15 cm hungarocell nemesvakolattal fedve/ pár évvel ezelőtt végezték el. Ekkor cserélték ki az udvar felőli nyílászárókat is hőszigetelt faablakokra. Az ingatlannak két bejárata van, ezért akár két lakásként különválasztva is használható, viszont, ha így marad, szép tágas otthona lesz akár nagyobb családnak is.

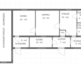
Helyiségek, belső elrendezés:
-Előtér 7 m2
-Előszoba 6 m2
-Szoba 10 m2
-Étkező 15 m2
-Főzőfülke 4 m2
-Fürdőszoba WC-vel 4 m2
-Spájz 1 m
-Nappali 23 m2
-Szoba 20 m2
-Előszoba 6 m2
Az ingatlan közelében bölcsőde, óvoda, iskola, boltok, gyógyszertár, buszmegálló is megtalálható.

Ha szeretne madárcsicsergésre ébredni...vagy csak ücsörögni a teraszon és hallgatni a fű növését...ez a tágas kert valóságos szanatórium. Bőven van hely a kertben játszótérnek, homokozónak, medencének, de garázsnak vagy kocsibeállónak, műhelynek is, kerti sütögetőnek, kemencének. A kiskedvenceknek is van elég tér, de tartható itt aprójószág is akár. Az ingatlan belső terét bárki elképzelése szerint alakíthatja: modernizálása, felújítása után csodás otthon alakítható ki belőle.

Az ingatlan irányára: 41 M Ft, lakáscsere is érdekli a tulajdonost, értékegyeztetéssel.
Ha lát benne fantáziát és szeretné megtekinteni, keressen!
Tisztelettel:
Gonda Ildikó
Ingatlanközvetítő Városi Ingatlaniroda
Tel : nulla hat hetven hatszáztizenkettő negyvenegy negyvenkettő

Irodánk készséggel áll ügyfeleink rendelkezésére nem csak ingatlanügyekben, de hitelügyintézésben is : 3 %-os fix kamatozású Otthon Start hitel, CSOK Plusz hitel, Falusi CSOK, egyéb jelzáloghitelek, babaváró kölcsön, szabad felhasználású hitelek, személyi kölcsön, jogi ügyekben /ügyvéd/ és energetikai tanúsítvány készítésében is /energetikus/.
(További képekért és információkért kérem hívjon!)

Családi ház részletei

Ár: 41 000 000 Ft
Méret: 95 négyzetméter
Azonosító: 11565236
Irodai azonosító: 809072
Telek: 1111 négyzetméter
Ingatlan állapota: Felújítandó
Jelleg: családi ház
Építőanyag: Tégla
Fűtés jellege: Konvektoros
Egész szobák: 3
Nappalik: 1

Egyéb jellemzők

  • Beépíthető tetőtér
  • Csatorna
  • Garázs
  • Melléképület
  • Pince
  • Terasz

Hasonló családi ház hirdetések

Eladó családi ház

Hódmezővásárhely

Hódmezővásárhely belváros közeli utcájában eladó egy teljes felújítást ...

Eladó családi ház

Hódmezővásárhely

Hódmezővásárhely Újvároson eladó egy jó szerkezeti állapotban levő ...

Hasonló családi ház hirdetések

Eladó családi ház

Hódmezővásárhely

Hódmezővásárhely belváros közeli utcájában eladó egy teljes felújítást ...

Eladó családi ház

Hódmezővásárhely

Hódmezővásárhely Újvároson eladó egy jó szerkezeti állapotban levő ...