Eladó családi ház Inárcs 91 800 000 Ft

Leírás

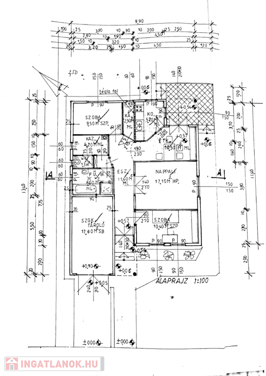
Inárcson – KITŰNŐ ÁLLAPOTÚ, ENERGIATAKARÉKOS családi ház eladó! Bruttó 123m2, 3 szoba, garázs, rendezett 828 nm-es telken, CSENDES, utcában. Belső hasznos terület: 79m2.

Elrendezés és méretek:
- Előszoba 11,4 nm, nappali 17,1 nm
- Szoba: 10,4 nm, szoba: 9,5 nm
- Étkező 10,5 nm, konyha 5,2 nm
- Fürdő 6,6 nm, külön WC 1,3 nm
- Kamra 2,5 nm, kazánház 4,2 nm
- Garázs 17,6 nm
- Elő- és hátsó teraszok összesen 27 nm

Műszaki tartalom – MEGBÍZHATÓ, TAKARÉKOS ÜZEM:

- Falazat: 10 cm Ytong + 10 cm szigetelés + párazáró + gipszkarton; könnyűszerkezet kombinációjával készült.
- Padlószigetelés 3 cm, födémszigetelés 10 cm; járható padlás, feljáró a garázsból
- Nyílászárók: fenyő, KÉTRÉTEGŰ THERMO üvegezéssel.
- HŐHÍDMENTES szerkezet, ENERGETIKAI MINŐSÍTÉS: A++

Fűtés és energia – ALACSONY REZSI, FENNTARTHATÓ MEGOLDÁSOK:

- GÁZCIRKÓ radiátoros hőleadókkal
- Alternatív fűtés: 5,2 kW INVERTERES KLÍMA
- AKKUMULÁTOROS NAPELEM: 5,6 kW rendszer, 5 kW kapacitású tároló; inverter a garázsban
- Elektromos hálózat: réz vezeték, 3 fázis (20A+16A+16A), áram-védőkapcsolóval (FI relével) ellátott.
- Rezsi: gáz átalány kb. 15 000 Ft/hó; villany 800–1000 Ft/hó; víz egyéni fogyasztás

Kert és kinti extrák – KÉNYELEM, RENDEZETT KÖRNYEZET:
- Automata ÖNTÖZŐRENDSZER saját fúrt kútról
- HUSQVARNA ROBOTFŰNYÍRÓ tartozék

Biztonság:
- RIASZTÓ- és KAMERARENDSZER a teljes ingatlanon

Közlekedés és lokáció:
- Budapest az M5 autópályán kb. 30 perc
- Volánbusz sűrű járatokkal a Népligethez, vonat óránként KÖKI állomásra
- INÁRCS RENDEZETT, FEJLŐDŐ, KEDVELT település.

Amennyiben felkeltette a meghirdetett ingatlan az érdeklődését, keressen bizalommal.

Kihagyhatatlan ajánlatok: CSOK+, kedvezményes kamatozású lakáshitelek.
Az ország szinte összes bankjának a hiteleit is kínáljuk, egyedi, általunk igénybe vehető kedvezményekkel, díjmentes ügyintézéssel.

Családi ház részletei

Ár: 91 800 000 Ft
Méret: 123 négyzetméter
Azonosító: 11575954
Irodai azonosító: 389152
Cím: Akkumulátoros napelem rendszerrel.
Telek: 828 négyzetméter
Ingatlan állapota:
Jelleg: családi ház
Építőanyag: Kérdezzen rá a hirdetőtől »
Fűtés jellege: Cirkó
Fűtés módja: Gáz
Komfort fokozat: Összkomfort
Kor: 21-50 éves
Szintek száma: Földszintes
Egész szobák: 3

Egyéb jellemzők

  • Csatorna
  • Garázs
  • Pince
  • Terasz

Térkép

Hasonló családi ház hirdetések

Eladó családi ház

Inárcs

Inárcson, nyugodt környezetben eladásra kínálom egy két lakásos ikerház ...

Eladó családi ház

Inárcs

Inárcson nappali+3 szobás új építésű, tároló kapcsolatos ikerházak ...

Eladó családi ház

Inárcs

Inárcson, nyugodt környezetben eladásra kínálom egy két lakásos ikerház ...

Eladó családi ház

Inárcs

Kizárólag a CDC Ingatlaniroda kínálatában! Inárcs csendes részén új ...

Hasonló családi ház hirdetések

Eladó családi ház

Inárcs

Inárcson, nyugodt környezetben eladásra kínálom egy két lakásos ikerház ...

Eladó családi ház

Inárcs

Inárcson nappali+3 szobás új építésű, tároló kapcsolatos ikerházak ...

Eladó családi ház

Inárcs

Inárcson, nyugodt környezetben eladásra kínálom egy két lakásos ikerház ...

Eladó családi ház

Inárcs

Kizárólag a CDC Ingatlaniroda kínálatában! Inárcs csendes részén új ...