Eladó családi ház Iszkaszentgyörgy 79 900 000 Ft

Leírás

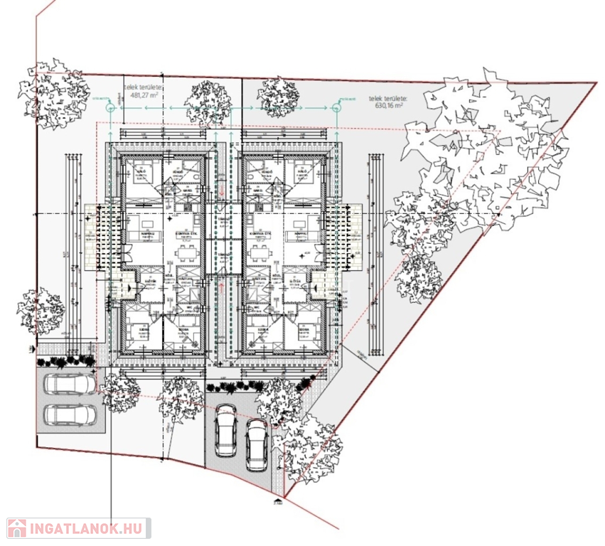
Vh-004402 Iszkaszentgyörgyön, a Márványkert szomszédságában, csendes, kedvelt részen egyszintes, igényes és egyedi kivitelezésű nappali+ 3 szobás, A+ energetikai besorolású, újépítésű ikerházi egység saját 460m2-es telken, 2026 ÁPRILISI ÁTADÁSSAL eladó!

Az ingatlan könnyen megközelíthető, a környék tömegközlekedése jó, a településen minden elérhető, ami a kényelmes életvitelhez elengedhetetlen ( orvosi rendelő, gyógyszertár, posta, bölcsőde, óvoda, polgármesteri hivatal, boltok, piac, fitness-terem, tanösvény, Kastély Park, sportpálya, szépészeti szolgáltatások, kutyaiskola és panzió, cukrászdák).

A ház tágas, világos, körbe napozott, a mai kor igényszintjének megfelelő, minőségi anyagokból, korszerű dizájnnal és kialakítással készül.

Műszaki paraméterek:
- a homlokzati falak 30 cm vastag Viablokk falazatúak 10cm vastag szigeteléssel, a válaszfalak szintén nem könnyített szerkezetűek
- a lábazat 5cm vastag XPS szigetelést kap
- a tetőszerkezet szeglemezes, könnyített födém készül Isocell cellulóz szigeteléssel, Bramac beton cserép fedéssel. ( a padlástér felár ellenében opcionálisan rakodhatóvá/járhatóvá tehető)
- A fűtést hőszivattyú biztosítja padlófűtéses hőleadással, melynek köszönhetően a ház H-tarifás kedvezményben részesül fűtési szezonban.
- a nyílászárók műanyagok, 6 kamrás, 3 rétegű üvegezésűek

A ház hideg,-meleg burkolatjai, szaniterei, nyílászárók színei, homlokzati színei előre megadott ár kategóriákon belül választhatók.
(Egyéb speciális munkák kivitelezésének igénye (pl: klíma, szellőző rendszer, központi porszívó, kandalló, kémény kialakítás, víztisztító kiállás stb.) külön egyeztetést igényel)
(részletes műszaki leírás igényével kapcsolatban, kérem írjon üzenetet)

Elosztását tekintve 103 m2 hasznos alapterületű
Előszoba, amerikai konyhás nappali kamrával, 3db 9m2-es hálószoba, vendég wc és háztartási helyiség kerül kialakításra. A házhoz kapcsolódik egy fedett terasz és egy 21m2-es terasz.

Fontosabb paraméterek:
● 2026 év áprilisi átadás
● 460 m2 önálló telekterület
● Nappali + 3 hálószoba
● H tarifás villany
● Hőszivattyú
● Alacsony rezsiköltség

Megbízható és tapasztalt ingatlanfejlesztő, kivitelező jegyzi a ház építését, számtalan referenciaépülettel rendelkezik. A vásárláshoz, a jelenleg aktuális családok „újépítésű” otthonteremtésére vonatkozó összes támogatás igénybe vehető.

AZ INGATLAN ALKALMAS 5%-os ÁFA, Otthon Start (3%-os), CSOK, CSOK HITEL IGÉNYBEVÉTELÉRE!
Eladási irányár: 79,9 M Ft


ELÉRHETŐ SZABAD HÁZAK:

,,A" IKERHÁZ (2026 áprilisi átadás)
- 1. LAKÓEGYSÉG ----- (CSAK A KÜLSŐ TÁROLÓ FALA KÖZÖS A SZOMSZÉDOS LAKÓEGYSÉGGEL)
ÖSSZESEN 116m2 ----- NAPPALI+ 3 SZOBA ----- 630m2 TELEK
81 900 000 FORINT
- 2. LAKÓEGYSÉG ----- (CSAK A KÜLSŐ TÁROLÓ FALA KÖZÖS A SZOMSZÉDOS LAKÓEGYSÉGGEL)
ÖSSZESEN 116m2 ----- NAPPALI+ 3 SZOBA ----- 481m2 TELEK
79 900 000 FORINT

,,B" IKERHÁZ (2026 év végi átadás)
- 1. LAKÓEGYSÉG
ÖSSZESEN 127m2 ----- NAPPALI +3 SZOBA ----- 593m2 TELEK
81 900 000 FORINT
- 2. LAKÓEGYSÉG
ÖSSZESEN 127m2 ----- NAPPALI +3 SZOBA ----- 460m2 TELEK
79 900 000 FORINT

ÖNÁLLÓ HÁZ (2026 áprilisi átadás)
ÖSSZESEN 131m2 ----- NAPPALI +4 SZOBA ----- 1106m2 TELEK
95 000 000 FORINT


Az ingatlan adottságainak, fekvésének köszönhetően alkalmas továbbá vállalkozásra, üzleti vagy befektetési célra, hiszen akár bérbe adható, vagy üzlet, szolgáltatás (pl: orvosi rendelő, fodrász, kozmetika, irodai tevékenység,(Csendes tevékenység engedélyezett).

Ha felkeltette érdeklődését, hívjon bizalommal, éljen ingyenes, személyre szabott hitelügyintézés szolgáltatásunkkal. Segítünk továbbá adásvételhez szükséges ügyvédi közreműködésben, energetikai tanúsítvány, valamint értékbecslés elkészítésében.

For English information please send a message.

Családi ház részletei

Ár: 79 900 000 Ft
Méret: 127 négyzetméter
Azonosító: 11512088
Irodai azonosító: 380879
Cím: Márványkert szomszédságában
Telek: 460 négyzetméter
Ingatlan állapota:
Jelleg: családi ház
Építőanyag: Tégla
Fűtés jellege: Geotermikus
Fűtés módja: Hőszivattyú
Komfort fokozat: Összkomfort
Kor: Új építésű
Szintek száma: Földszintes
Egész szobák: 4

Egyéb jellemzők

  • Csatorna
  • Garázs
  • Pince
  • Terasz

Térkép

Hasonló családi ház hirdetések

Eladó családi ház

Iszkaszentgyörgy

Iszkaszentgyörgyön, csendes központközeli, belterületi helyen, aszfaltos, ...

Eladó családi ház

Iszkaszentgyörgy

Vh-004399 Iszkaszentgyörgyön, a Márványkert szomszédságában, csendes, ...

Eladó családi ház

Iszkaszentgyörgy

Iszkaszentgyörgyön, a Márványkert szomszédságában, csendes, kedvelt ...

Eladó családi ház

Iszkaszentgyörgy

Vh-004401 Iszkaszentgyörgyön, a Márványkert szomszédságában, csendes, ...

Hasonló családi ház hirdetések

Eladó családi ház

Iszkaszentgyörgy

Iszkaszentgyörgyön, csendes központközeli, belterületi helyen, aszfaltos, ...

Eladó családi ház

Iszkaszentgyörgy

Vh-004399 Iszkaszentgyörgyön, a Márványkert szomszédságában, csendes, ...

Eladó családi ház

Iszkaszentgyörgy

Iszkaszentgyörgyön, a Márványkert szomszédságában, csendes, kedvelt ...

Eladó családi ház

Iszkaszentgyörgy

Vh-004401 Iszkaszentgyörgyön, a Márványkert szomszédságában, csendes, ...