Eladó családi ház Jakabszállás 78 900 000 Ft

Leírás

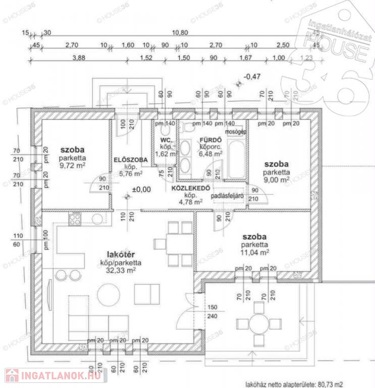
81 m2-es, nappali + 3 szobás, új építésű ház Jakabszálláson!
Az ár tartalmazza a telek árát is!

Jellemzői:


telek 644 m2
lakótér 81 m2
10 m2 térkövezett terasz
gáz-cirkó fűtés, Bosch 2300 kazánnal, padlófűtés
2 klíma
Porotherm főfalak
10 cm-es tégla válaszfalak (belső)
Fa födémszerkezet láng és gombamentesítő anyaggal kezelve
Cserép tetőfedés
Műanyag, bukó-nyíló nyílászárók (3 rétegű, 6 légkamrás), biztonsági bejárati ajtó
redőny, szúnyogháló
15 cm EPS homlokzati hőszigetelés
2026 decemberi átadás

A hirdetésben szereplő fotók egy referenciaházban készültek.

A tulajdonos kérésére az ingatlan bemutatása egy személyes konzultáció után történik, ahol részletes tájékoztatást kaphat az ingatlan paramétereiről és egyéb kényelmi szolgáltatásairól! Figyelem az adatlap megbízónktól kapott adatok alapján készült, pontosságáért felelősséget nem tudunk vállalni!
Az iroda legfrissebb, aktuális kínálatát a HOUSE36 saját weboldalán találja.

Családi ház részletei

Ár: 78 900 000 Ft
Méret: 81 négyzetméter
Azonosító: 11609464
Irodai azonosító: 3621082-5128523
Cím: Jakabszállási 81 nm-es ház eladó
Telek: 644 négyzetméter
Ingatlan állapota: Épülő
Jelleg: családi ház
Építőanyag: Tégla
Fűtés jellege: Cirkó
Fűtés módja: Gáz
Komfort fokozat: Összkomfort
Kor: Új építésű
Szintek száma: Földszintes
Egész szobák: 4

Térkép

Hasonló családi ház hirdetések

Eladó családi ház

Jakabszállás

Minden igényt kielégítő otthon eladó Jakabszállás közelében! Jakabszállástól ...

Hasonló családi ház hirdetések

Eladó családi ház

Jakabszállás

Minden igényt kielégítő otthon eladó Jakabszállás közelében! Jakabszállástól ...