Eladó családi ház Jászberény 77 500 000 Ft

Leírás

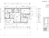
Jászberényben a Szatmári lakóparkban a Bársony utcában , 740 m2-es telken, újonnan épülő nettó 100,79 m2 hasznos lakótérrel és 21 m2-es garázzsal rendelkező, 3 szoba + nappalis önálló családi ház eladó.

Csok plusz, Otthon Start elérhető!

Az ingatlan 30-as Nútféderes tégla falazóelemből épül, fa födémmel.
A tető héjazata antracit betoncserép lesz, a homlokzatok 15cm EPS, a padló 10cm Austrotherm AT-N100-as, a vízszintes födém 25cm Ásványgyapot szigeteléssel lesz ellátva.

Hat légkamrás 3 rétegű evegekkel szerelt nyílászárók kerülnek beépítésre.

A fűtést 10kw-os monoblockos hőszivattyús rendszer fogja ellátni, padlófűtéssel.


A műszaki tartalom választható az alábbi költségkereten belül:

-hidegburkolat:3000.- Ft./m2-ig.
-melegburkolat:3000.- Ft./m2-ig
-csaptelepek:15.000.- Ft./db
-kád vagy zuhany: 40.000.- Ft.
-beltéri ajtók:35.000.- Ft./db

Elektromos kiépítés:
-Konnektorok szobákban: 3 db
-Konnektorok nappaliban 4db + internet és kábeltv kiállás
-Konnektorok konyhában: 6db
-Világítás helyiségenként 1-1 db
-Kábeltévé: Előkészítés


Magasabb árú tatalom is választható a különbség finanszírozásával.

Riasztó előkészítés és kapu mozgató elektronika előkészítés is készül.

Kérésre szívesen küldünk komplett tervdokumentációt, műszaki leírást.


A kivitelezőnek az utcában már három ingatlant értékesítettünk: egy már elkészült, kettő pedig különböző készültségi szinten van. Érdeklődőinknek a már elkészült és értékesített házakat szívesen megmutatjuk referenciaként.


Várható átadás 2026 második negyedév!

INGYENES hitel tanácsadás, CSOK Plusz ügyintézés!
BANKFÜGGETLEN hitelcentrumunk az összes elérhető bank és hitelintézet ajánlatát versenyezteti az Ön kedvéért, ráadásul DÍJMENTESEN.

- Egyedi, bankfiókban nem elérhető kamat- és díjkedvezmények
- Hitelképesség vizsgálat
- Idő, energia és pénz megtakarítás
- Teljes hivatali ügyintézés

Amennyiben hirdetésem felkeltette az érdeklődését vagy egyéb információra van szüksége hívjon bizalommal!

Családi ház részletei

Ár: 77 500 000 Ft
Méret: 122 négyzetméter
Azonosító: 11573149
Irodai azonosító: 388604
Cím: Bársony utca
Telek: 740 négyzetméter
Ingatlan állapota: Kitűnő
Jelleg: családi ház
Építőanyag: Tégla
Fűtés jellege: Geotermikus
Fűtés módja: Hőszivattyú
Komfort fokozat: Összkomfort
Kor: Új építésű
Szintek száma: Földszintes
Egész szobák: 5

Egyéb jellemzők

  • Csatorna
  • Garázs
  • Pince
  • Terasz

Térkép

Hasonló családi ház hirdetések

Eladó családi ház

Jászberény

A jászberényi CasaNetWork Ingatlaniroda megvételre kínál Jászberényben, ...

Eladó családi ház

Jászberény

Jászberényben a Szatmári lakóparkban a Bársony utában, 798 m2-es telken, ...

Eladó családi ház

Jászberény

Jászberényben a Szatmáry Lakóparkban a Técső utca és az Árendás utca ...

Eladó családi ház

Jászberény

Jászberényben a Szatmári lakóparkban a Méz utcában , 740 m2-es telken, ...

Hasonló családi ház hirdetések

Eladó családi ház

Jászberény

A jászberényi CasaNetWork Ingatlaniroda megvételre kínál Jászberényben, ...

Eladó családi ház

Jászberény

Jászberényben a Szatmári lakóparkban a Bársony utában, 798 m2-es telken, ...

Eladó családi ház

Jászberény

Jászberényben a Szatmáry Lakóparkban a Técső utca és az Árendás utca ...

Eladó családi ház

Jászberény

Jászberényben a Szatmári lakóparkban a Méz utcában , 740 m2-es telken, ...