Eladó családi ház Kakucs 89 900 000 Ft

Leírás

Eladó kulcsra kész ingatlanok Pest Vármegyében, Kakucs községben!

CSOK PLUSZRA ALKALMAS!! 10 % önerővel foglalható!

Megbízható kivitelezés!
Kakucson is több referenciával rendelkező vállalkozó!

A települést Inárcs és Újhartyán öleli körül.
Budapest 40 km, Kecskeméttől 50 km még Dabastól 10 km-re fekszik az M 5-ös autópálya mellett.
Közlekedés szempontjából kiváló gyorsan és könnyedén el lehet jutni a fővárosban vagy nagyobb településekre, mint pl. menetrendszerinti autóbusszal, vonattal (Inárcs-Kakucs vasútállomás), kocsival az M 5-ös autópályán.

Az ide látogatók- költözök egy tiszta, rendezett és barátságos települést ismerhet meg.

Kakucs új negyedében került megépítésre a tároló kapcsolatos családi házak.
Az ingatlanok műszaki tartalma röviden:
- Főfalak: Porotherm Klíma NF 30 téglából épült (Klíma tégla termékcsalád kiemelkedően magas hőszigetelő)
- 10 cm vastag hőszigetelés
- fa födém 20 cm-es kőzetgyapot szigetelés- páramentesítő fólia
- Sátortetős beton cserépfedéssel, antracit szürke színben
- Nyílászárok: műanyag fehér színben

Az ingatlan összközműves!
Fűtés:
- Kondenzációs gázkazán
- Padlófűtés + radiátor rendszer
Épület tervezett energetikai besorolása az előzetesen elkészített hőtechnikai számítás szerin „AA”.
Ez az energetikai besorolás eléréséhez az építtető Hűtő- Fűtő klímákat telepít.
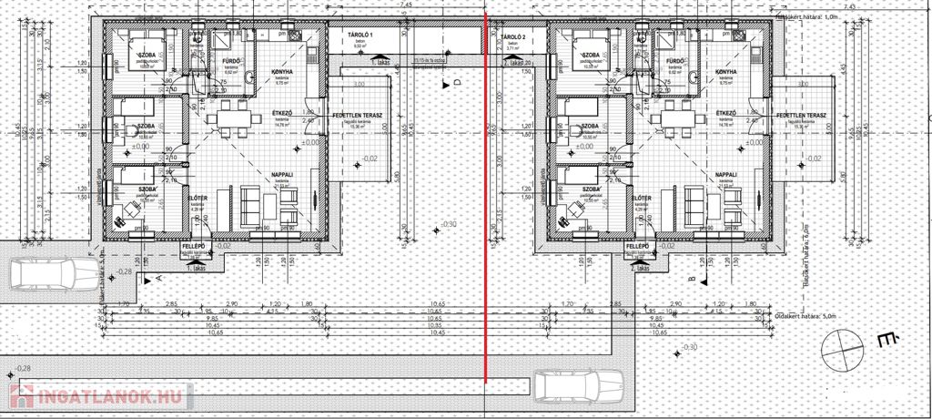
Minden ingatlan 90.39 nm + 15.36 nm terasz + tároló
Elosztásuk: előszoba, nappali+ konyha, 3 db. szoba, vendég Wc., fürdőszoba, hátsó terasz, tároló.
Az ingatlanokat nyitott tároló köti össze.
Körbekerített telek 400 nm.

Közelben: pár perc séta távolságra a Kökörcsin Napköziotthonos óvoda, iskola, gyógyszertár, gyerek- felnőtt orvosi rendelő, fogászat, posta, Polgármesteri hivatal, bevásárlási lehetőség, szépségszalon stb.

Bátran ajánlom mindazoknak, akiknek fontos a tiszta levegő, nyugodt környék és a város közelsége!


Amennyiben felkeltette érdeklődését az ingatlan várom szeretettel hívását időpont egyeztetésre!

Tőlünk vásárolt ÜGYFELEK számos kedvezményt vehetnek igénybe min pl. független- ingyenes hitelügyintézés és tanácsadás, MÖMAX áruházban vásárlás esetén 10 % , DIEGO-ba vásárlás esetén 10%, Vét-Gát vagyonvédelem- Szolgálat ingyenes bekötés, Sentinel- Max védelmi szolgálat ingyenes bekötés, Asztalos belső építés minden megrendelésből 10%, Enterprise Development online marketing és honlap készítés 10%.

Családi ház részletei

Ár: 89 900 000 Ft
Méret: 91 négyzetméter
Azonosító: 11314650
Telek: 400 négyzetméter
Ingatlan állapota: Kitűnő
Jelleg: családi ház
Építőanyag: Tégla
Fűtés jellege: Cirkó
Fűtés módja: Gáz
Komfort fokozat: Összkomfort
Kor: Új építésű
Elhelyezkedés: Udvari
Szintek száma: Földszintes
Egész szobák: 4
Nappalik: 1

Egyéb jellemzők

  • Beépíthető tetőtér
  • Csatorna
  • Garázs
  • Kábel TV
  • Melléképület
  • Padlás
  • Parketta
  • Pince
  • Terasz
  • Medence

Térkép

Hasonló családi ház hirdetések

Eladó családi ház

Kakucs

ÚJ ÉPÍTÉSŰ INGATLANOK KAKUCSON! HAMAROSAN KÖLTÖZHETŐ! Dél-Pest megye ...

Eladó családi ház

Kakucs

Kakucson nyugodt mellékutcájában kínáljuk ezt az alaprajzról előfoglalható, ...

Eladó családi ház

Kakucs

Újépítésű ikerház várja új tulajdonosát nyugodt környezetben, erőre ...

Eladó családi ház

Kakucs

Eladó kulcsra kész ingatlanok Pest Vármegyében, Kakucs községben! CSOK ...

Hasonló családi ház hirdetések

Eladó családi ház

Kakucs

ÚJ ÉPÍTÉSŰ INGATLANOK KAKUCSON! HAMAROSAN KÖLTÖZHETŐ! Dél-Pest megye ...

Eladó családi ház

Kakucs

Kakucson nyugodt mellékutcájában kínáljuk ezt az alaprajzról előfoglalható, ...

Eladó családi ház

Kakucs

Újépítésű ikerház várja új tulajdonosát nyugodt környezetben, erőre ...

Eladó családi ház

Kakucs

Eladó kulcsra kész ingatlanok Pest Vármegyében, Kakucs községben! CSOK ...