Eladó családi ház Kecskéd 154 900 000 Ft

Leírás

Ritka lehetőség! Exkluzív otthon nagy kerttel Kecskéd új utcájában!

Videó az ingatlanról:
https://www.youtube.com/watch?v=9t14pwb8kEY

Ha igényes környezetben szeretne exkluzív akár több funkciós családi házat vásárolni, nagy telekkel, érdemes figyelmet szánni erre a lehetőségre.
Ingatlan jellemzői:
A 250 m²-es lakrésszel rendelkező két szintes családiház egy 1012 m²-es parkosított telken helyezkedik el.

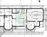
FÉLSZUTERÉN SZINT 190 m² ELOSZTÁSA:

• Garázs 46 m²
• Fürdő-Wc 4,5 m²
• Lépcsőház 9 m²
• Mosókonyha 12 m²
• Gépészet 12,8 m²
• Borospince 19 m²
• Hobby szoba 45 m²
• Dolgozó szoba 12 m²
• Közlekedő 22 m²
• Tároló 4 m²

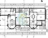
FÖLDSZINT 170 m² ELOSZTÁSA:

• Előszoba 5,5 m²
• Konyha-Étkező 23 m²
• Közlekedő 15 m²
• Nappali 25 m²
• 4 db külön nyíló szoba egyenként 12 m² melyekből 2 db szobához erkély is tartozik
• Fürdő 7,6 m²
• Wc 2 m²
•Wellnes 25 m² (fürdővel és Wc-vel)
•Fedett terasz a napaliból 20 m²

MŰSZAKI TARTALOM:

• A ház 2010-ben épült, vasbeton lemez alapra, Prokoncept technológiával készült falazattal, és födémmel, aláfóliázott Tondach mediterrán cserép fedéssel. Vasbeton alappal, körbe dréncsövezve.
• Fa ablakok a földszinten 3 rétegű üvegezéssel + 1 cm vastag tok szigeteléssel készültek, az árnyékolást a szigetelt alumínium redőnyök biztosítják, valamint rovarhálóval is felszereltek.
• Geotermikus fűtésrendszer padlófűtéssel, minden helyiség külön vezérlehető hőfokszabályzóval, 2 db vízteres kandalló és 2 db 3,5 KW-os hűtő-fűtő klímával kompakt fűtésrendszert lett kialakítva.
• Áram ellátás "H" tarifa 3x32 Amper.
• Napkollektor, 500 literes használati melegvíz tartály, 1000 literes fűtési tartály, v
fordított ozmózisú vízlágyító rendszer
• Riasztó és kamerarendszer
• Hörmann elektromos garázskapu, fűthető autó feljáró.
• Automata öntözőrendszer, 1 db gyűrűs kút és 1 db fúrt kút.
• Kovácsoltvas kerítés, elektromos kapuval.
• Kiépített szellőztető rendszer

LAKÓKÖRNYEZET:

A ház telken belüli elhelyezkedésének, illetve a tudatosan telepített növényzetnek köszönhetően a kert teljes mértékben intim, az utcáról, illetve a szomszédos ingatlanokról nem belátható, így biztosítva a teljes magánszférát. A kertkapcsolattal rendelkező 20 m²-es terasz ideális helyszín családi és közösségi eseményekhez, valamint a nyugodt pihenéshez.
A főépületen kívűl a kertben van egy külön álló kis ház is, ami teljes közművel rendelkezik, funkcióját tekintve alkalmas lehet lakhatásra is, jelenleg nyári konyha ként üzemel.

LOKÁCIÓ:

Néhány perc sétatávolságra Kecskéd központi része, ahol német nemzetiségű iskola, óvoda és bölcsőde is van. Orvosi rendelő, védőnői szolgálat, fogorvos, gyógyszertár, posta, és bevásárlási lehetőségek is találhatók.
Tatabánya, Tata, valamint az M1-es autópálya feljáró 15-20 perc távolságra.
Pár szó a 2000 lakosú Kecskédről:
Német nemzetiségű átmenő forgalomtól mentes település. A Német Kisebbségi Önkormányzat a hagyományőrzés, nyelvápolás, a kulturális emlékek megőrzése terén fejti ki tevékenységét.
Ha a vidéki élet előnyeit és a családi ház luxusát szeretné átélni, ez az otthon tökéletes választás lehet!

Finanszírozás tekintetében is körültekintően eljárva, az összes bank ajánlatát végigszámoljuk, a felelős döntés meghozatala érdekében.

Családi ház részletei

Ár: 154 900 000 Ft
Méret: 400 négyzetméter
Azonosító: 11595799
Irodai azonosító: 332589
Telek: 1012 négyzetméter
Összesített energetikai besorolás: D
Ingatlan állapota: Kitűnő
Jelleg: családi ház
Építőanyag: Tégla
Komfort fokozat: Dupla komfort

Egyéb jellemzők

  • Garázs
  • Terasz

Hasonló családi ház hirdetések

Eladó családi ház

Kecskéd

Eladó Kecskéden, új építésű környezetben, 1012 m2-es telken, 2 szintes, ...

Hasonló családi ház hirdetések

Eladó családi ház

Kecskéd

Eladó Kecskéden, új építésű környezetben, 1012 m2-es telken, 2 szintes, ...