Eladó családi ház Kecskemét 105 000 000 Ft

Leírás

Máriavárosban ikerház telekkel együtt eladó!

Kecskeméten közel a belvároshoz, Máriavárosban eladó új építésű ikerház.
Az összközműves, betonos utcában található, 286 m2-es telekre egy 120 m2-es prémium minőségű 2 szintes ikerházat terveztek.
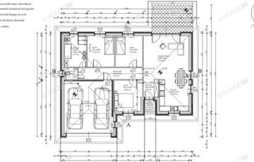
Nappali + 3 szoba, dupla fürdő, és garázst is tartalmaz.
Nettó 102 m2 + 18 m2 garázs
Ikerház esetében nagyon fontos információ, hogy a 2 ház úgy illeszkedik, hogy a lehető legkevesebbet használt területeknél érjen össze, általában a garázsoknál.

Egyéb paraméterek:

- Wienerberger Porotherm X-Therm tégla (+ 40 % hőtartás)
- 15 cm szigetelés
- 572 m2 -es összközműves telek (a fele tartozik 1 ikerházhoz)
- hőszivattyús fűtésrendszer
- padlófűtés
- prémium minőségű műanyag nyílászárók
- elektromos alumínium redőnyök
- riasztó
- elektromos kapu
- elektromos garázskapu
- szaniterek 1 millió forintig az árban
- hideg - meleg burkolatok 8500.-/ m2
- ár garancia
- idő garancia
- várható átadás szerdéskötéstől számított 10hónap


AZ ÁR AZ ÉPÍTÉSI TELEK ÁRÁT IS TARTALMAZZA!
Az ingatlant több mint 20 éves szakmai tapasztalattal rendelkező építőipari generálkivitelező cég végzi.
A terv az igényekhez mérten módosítható az alaprajz és a műszaki tartalom tekintetében is.


Az adatok tájékoztató jellegűek!
FIGYELEM! Az adatok Megbízónktól kapott információk alapján készültek, pontosságukért felelősséget nem tudunk vállalni!
Hívjon, szolgáltatásaink Vevőink részére díjmentesek!
Amennyiben eladó vagy kiadó ingatlana van, kérem forduljon hozzám bizalommal!
Az iroda legfrissebb, aktuális kínálatát a HOUSE36 saját weboldalán találja!

Családi ház részletei

Ár: 105 000 000 Ft
Méret: 120 négyzetméter
Azonosító: 11384130
Irodai azonosító: 3617347-4575030
Telek: 286 négyzetméter
Ingatlan állapota: Átlagos
Jelleg: ikerház
Építőanyag: Tégla
Fűtés jellege: Egyéb
Komfort fokozat: Összkomfort
Kor: Új építésű
Szintek száma: Földszintes
Egész szobák: 4

Egyéb jellemzők

  • Garázs

Térkép

Hasonló családi ház hirdetések

Eladó családi ház

Kecskemét

Kecskeméttől 5 percre extra műszaki tartalommal épült CSALÁDI HÁZ ELADÓ ...

Eladó családi ház

Kecskemét

Eladó sorházi lakás, saját kerttel és garázzsal Kecskeméten, a közkedvelt ...

Eladó családi ház

Kecskemét

Kecskeméten,a belváros peremén, 573 m2-es telken, 176 m2-es, nappali+4 szobás ...

Eladó családi ház

Kecskemét

Kecskemét - Petőfivárosban eladóvá vált, egy teljes körűen felújított, ...

Hasonló családi ház hirdetések

Eladó családi ház

Kecskemét

Kecskeméttől 5 percre extra műszaki tartalommal épült CSALÁDI HÁZ ELADÓ ...

Eladó családi ház

Kecskemét

Eladó sorházi lakás, saját kerttel és garázzsal Kecskeméten, a közkedvelt ...

Eladó családi ház

Kecskemét

Kecskeméten,a belváros peremén, 573 m2-es telken, 176 m2-es, nappali+4 szobás ...

Eladó családi ház

Kecskemét

Kecskemét - Petőfivárosban eladóvá vált, egy teljes körűen felújított, ...