Eladó családi ház Kecskemét 109 999 000 Ft

Leírás

Eladó újszerű családi ház Kadafalván! Igényes otthon kiváló helyen!
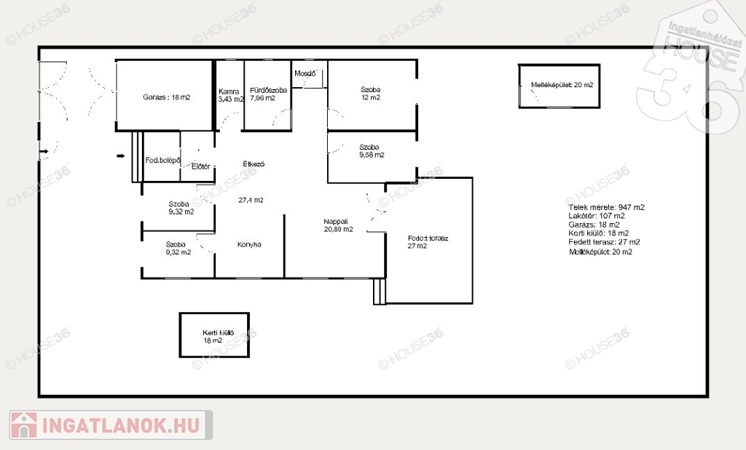
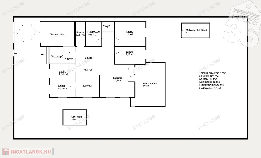
Kadafalva egyik legkedveltebb, aszfaltozott utcájában, új építésű házak szomszédságában kínálunk megvételre egy 2016-ban épült, tégla falazatú, újszerű állapotú családi házat, amely minden igényt kielégít!
-Telek mérete: 947 m2:gondozott kerttel, automata öntözőrendszerrel, elkerített konyhakerti résszel és magaságyással
-Lakótér: 107 m2:világos, tágas konyha étkezővel, nappali + 4 külön bejáratú szoba, kamra, fürdőszoba (sarokkád + zuhanyzó, WC), külön mosdó, szélfogó beépített szekrénnyel
-Fedett terasz: 27 m2:ideális családi és baráti összejövetelekhez
- Garázs: 18 m2:elektromos garázskapuval
- Kerti kiülő: 18 m2:fedett, épített, hangulatos pihenőhely
-Melléképület: 20 m2:csatorna, víz és villany kiépítve, ideális tároláshoz vagy hobbihelyiségnek
- Extrák: elektromos kapu, ízléses térkövezés, ápolt növényzet, teljesen körbekerített kert​

Figyelem az adatlap megbízónktól kapott adatok alapján készült, pontosságáért felelősséget nem tudunk vállalni!
Az iroda legfrissebb, aktuális kínálatát a HOUSE36 saját weboldalán találja!

Családi ház részletei

Ár: 109 999 000 Ft
Méret: 138 négyzetméter
Azonosító: 11582907
Irodai azonosító: 3620163-4988665
Telek: 947 négyzetméter
Ingatlan állapota:
Jelleg: családi ház
Építőanyag: Tégla
Fűtés jellege: Cirkó
Fűtés módja: Gáz
Kor: 6-10 éves
Szintek száma: Földszintes
Egész szobák: 5

Térkép

Hasonló családi ház hirdetések

Eladó családi ház

Kecskemét

CSAK NÁLUNK!!! CSAK NÁLUNK!!! ÉS CSAK 4 DB!!! Kecskemét belvárosában ...

Eladó családi ház

Kecskemét

Kecskeméttől 4 percre Ballószögön 114 m2-es, nappali + 3 szobás családi ...

Eladó családi ház

Kecskemét

*** CSAK A HOUSE36-NÁL *** Kecskeméten a Vacsiközben eladó egy 2022-ben ...

Eladó családi ház

Kecskemét

Máriavárosban ikerház telekkel együtt eladó! Kecskeméten közel a belvároshoz, ...

Hasonló családi ház hirdetések

Eladó családi ház

Kecskemét

CSAK NÁLUNK!!! CSAK NÁLUNK!!! ÉS CSAK 4 DB!!! Kecskemét belvárosában ...

Eladó családi ház

Kecskemét

Kecskeméttől 4 percre Ballószögön 114 m2-es, nappali + 3 szobás családi ...

Eladó családi ház

Kecskemét

*** CSAK A HOUSE36-NÁL *** Kecskeméten a Vacsiközben eladó egy 2022-ben ...

Eladó családi ház

Kecskemét

Máriavárosban ikerház telekkel együtt eladó! Kecskeméten közel a belvároshoz, ...