Eladó családi ház Kecskemét 39 900 000 Ft

Leírás

Kecskemét kertvárosi részén, a Halasi úti hobbysoron eladóvá vált egy teljes körűen felújított kis házikó.

Jellemzői:
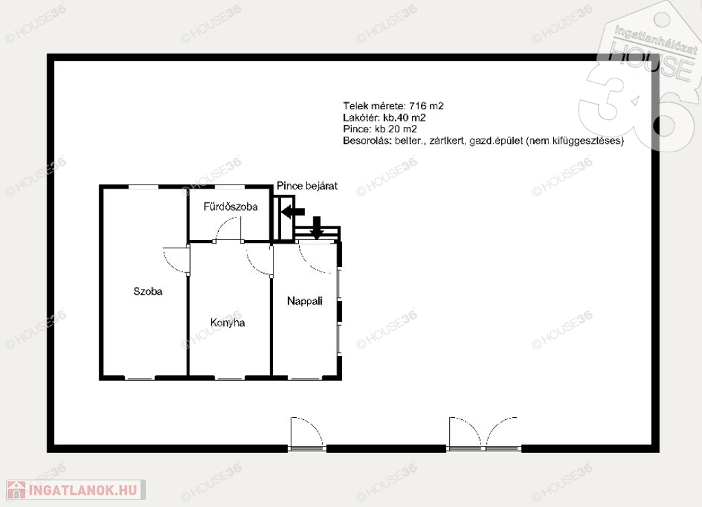
- Telek mérete: 716 m2
- Összközműves
- Besorolása: belterület, zártkert, gazdasági épület
- Lakótér: br.40 m2 : nappali, konyha, fürdőszoba, hálószoba
- Pince: 20 m2
- Teljeskörűen felújított (2020/2021: cserélt nyílászárók, burkolatok, konyhabútor, fürdőszoba, vezetékek, fűtéskorszerűsítés)
- Szigetelés, új külső színezés a házon (2023)


Figyelem az adatlap megbízónktól kapott adatok alapján készült, pontosságáért felelősséget nem tudunk vállalni!
Szolgáltatásaink Kereső ügyfeleink számára INGYENESEK!
Amennyiben eladó-kiadó ingatlana van vagy finanszírozási megoldást keres , hívjon, megtaláljuk a legjobb lehetőséget Önnek!
A HOUSE36 kínálatában található összes ingatlannal kapcsolatban tudok felvilágosítást nyújtani!
Hívjon bizalommal!
Az iroda legfrissebb, aktuális kínálatát a HOUSE36 saját weboldalán találja!

Családi ház részletei

Ár: 39 900 000 Ft
Méret: 40 négyzetméter
Azonosító: 11607974
Irodai azonosító: 3620553-5049020
Telek: 716 négyzetméter
Ingatlan állapota:
Jelleg: családi ház
Építőanyag: Tégla
Fűtés jellege: Egyéb
Kor: 50 évesnél régebbi
Szintek száma: Földszintes
Egész szobák: 2

Térkép

Hasonló családi ház hirdetések

Eladó családi ház

Kecskemét

Otthonok és megoldások! Kecskemét, Belső-Bethlenvárosban, kiváló elhelyezkedésű, ...

Eladó családi ház

Kecskemét

Kecskemét kertvárosi részén, a Halasi úti hobbysoron eladóvá vált egy ...

Eladó családi ház

Kecskemét

Kecskemét belvárosában, csendes, nyugodt környéken, 267 m2-es önálló ...

Eladó családi ház

Kecskemét

Eladóvá vált egy 48 m2-es családi ház Kecskeméten a Ceglédi úton. Jelenleg ...

Hasonló családi ház hirdetések

Eladó családi ház

Kecskemét

Otthonok és megoldások! Kecskemét, Belső-Bethlenvárosban, kiváló elhelyezkedésű, ...

Eladó családi ház

Kecskemét

Kecskemét kertvárosi részén, a Halasi úti hobbysoron eladóvá vált egy ...

Eladó családi ház

Kecskemét

Kecskemét belvárosában, csendes, nyugodt környéken, 267 m2-es önálló ...

Eladó családi ház

Kecskemét

Eladóvá vált egy 48 m2-es családi ház Kecskeméten a Ceglédi úton. Jelenleg ...