Eladó családi ház Kecskemét 79 900 000 Ft

Leírás

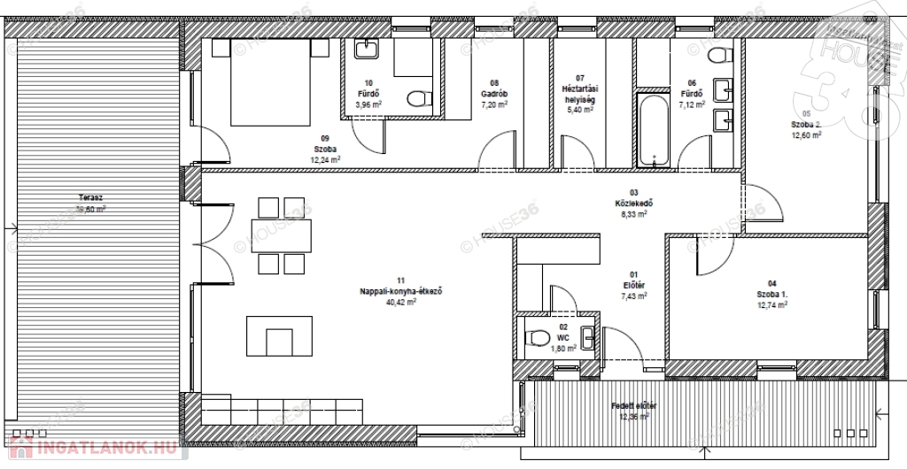
Eladó ÚJ nappali + 3 szobás 119,24 m2-es CSALÁDI HÁZ 39,6+12,36 m2-es terasszal!

Jellemzők:

- Porotherm NF 38-as tégla
- 10 cm-es homlokzati- és 30 cm födémszigetelés
- 3 rétegű üveg, fehér műanyag ablakok 6 légkamrás fokozott hőszigetelésű profilból, szúnyoghálóval, redőnnyel
- fűtés és melegvíz-ellátás korszerű kondenzációs 24 KW-os kondenzációs gáztüzelésű kazánnal és padlófűtéssel
- fehér műanyag hőszigetelet bejárati ajtó választható kivitelben
- CPL fóliás teli beltéri ajtók kilinccsel (nettó 85 ezer forint értékben)
- hidegburkolat: nettó 5500 huf/m2-ig az árban 2,1 méter magasságban
- melegburkolat: vízálló laminált padló nettó 4500 huf/m2-ig az árban
- 2 db 3,5 KW-os klíma
- riasztó előkészítés
- 80(!) db elektromos kiállás
- A++ energetika
- ÉPÍTÉSI IDŐ 8 HÓNAP

Figyelem! Az adatlap megbízónktól kapott információk alapján készült, pontosságáért felelősséget nem tudunk vállalni! Amennyiben a hirdetés felkeltette érdeklődését, illetve eladó ingatlana van, forduljon hozzám bizalommal!
Az iroda legfrissebb, aktuális kínálatát a HOUSE36 saját weboldalán találja!

Családi ház részletei

Ár: 79 900 000 Ft
Méret: 119 négyzetméter
Azonosító: 11556755
Irodai azonosító: 3620295-5007659
Telek: 120 négyzetméter
Összesített energetikai besorolás: A++
Ingatlan állapota: Épülő
Jelleg: családi ház
Építőanyag: Tégla
Fűtés jellege: Cirkó
Fűtés módja: Gáz
Kor: Új építésű
Szintek száma: Földszintes
Egész szobák: 4

Térkép

Hasonló családi ház hirdetések

Eladó családi ház

Kecskemét

Otthonok és megoldások! Kecskemét, Kósafalu kertvárosi részben 912 nm ...

Eladó családi ház

Kecskemét

Otthonok és megoldások! Kecskemét, Máriavárosban, 277 nm telken, 2 egységből ...

Eladó családi ház

Kecskemét

81 m2-es, nappali + 3 szobás, új építésű ház Kecskemét - Katonatelepen! Az ...

Eladó családi ház

Kecskemét

Különleges lehetőség Kecskemét-Hetényegyházán: tágas, nappali + 3 ...

Hasonló családi ház hirdetések

Eladó családi ház

Kecskemét

Otthonok és megoldások! Kecskemét, Kósafalu kertvárosi részben 912 nm ...

Eladó családi ház

Kecskemét

Otthonok és megoldások! Kecskemét, Máriavárosban, 277 nm telken, 2 egységből ...

Eladó családi ház

Kecskemét

81 m2-es, nappali + 3 szobás, új építésű ház Kecskemét - Katonatelepen! Az ...

Eladó családi ház

Kecskemét

Különleges lehetőség Kecskemét-Hetényegyházán: tágas, nappali + 3 ...