Eladó családi ház Kecskemét 89 900 000 Ft

Leírás

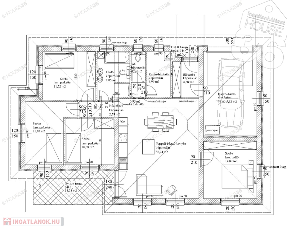
Kecskemét-Kadafalván, jól megközelíthető helyen, nettó 129,18 nm-es, 4 szoba+nappalis, igényes, új építésű családi ház, garázzsal, 494 nm-es telken ELADÓ!

Elhelyezkedését tekintve csendes, nyugodt környezetben található.
Földszintes kialakítású családi ház, nettó 129,18 nm hasznos lakótérrel, +13,33 nm terasszal, valamint egybeállós garázzsal.
A házban található 4 teljes értékű hálószoba, 1 fürdőszoba, 1 vendég mosdó, konyha-étkező, nappali, 1 gépészeti/háztartási helyiség.

-minőségi, 6 légkamrás Galean műanyag nyílászárók, 3 rétegű hővédő üvegezéssel
-elektromos redőnyök
-Panasonic hőszivattyú hűtésre/ fűtésre
-padlófűtés
-4 kW napelem
-PTH 30 NF Rapid+ 12 cm grafitos hőszigetelés, nemesvakolat
-hideg - meleg burkolatok 5000.-/ m2
-szaniterek 600.000 forintig az árba
-elektromos autótöltő kiállás

Céges építkezés, CSOK Plusz igénybe vehető.
Várható átadás szerződéskötéstől számított 10-12 hónap
Vételár: 99.000.000 Ft

Az ár kulcsrakész állapotban történő átadással, telek árral és az 5%-os Áfa-val együtt értendő.
Konyha- és fürdőszobabútort, valamint lámpatesteket a vételár nem tartalmazza!

Bővebb felvilágosítás a megadott telefonszámon kérhető.
Az iroda legfrissebb, aktuális kínálatát a HOUSE36 saját weboldalán találja!

Családi ház részletei

Ár: 89 900 000 Ft
Méret: 129 négyzetméter
Azonosító: 11594279
Irodai azonosító: 3617131-4698968
Telek: 494 négyzetméter
Ingatlan állapota: Épülő
Jelleg: családi ház
Építőanyag: Tégla
Fűtés jellege: Egyéb
Kor: Új építésű
Szintek száma: Földszintes
Egész szobák: 5

Térkép

Hasonló családi ház hirdetések

Eladó családi ház

Kecskemét

Kecskemét-Kadafalván, jól megközelíthető helyen, nettó 129,18 nm-es, ...

Eladó családi ház

Kecskemét

Otthon, ahol a boldogság kezdődik. Kecskeméten a nagy Tescohoz közel, parkosított ...

Eladó családi ház

Kecskemét

Kecskemét vonzáskörzetében Helvécián, Nappali + 3 szobás, új családi ...

Eladó családi ház

Kecskemét

Eladó Ballószögben 1029 m2-es telken egy 96,44 m2-es, nappali/étkező + ...

Hasonló családi ház hirdetések

Eladó családi ház

Kecskemét

Kecskemét-Kadafalván, jól megközelíthető helyen, nettó 129,18 nm-es, ...

Eladó családi ház

Kecskemét

Otthon, ahol a boldogság kezdődik. Kecskeméten a nagy Tescohoz közel, parkosított ...

Eladó családi ház

Kecskemét

Kecskemét vonzáskörzetében Helvécián, Nappali + 3 szobás, új családi ...

Eladó családi ház

Kecskemét

Eladó Ballószögben 1029 m2-es telken egy 96,44 m2-es, nappali/étkező + ...