Eladó családi ház Kecskemét 89 900 000 Ft

Leírás

Építkezzen Kecskemét vonzáskörzetében a közkedvelt Helvécián!
ELADÓ egy új építésű családi ház aszfaltozott út mellett lévő 620 m2-es önállósarki telken.
Jellemzői:
- Várható átadás: 2026. október
- Telek mérete: 620 m2
- Összközműves
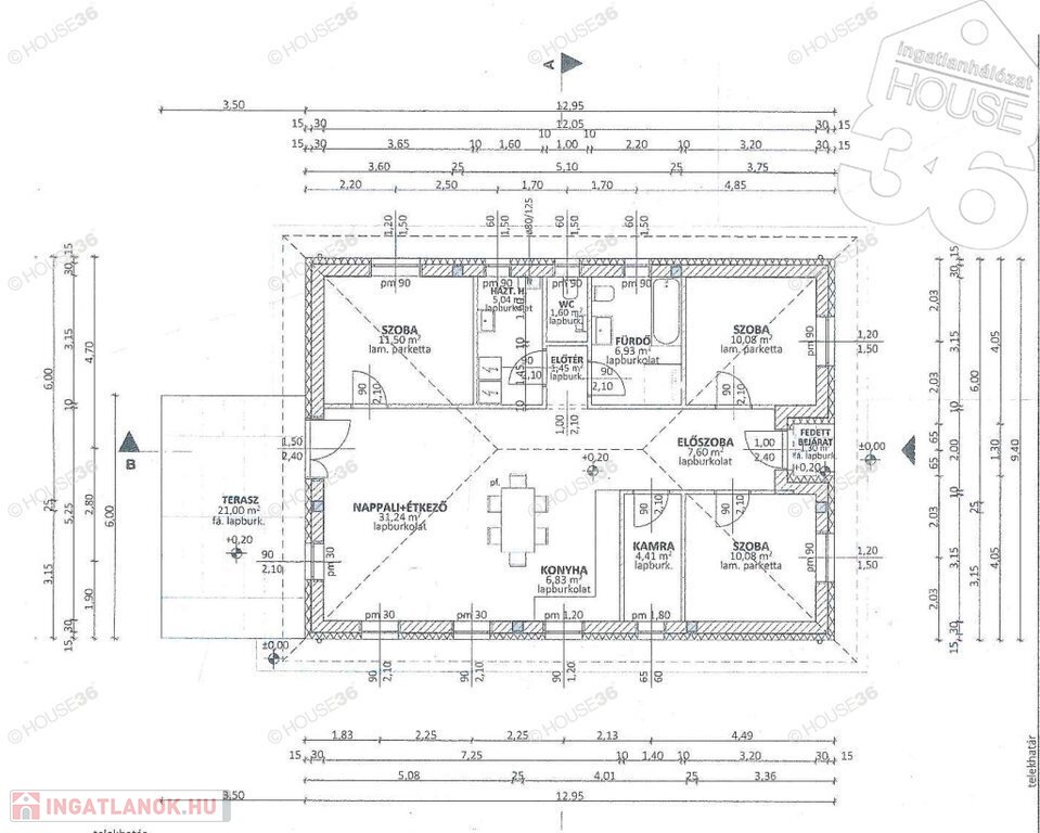
- Lakótér: 96,76 m2
- Terasz: 21 m2
- Helyiségek: Nappali-étkező-konyha + 3 szoba, kamra, fürdőszoba, külön mosdó, háztartási helyiség
- Tégla építésű (+ tégla válaszfalak)
- Külső nyílászárók: fehér műanyag ablakok redőnnyel
- Bejárat ajtó: fehér műanyag hőszigetelt
- Beltéri ajtók (választható): 80.000,-/db
- Fűtés: padlófűtés
- Burkolatok: hideg -és meleg (választható): 9.000,-/m2
- Egyéb extrák: - 2,5 kW napelem
- 3,5 kW-os hűtő-fűtő klíma
- Kerítés
- Választható: fedett gépkocsi beálló v. garázs (az ár nem tartalmazza!)


Figyelem az adatlap megbízónktól kapott adatok alapján készült, pontosságáért felelősséget nem tudunk vállalni!
Szolgáltatásaink Kereső ügyfeleink számára INGYENESEK! Amennyiben eladó-kiadó ingatlana van vagy finanszírozási megoldást keres, hívjon, megtaláljuk a legjobb lehetőséget Önnek! A HOUSE36 kínálatában található összes ingatlannal kapcsolatban tudok felvilágosítást nyújtani!
Hívjon bizalommal!
Az iroda legfrissebb, aktuális kínálatát a HOUSE36 saját weboldalán találja!

Családi ház részletei

Ár: 89 900 000 Ft
Méret: 96 négyzetméter
Azonosító: 11611872
Irodai azonosító: 3621141-5142672
Telek: 620 négyzetméter
Ingatlan állapota: Épülő
Jelleg: családi ház
Építőanyag: Tégla
Fűtés jellege: Cirkó
Fűtés módja: Gáz
Kor: Új építésű
Szintek száma: Földszintes
Egész szobák: 4

Térkép

Hasonló családi ház hirdetések

Eladó családi ház

Kecskemét

Eladó Ballószögben 1029 m2-es telken egy 96,44 m2-es, nappali/étkező + ...

Eladó családi ház

Kecskemét

Vacsiközben ikerház eladó telekkel együtt! Kecskemét legfrekventáltabb ...

Eladó családi ház

Kecskemét

Prémium családi ház Kecskeméten! Ha olyan otthont keres, ahol nem kell ...

Eladó családi ház

Kecskemét

Kecskeméten, a Mária-városban eladó egy kiváló adottságokkal rendelkező, ...

Hasonló családi ház hirdetések

Eladó családi ház

Kecskemét

Eladó Ballószögben 1029 m2-es telken egy 96,44 m2-es, nappali/étkező + ...

Eladó családi ház

Kecskemét

Vacsiközben ikerház eladó telekkel együtt! Kecskemét legfrekventáltabb ...

Eladó családi ház

Kecskemét

Prémium családi ház Kecskeméten! Ha olyan otthont keres, ahol nem kell ...

Eladó családi ház

Kecskemét

Kecskeméten, a Mária-városban eladó egy kiváló adottságokkal rendelkező, ...