Eladó családi ház Kerepes 87 000 000 Ft

Leírás

Örökpanoráma. Saját kert. Új otthon.

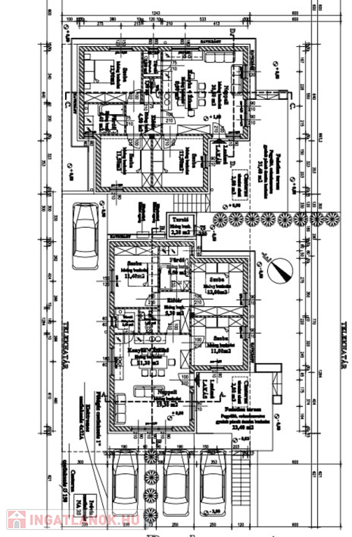
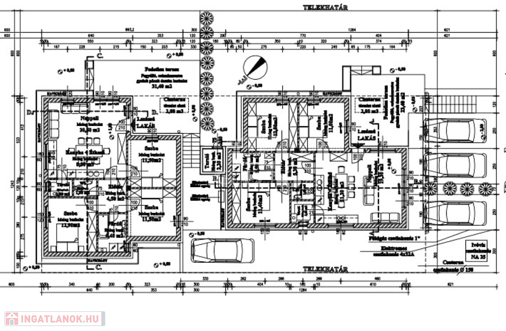
Kerepesen, a Panoráma lakóparkban eladó egy 80 m²-es ikerházfél 31 m² terasszal és 350 m² saját kerttel, kulcsrakész állapotban – most bevezető áron: 80 millió Ft-ért. Az ingatlan a helyi moratórium miatt 2027 tavaszáig nem kap csatornázási csatlakozási lehetóséget. Megoldást adhat fúrt kút és szikkasztó használata, ezzel a hitelre is képes lehet. Az ikerházfél akár egyben is megvásárolható a másik féllel!

A ház örökpanorámás, csendes zöldövezetben található, mégis csak 15 perc autóval a belvárostól. A közcsatornázás 2027 eleji moratórium feloldásig fúrt kúttal és szikkasztóval megoldott, így a mindennapi használat biztosított. A képek látványtervek, az építkezés folytatása az új tulajdonos bevonásával történik.

– Hőszigetelt falak és nyílászárók → alacsony fűtési költség
– Padlófűtés → modern kényelem
– Klímacsövezés előkészítve → bármikor beszerelhető
– Teljes gépészet → gyors beköltözés
– Minőségi burkolatok és belső ajtók → elegáns alapok
– Öntözőrendszer előkészítve → könnyű kertépítés

Ritka lehetőség: modern otthon panorámával és kerttel, most bevezető áron elérhető. Ez az ikerház fél nem csupán egy otthon, hanem önálló életstílus és biztos befektetés: örökpanoráma, kertkapcsolat, Akár államilag támogatott finanszírozás.

Családi ház részletei

Ár: 87 000 000 Ft
Méret: 80 négyzetméter
Azonosító: 11601015
Irodai azonosító: 392881
Cím: Panoráma lakópark
Telek: 350 négyzetméter
Ingatlan állapota: Épülő
Jelleg: ikerház
Építőanyag: Tégla
Fűtés jellege: Cirkó
Fűtés módja: Gáz
Komfort fokozat: Komfort
Kor: 1-5 éves
Szintek száma: Földszintes
Egész szobák: 4
Fél szobák: 1

Egyéb jellemzők

  • Csatorna
  • Garázs
  • Pince
  • Terasz

Térkép

Hasonló családi ház hirdetések

Eladó családi ház

Kerepes

3 GENERÁCIÓS, ALACSONY REZSIJŰ CSALÁDI OTTHON KEREPES SZÍVÉBEN! Több ...

Eladó családi ház

Kerepes

Kerepes könnyen megközelíthető, hangulatos kertvárosában, saroktelken ...

Eladó családi ház

Kerepes

Kerepesen ikerház eladó! A főúton, Szabadság utcában eladó egy 1990-ben ...

Eladó családi ház

Kerepes

ELADÓ 3 GENERÁCIÓS, ALACSONY REZSIJŰ CSALÁDI HÁZ KEREPESEN! Kiváló ...

Hasonló családi ház hirdetések

Eladó családi ház

Kerepes

3 GENERÁCIÓS, ALACSONY REZSIJŰ CSALÁDI OTTHON KEREPES SZÍVÉBEN! Több ...

Eladó családi ház

Kerepes

Kerepes könnyen megközelíthető, hangulatos kertvárosában, saroktelken ...

Eladó családi ház

Kerepes

Kerepesen ikerház eladó! A főúton, Szabadság utcában eladó egy 1990-ben ...

Eladó családi ház

Kerepes

ELADÓ 3 GENERÁCIÓS, ALACSONY REZSIJŰ CSALÁDI HÁZ KEREPESEN! Kiváló ...