Eladó családi ház Kiskunfélegyháza 46 990 000 Ft

Leírás

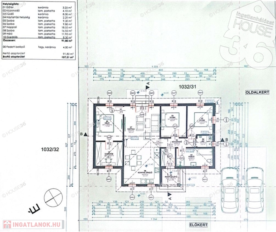
Kiskunfélegyházán új építésű, korszerű műszaki tartalommal, egyedi igények szerint megvalósítható 3 szoba + nappalis könnyűszerkezetes családi ház projekt eladó!
Az ár a telek árát nem tartalmazza!

Jellemzők:


91,8m² jól átgondolt nettó lakótér
energiatakarékos hőszivattyús padlófűtés
szigetelés: 10 cm homlokzati, 30 cm födém, 12 cm aljzat
műanyag nyílászárók 3 rétegű, 5 légkamrás
burkolatok értékhatára 6000 Ft/m²
bramac vagy leier cserép

Az ár tartalmazza a fedett belépőt!
IDŐ és ÁRGARANCIA! 20 éves tapasztalat és 300+ felépített ház.
Méretben és szerkezetben eltérő építésben is tudunk segíteni!
Ingyenes hitelügyintézés!

Figyelem az adatlap megbízónktól kapott adatok alapján készült, pontosságáért felelősséget nem tudunk vállalni!


Hívjon bizalommal!


Szolgáltatásaink Kereső ügyfeleink számára INGYENESEK!
Az iroda legfrissebb, aktuális kínálatát a HOUSE36 saját weboldalán találja!

Családi ház részletei

Ár: 46 990 000 Ft
Méret: 91 négyzetméter
Azonosító: 11595343
Irodai azonosító: 3621064-5133965
Telek: 1 négyzetméter
Ingatlan állapota: Épülő
Jelleg: családi ház
Építőanyag: Könnyűszerkezetes
Fűtés jellege: Egyéb
Kor: Új építésű
Szintek száma: Földszintes
Egész szobák: 4

Egyéb jellemzők

  • Garázs

Térkép

Hasonló családi ház hirdetések

Eladó családi ház

Kiskunfélegyháza

Kiskunfélegyházán, közvetlenül a Piac és a Sarlós Boldogasszony templom ...

Eladó családi ház

Kiskunfélegyháza

Stílusos és energiatakarékos tégla építésű családi otthon. 92 m² ...

Eladó családi ház

Kiskunfélegyháza

Stílusos és energiatakarékos tégla építésű családi otthon. 92 m² ...

Eladó családi ház

Kiskunfélegyháza

Kiváló elhelyezkedésű, 575 m2-es telken álló, 110 m2-es, 3 szobás, téglaépítésű ...

Hasonló családi ház hirdetések

Eladó családi ház

Kiskunfélegyháza

Kiskunfélegyházán, közvetlenül a Piac és a Sarlós Boldogasszony templom ...

Eladó családi ház

Kiskunfélegyháza

Stílusos és energiatakarékos tégla építésű családi otthon. 92 m² ...

Eladó családi ház

Kiskunfélegyháza

Stílusos és energiatakarékos tégla építésű családi otthon. 92 m² ...

Eladó családi ház

Kiskunfélegyháza

Kiváló elhelyezkedésű, 575 m2-es telken álló, 110 m2-es, 3 szobás, téglaépítésű ...