Eladó családi ház Kiskunfélegyháza 54 990 000 Ft

Leírás

Álmodja meg saját városi kerthelyiségét, ahol a gőzölgő kávé, a kézműves pékség süteményei és a kenyér illata érezhető a nyugodtan elfogyasztott reggeli mellett!
Eladóvá vált Kiskunfélegyházán egy nagyszerű adottságú és nagyon jól megközelíthető épületegyüttes, ahol megtalálható egy lakás, garázs, pékség a hozzátartozó helységekkel és üzlettér is.
Jó választás lehet reggelizőnek, lakás étteremnek, különleges kézműves pékségnek, amelynek csak a stílusát kell kitalálni!
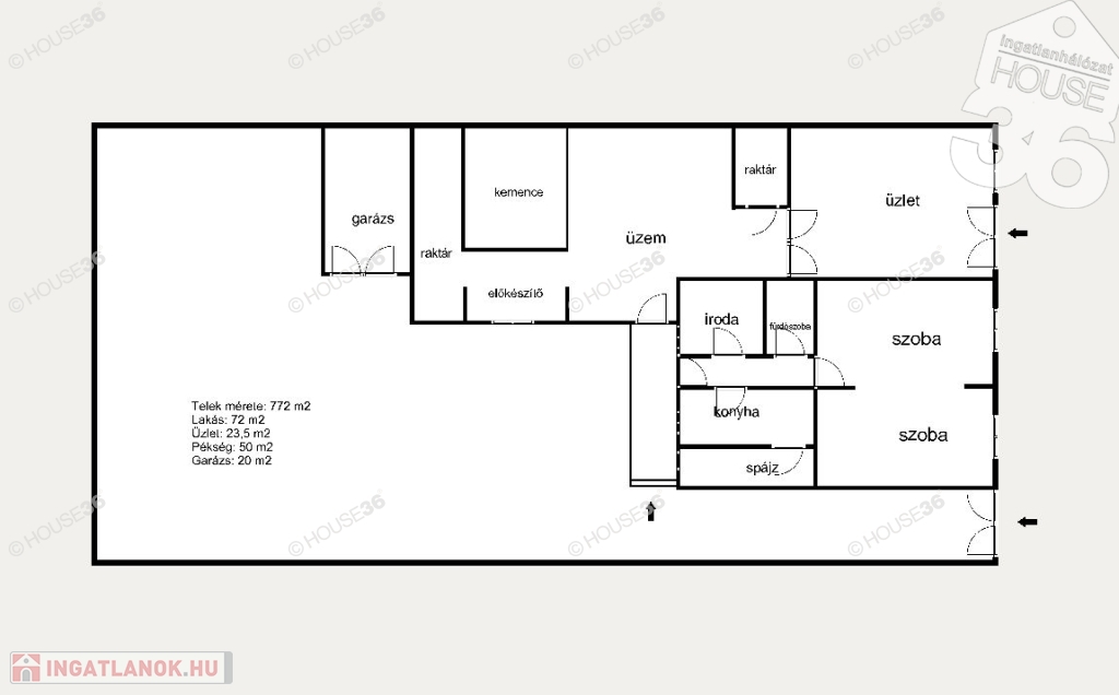
Jellemzői:
- Telek mérete: 772 m2
- Lakás: 72 m2 (2 nagy szoba, folyosó, fürdőszoba, dolgozó szoba, konyha, kamra)
- Üzlethelyiség: 23,5 m2
- Pékség: 50 m2 (2 raktár, előkészítő, sütőkemencés helység)
- Garázs: 20 m2


Figyelem az adatlap megbízónktól kapott adatok alapján készült, pontosságáért felelősséget nem tudunk vállalni!Szolgáltatásaink Kereső ügyfeleink számára INGYENESEK!Amennyiben eladó-kiadó ingatlana van vagy finanszírozási megoldást keres , hívjon, megtaláljuk a legjobb lehetőséget Önnek! A HOUSE36 kínálatában található összes ingatlannal kapcsolatban tudok felvilágosítást nyújtani!
Hívjon bizalommal!
Az iroda legfrissebb, aktuális kínálatát a HOUSE36 saját weboldalán találja!

Családi ház részletei

Ár: 54 990 000 Ft
Méret: 72 négyzetméter
Azonosító: 11444275
Irodai azonosító: 3618378-4784194
Telek: 772 négyzetméter
Ingatlan állapota: Átlagos
Jelleg: családi ház
Építőanyag: Kérdezzen rá a hirdetőtől »
Fűtés jellege: Cirkó
Fűtés módja: Gáz
Kor: 50 évesnél régebbi
Szintek száma: Földszintes
Egész szobák: 2

Egyéb jellemzők

  • Garázs

Térkép

Hasonló családi ház hirdetések

Eladó családi ház

Kiskunfélegyháza

Eladó egy kívül teljesen felújított netto 230 m2-es ( akár 5 szobás ...

Eladó családi ház

Kiskunfélegyháza

Stílusos és energiatakarékos tégla építésű családi otthon. 92 m² ...

Eladó családi ház

Kiskunfélegyháza

Kiskunfélegyháza szívében eladó egy kétszintes, tulajdoni lapon 93 m2-es, ...

Eladó családi ház

Kiskunfélegyháza

Kiváló elhelyezkedésű, 575 m2-es telken álló, 110 m2-es, 3 szobás, téglaépítésű ...

Hasonló családi ház hirdetések

Eladó családi ház

Kiskunfélegyháza

Eladó egy kívül teljesen felújított netto 230 m2-es ( akár 5 szobás ...

Eladó családi ház

Kiskunfélegyháza

Stílusos és energiatakarékos tégla építésű családi otthon. 92 m² ...

Eladó családi ház

Kiskunfélegyháza

Kiskunfélegyháza szívében eladó egy kétszintes, tulajdoni lapon 93 m2-es, ...

Eladó családi ház

Kiskunfélegyháza

Kiváló elhelyezkedésű, 575 m2-es telken álló, 110 m2-es, 3 szobás, téglaépítésű ...