Eladó családi ház Kiskunlacháza 69 900 000 Ft

Leírás

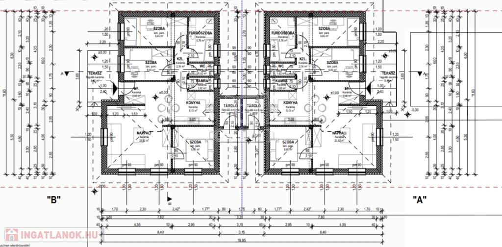
Kiskunlacháza kedvelt utcájában, a szomszédtól fedett kerti tárolóval elkülönített ikerház hátsó "B" lakása eladó, 742 m2 saját kerttel.
KIVÁLÓ KIVITELEZŐ, VERSENYKÉPES ÁRON, KIVÁLÓ OTTHONT AJÁNL ÖNNEK! CSOK +, H-TARIFA!!

Az otthon 75 négyzetméteres, ehhez + kerti tároló 3 m2 és terasz 9 m2 kapcsolódik.
Helyiségei: nappali 23,62 m2, szoba 8,85 m2, szoba 9,45 m2, szoba 8,05 m2, konyha 8,13 m2, fürdő szoba 5,76 m2, közlekedő 2,18 m2, előtér 2,40 m2, kamra 1,62 m2, wc 1,62 m2, terasz 8,85 m2, tároló 3,00 m2.

A telek ideális 742 négyzetméteres, a szomszédot csak akkor látjuk és halljuk ha mi is szeretnénk, a teraszon zavartalanul pihenhetünk.

Az otthon beton alapra, tégla falazattal, fa födémmel, beton cserép fedéssel épül meg.
Az épület külső nyílászárói (ablakok) műanyag szerkezetűek 6 légkamrás 3 rétegű hőszigetelt üvegezéssel.
A bejárati biztonsági ajtó több ponton záródó.
A homlokzaton 10 cm Dryvit rendszerű, a födémben 25 cm szálas szerkezetű, míg a padlóban 10 cm lépésálló nikecell szigetelés kerül beépítésre.
Fűtése/ hűtése, meleg vízellátása hőszivattyúval (levegő) történik padlófűtéssel. A H tarifa kedvező üzemeltetési költséget biztosít.
Burkolatok választhatóak keretösszegig, felette a vevő kompenzál. Szaniterek keretösszegig választhatók.
A kert alap kertrendezéssel kerül átadásra, viacolorozott autóbeállóval és személybejáróval.

Az alaprajz változtatható, burkolatok választhatóak, a kivitelező igyekszik minden vásárlói igényt kielégíteni.
Az ikerfelek külön mérőórával, külön helyrajzi számmal rendelkeznek, társas házi alapító okirat készül.
Az ingatlan várható átadása 2026 nyara.Három utcafronti és három belső ikerfél épül.
A hirdetésben feltöltött képek között a kivitelező által épített házak képei kerültek feltöltésre.
Első "A" lakás 504 m2 kert, 75 m2 ára: 68.900.000 ft
Hátsó "B" lakás 742 m2 kert, 75 m2 ára: 69.900.000 ft

Várom megtisztelő hívását!

FINANSZÍROZÁS:
Nálunk mindent egy helyen intézhet:
- hivatalos ingatlanközvetítés;
- szakszerű jogi képviselet;
- profi CSOK-PLUSZ, és hitelügyintézés: 16 Bank, több mint 100 konstrukció;

A részletes adatvédelmi tájékoztató folyamatosan elérhető a oldalon

Családi ház részletei

Ár: 69 900 000 Ft
Méret: 75 négyzetméter
Azonosító: 11565688
Irodai azonosító: 387393
Cím: Toldi Miklós utca
Telek: 742 négyzetméter
Ingatlan állapota: Kitűnő
Jelleg: ikerház
Építőanyag: Tégla
Fűtés jellege: Geotermikus
Fűtés módja: Hőszivattyú
Komfort fokozat: Összkomfort
Kor: Új építésű
Szintek száma: Földszintes
Egész szobák: 4

Egyéb jellemzők

  • Csatorna
  • Garázs
  • Pince
  • Terasz

Térkép

Hasonló családi ház hirdetések

Eladó családi ház

Kiskunlacháza

ÁRCSÖKKENÉS 69.900.000--->65.600.000 ft CSAK NOVEMBERBEN! ÚJ ÉPÍTÉSŰ ...

Eladó családi ház

Kiskunlacháza

Kiskunlacháza kedvelt részén, központhoz közel kínálunk megvételre, ...

Eladó családi ház

Kiskunlacháza

Eladó önálló családi ház Kiskunlacházán! Kiskunlacháza központhoz ...

Eladó családi ház

Kiskunlacháza

KISKUNLACHÁZÁN ÚJ ÉPÍTSŰ IKERHÁZFÉL KERTKAPCSOLATTAL! Figyelmébe ...

Hasonló családi ház hirdetések

Eladó családi ház

Kiskunlacháza

ÁRCSÖKKENÉS 69.900.000--->65.600.000 ft CSAK NOVEMBERBEN! ÚJ ÉPÍTÉSŰ ...

Eladó családi ház

Kiskunlacháza

Kiskunlacháza kedvelt részén, központhoz közel kínálunk megvételre, ...

Eladó családi ház

Kiskunlacháza

Eladó önálló családi ház Kiskunlacházán! Kiskunlacháza központhoz ...

Eladó családi ház

Kiskunlacháza

KISKUNLACHÁZÁN ÚJ ÉPÍTSŰ IKERHÁZFÉL KERTKAPCSOLATTAL! Figyelmébe ...