Eladó családi ház Kiskunlacháza 77 350 000 Ft

Leírás

Eladó önálló családi házak Kiskunlacházán!

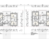
Nyugodt, csendes környezetben kínálunk megvételre nettó 90,67 nm-es önálló családi házat 506 nm-es telken.


A ház paraméterei:
alapterülete: nettó 90,67 nm.
beosztása:
- előtér 3,12 nm,
- nappali 21,32 nm,
- konyha 5,04 nm,
- fürdőszoba 6,28 nm,
- WC 1,56 nm,
- háztart.h 6,38 nm,
- közlekedő 4,15 nm,
- szoba 11,94 nm,
- szoba 11,54 nm,
- szoba 11,14 nm,
- gardrób 8,2 nm,
- terasz 12,8 nm,
- terasz 1,8 nm.


Műszaki paraméterek:

- 30-as Leier falazó blokk,
- 10-es Leier válaszfal tégla,
- 15 cm-es vtg Hungarocell szigetelés,
- műanyag fehér nyílászárók 3 rétegű üvegezés,
- Leier betoncserép,
- műanyag hőszigetelt bejárati ajtó ( fehér) 85.000.-Ft értékben,
- hősszivattyús fűtés, padlófűtéssel,
- hideg- meleg burkolatok 5000 Ft/nm anyag értékben,
- utcafronton beton panel kerítés,
- ház körül betonjárda,
- egyéb kerítések fém oszlop drótfonattal,
- 1x 32 Amper 1 fázis, H tarifás óra,


Várható átadás: 2026 évvége.
A kivitelező referencia munkái megtekinthetőek.

Amivel segítjük az Ön ingatlan vásárlását:
- ingyenes hitelügyintézés (CSOK és Babaváró és egyéb hitel
ügyintézése is)
- jogi háttér,
- földhivatali ügyintézés,
- energetikai tanúsítvány ügyintézése,
- a vevő számára ingyenes az ingatlanközvetítés.
Irodánk 30 éves tapasztalattal áll ügyfelei rendelkezésére!

Várom szíves megkeresését!

Családi ház részletei

Ár: 77 350 000 Ft
Méret: 91 négyzetméter
Azonosító: 11601896
Irodai azonosító: 393048
Cím: Kiskunlacháza
Telek: 506 négyzetméter
Ingatlan állapota: Kitűnő
Jelleg: családi ház
Építőanyag: Tégla
Fűtés jellege: Geotermikus
Fűtés módja: Hőszivattyú
Komfort fokozat: Összkomfort
Kor: Új építésű
Szintek száma: Földszintes
Egész szobák: 4

Egyéb jellemzők

  • Csatorna
  • Garázs
  • Pince
  • Terasz

Térkép

Hasonló családi ház hirdetések

Eladó családi ház

Kiskunlacháza

Kiskunlacháza kedvelt részén, központhoz közel kínálunk megvételre, ...

Eladó családi ház

Kiskunlacháza

KISKUNLACHÁZÁN ÚJ ÉPÍTSŰ IKERHÁZFÉL KERTKAPCSOLATTAL! Figyelmébe ...

Eladó családi ház

Kiskunlacháza

Eladó önálló családi ház Kiskunlacházán – bővítési lehetőséggel, ...

Eladó családi ház

Kiskunlacháza

Kiskunlacháza központjához közel, kiváló ár-érték ...

Hasonló családi ház hirdetések

Eladó családi ház

Kiskunlacháza

Kiskunlacháza kedvelt részén, központhoz közel kínálunk megvételre, ...

Eladó családi ház

Kiskunlacháza

KISKUNLACHÁZÁN ÚJ ÉPÍTSŰ IKERHÁZFÉL KERTKAPCSOLATTAL! Figyelmébe ...

Eladó családi ház

Kiskunlacháza

Eladó önálló családi ház Kiskunlacházán – bővítési lehetőséggel, ...

Eladó családi ház

Kiskunlacháza

Kiskunlacháza központjához közel, kiváló ár-érték ...