Eladó családi ház Kóka 59 900 000 Ft

Leírás

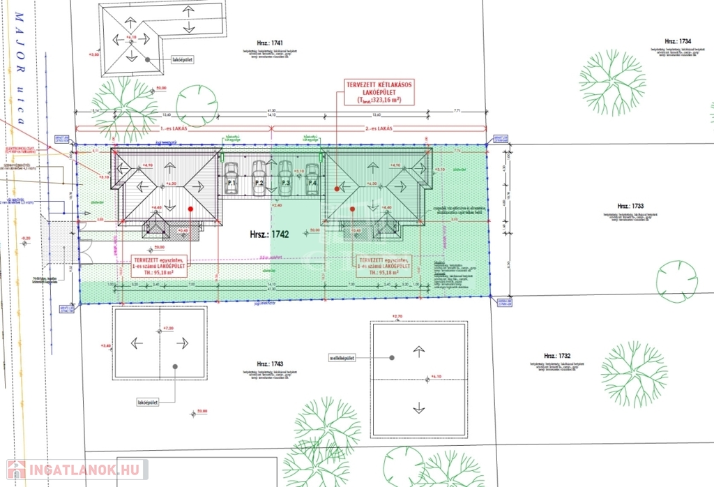
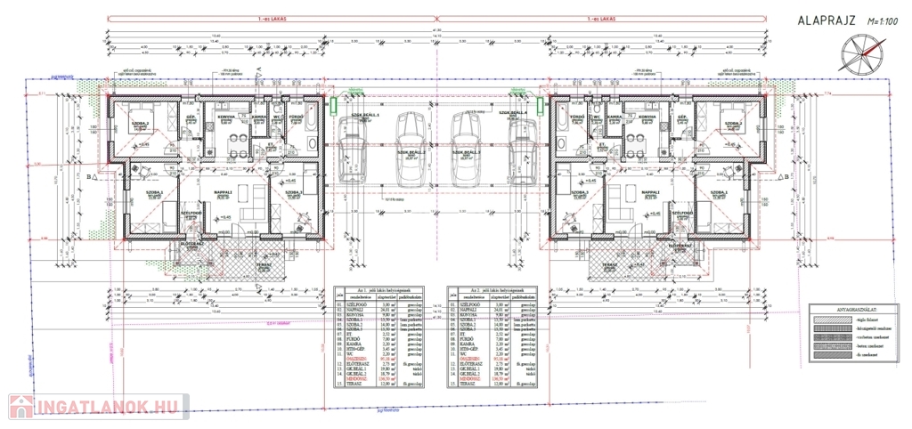
Kókán a Major utca 13. szám alatt, nettó 95,14 m2-es három szoba + amerikai konyhás nappalival rendelkező, energiahatékony ikerházfelek eladók, számos referenciával rendelkező kivitelezőtől!

A hirdetési képek között egy korábbi, már értékesített referencia ingatlan is szerepel.

Az utcafronti ingatlan 455 m2-es, a hátsó ingatlan 760 m2-es telkerésszel fog rendelkezni.

Az ingatlanok csak a fedett kocsibeállókkal érintkeznek.

A tartószerkezeti falak Porotherm P30N+F téglából, betonkoszorúval, fa födémes tetőszerkezettel készülnek. A lábazat 10 cm polisztirol lépésálló, a homlokzatok 15cm-es EPS, a vízszintes födém 25 cm ásványgyapot szigeteléssel lesz ellátva.

Három rétegű üvegekkel szerelt, hat légkamrás műanyag thermo nyílászárók kerülnek beépítésre.

A minimális energiaigényt a megfelelő szigetelésen kívül a megújuló energiát használó gépészet is biztosítja. A fűtést levegő-víz hőszivattyús rendszer fogja végezni.

Burkolatok , szaniterek, belső ajtók, csaptelepek választhatóak a következő értékhatárig:

-Hidegburkolat: 3000 Ft.-/m2
-Melegburkolat: 3000 Ft.-/m2
-Beltéri ajtók: 30.000.Ft.-/db
-Fürdőkád: 40.000.- Ft.-
-Csaptelepek: 15000.- Ft.-/db

Magasabb árú választás is lehetséges, a különbség finanszírozásával.

A kivitelező korábban Sülysápon épített, már birtokbaadott ingatlanjait komoly érdeklődés esetén szívesen megmutatjuk referenciaként.

Csok plusz, Otthon Start igényelhető!

Tervezett átadás 2026 második negyedéve

Érdeklődő ügyfeleinknek a tervdokumetációt és a műszaki tartalmat készséggel rendelkezésre bocsájtjuk.

INGYENES hitel tanácsadás, CSOK Plusz ügyintézés!
BANKFÜGGETLEN hitelcentrumunk az összes elérhető bank és hitelintézet ajánlatát versenyezteti az Ön kedvéért, ráadásul DÍJMENTESEN.

- Egyedi, bankfiókban nem elérhető kamat- és díjkedvezmények
- Hitelképesség vizsgálat
- Idő, energia és pénz megtakarítás
- Teljes hivatali ügyintézés

Amennyiben hirdetésem felkeltette az érdeklődését vagy egyéb információra van szüksége hívjon bizalommal!

Családi ház részletei

Ár: 59 900 000 Ft
Méret: 95 négyzetméter
Azonosító: 11567064
Irodai azonosító: 386783
Cím: Major utca
Telek: 760 négyzetméter
Ingatlan állapota: Kitűnő
Jelleg: családi ház
Építőanyag: Tégla
Fűtés jellege: Geotermikus
Fűtés módja: Hőszivattyú
Komfort fokozat: Összkomfort
Kor: Új építésű
Szintek száma: Földszintes
Egész szobák: 4

Egyéb jellemzők

  • Csatorna
  • Garázs
  • Pince
  • Terasz

Térkép

Hasonló családi ház hirdetések

Eladó családi ház

Kóka

Eladó új építésű, energiahatékony ikerházfelek Kókán! Kóka, Felsővásártér ...

Eladó családi ház

Kóka

Kókán az Isaszegi utcában , 3079 m2-es 21 méter széles utcafronttal rendelkező ...

Eladó családi ház

Kóka

Kókán a József Attila utca 6. szám alatt, 1425 m²-es telken, nettó 93,2 ...

Hasonló családi ház hirdetések

Eladó családi ház

Kóka

Eladó új építésű, energiahatékony ikerházfelek Kókán! Kóka, Felsővásártér ...

Eladó családi ház

Kóka

Kókán az Isaszegi utcában , 3079 m2-es 21 méter széles utcafronttal rendelkező ...

Eladó családi ház

Kóka

Kókán a József Attila utca 6. szám alatt, 1425 m²-es telken, nettó 93,2 ...