Eladó családi ház Kóka 63 900 000 Ft

Leírás

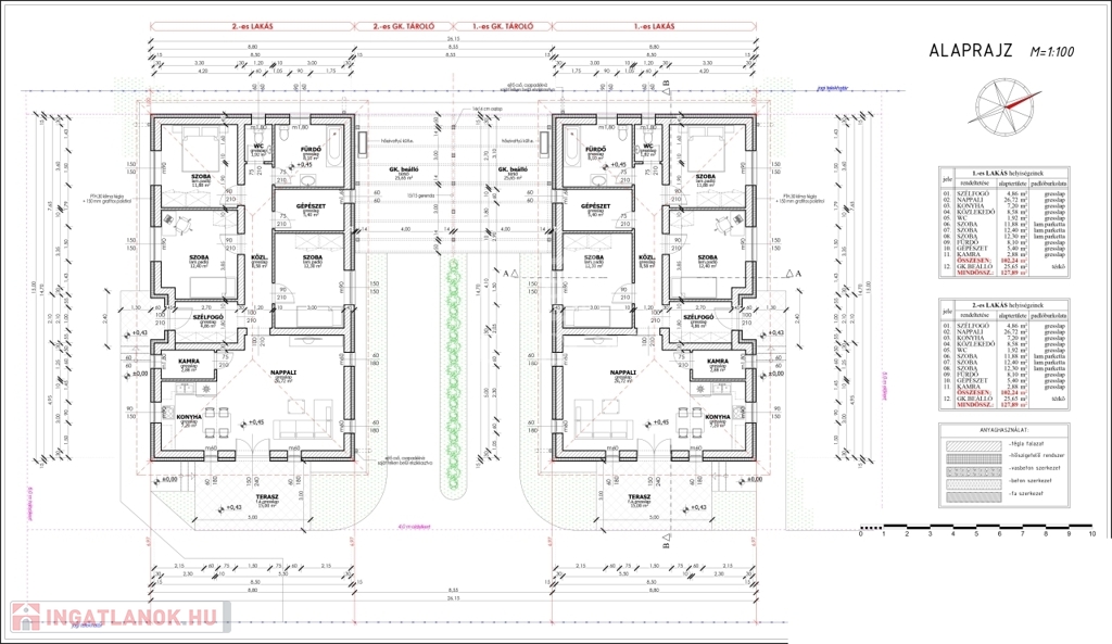
Eladó új építésű, energiahatékony ikerházfelek Kókán!

Kóka, Felsővásártér 61/A szám alatt, egy 1306 m²-es telken kínálunk eladásra két, nettó 102,24 m²-es családi házat, amerikai konyhás nappalival és három külön nyíló szobával.

A két ingatlan kizárólag a fedett autóbeállón keresztül érintkezik egymással.
Az első házhoz 470 m²-es, míg a hátsó házhoz egy 560 m²-es, kizárólagos használatú, lekerített telekrész tartozik.

Műszaki tartalom:

-Porotherm P30N+F téglából épült teherhordó falak
-Betonkoszorú, fa födémes tetőszerkezet
-10 cm-es lépésálló polisztirol lábazati szigetelés
-10 cm-es Austrotherm Grafitos homlokzati hőszigetelés
-25 cm ásványgyapot szigetelés a vízszintes födémen
-3 rétegű, 6 légkamrás műanyag thermo nyílászárók

Fűtés és energetika:

A ház fűtését modern, levegő-víz hőszivattyús rendszer biztosítja, mely a kiváló szigetelésnek köszönhetően rendkívül alacsony energiafelhasználást garantál.

Burkolatok, szaniterek, ajtók – választhatóak az alábbi keretösszegekig:

-Hidegburkolat: 3.000 Ft/m²
-Melegburkolat: 3.000 Ft/m²
-Beltéri ajtók: 30.000 Ft/db
-Fürdőkád: 40.000 Ft
-Csaptelep: 15.000 Ft/db

Magasabb árkategóriájú termékek választása esetén a különbözet önállóan finanszírozható.

Finanszírozás:

CSOK Plusz és Otthon Start támogatás elérhető!

Ingyenes hiteltanácsadás és CSOK Plusz ügyintézés

Bankfüggetlen hitelcentrumunk versenyezteti a bankokat az Ön érdekében

Egyedi, csak rajtunk keresztül elérhető kamat- és díjkedvezmények

Teljes körű ügyintézés – időt, pénzt és energiát spórolunk Önnek!

Tervezett átadás: 2026 második negyedéve

Tervdokumentációt és részletes műszaki leírást érdeklődő ügyfeleink számára készséggel biztosítunk.

Ha felkeltette érdeklődését az ajánlat, hívjon bizalommal!

Családi ház részletei

Ár: 63 900 000 Ft
Méret: 102 négyzetméter
Azonosító: 11609718
Irodai azonosító: 385764
Cím: Felsővásár Tér
Telek: 560 négyzetméter
Ingatlan állapota: Kitűnő
Jelleg: ikerház
Építőanyag: Tégla
Fűtés jellege: Geotermikus
Fűtés módja: Hőszivattyú
Komfort fokozat: Összkomfort
Kor: Új építésű
Szintek száma: Földszintes
Egész szobák: 4

Egyéb jellemzők

  • Csatorna
  • Garázs
  • Pince
  • Terasz

Térkép

Hasonló családi ház hirdetések

Eladó családi ház

Kóka

Kókán a József Attila utca 31. szám alatt, 1406 m2-es telkeken, újonnan ...

Eladó családi ház

Kóka

Kókán a József Attila utca 6. szám alatt, 1425 m²-es telken, nettó 93,2 ...

Eladó családi ház

Kóka

Kókán a József Attila utca 27. szám alatt, 1407 m2-es telkeken, újonnan ...

Eladó családi ház

Kóka

Kókán az Erdősor utca 16- szám alatt , 680 m2-es telken nettó 93,05 m2-es ...

Hasonló családi ház hirdetések

Eladó családi ház

Kóka

Kókán a József Attila utca 31. szám alatt, 1406 m2-es telkeken, újonnan ...

Eladó családi ház

Kóka

Kókán a József Attila utca 6. szám alatt, 1425 m²-es telken, nettó 93,2 ...

Eladó családi ház

Kóka

Kókán a József Attila utca 27. szám alatt, 1407 m2-es telkeken, újonnan ...

Eladó családi ház

Kóka

Kókán az Erdősor utca 16- szám alatt , 680 m2-es telken nettó 93,05 m2-es ...