Eladó családi ház Komárom 115 000 000 Ft

Leírás

Az Openhouse Komárom Ingatlaniroda kínálatában eladó a #179177 hivatkozási számú komáromi családi ház.

Új építésű, földszintes családi ház eladó Komárom – Koppánymonostoron.


Képzelje el, hogy egy nyugodt, zöldövezeti környezetben Komárom Koppánymonostori városrészében él, egy vadonatúj, modern, földszintes családi házban, amelyet még az építés során az igényeihez lehet igazítani.


Ez az új építésű, könnyűszerkezetes lakóingatlan már kivitelezés alatt áll, és tökéletes választás mindazok számára, akik minőséget, tágas tereket és korszerű műszaki megoldásokat keresnek.


Otthon, ahol minden részlet átgondolt, melynek kivitelezése már megkezdődött...


Várható befejezés: 2026 május.


Főbb paraméterek:



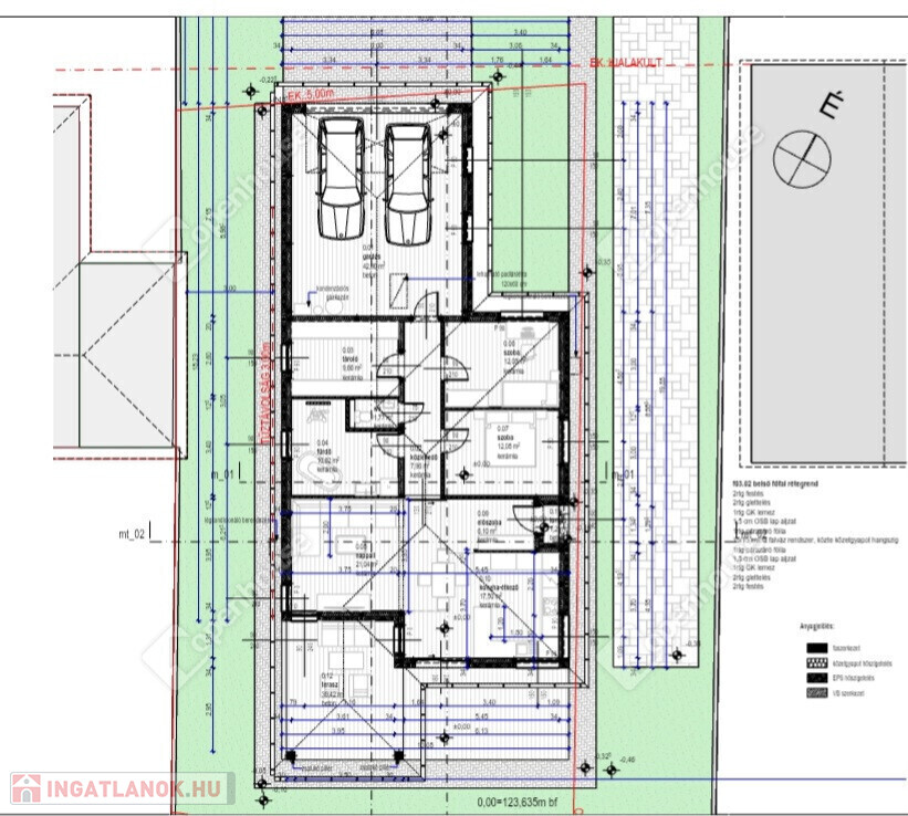
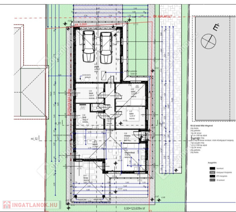
Telek mérete: 729 m²
Lakóépület hasznos alapterülete: 141,71 m²
Kivitel: földszintes
Terasz: 39,42 m²
Tornác: 1,21 m²
Dupla garázs: 42,9 m² (utcafronti bejárattal)

Tervezett belső elrendezés:



2 hálószoba (12,08 m² + 12,08 m²)
Nappali (21,04 m²)
Konyha–étkező (17,5 m²)
Fürdőszoba (10,62 m²)
Külön WC (1,77 m²)
Előszoba (6,1 m²)
Közlekedő (7,96 m²)
Tároló (9,66 m²)
Garázs (42,9 m²)

Szerkezeti kialakítás:



Alapozás: betonsávalap
Falszerkezet: fa szerkezetű könnyűszerkezet
Födém: fafödém
Tetőszerkezet: hagyományos ácsolt tető

Korszerű, műszaki és gépészeti tartalom:



Fűtés, melegvíz használat : gázkazán + hőszivattyús légkondicionáló.
Villamosenergia hálózat: 3 fázis / 32 A
Hűtés: hőszivattyús légkondicionáló berendezés.
Energiatakarékos megoldások.

Mindez alacsony rezsit eredményez új tulajdonosának.


Az épület kialakítása megfelel minden vonatkozó előírásnak:



állékonyság és mechanikai szilárdság
tűzbiztonság
higiénia, egészség- és környezetvédelem
biztonságos használat és akadálymentesség
zaj- és rezgésvédelem
energiatakarékosság és megfelelő hővédelem

Fontos szempont! - saját igényre, személyre szabhatóság lehetősége!!!





Miért ez az ingatlan?


új építés – modern megoldások
földszintes – kényelmes, időtálló kialakítás
tágas terek, praktikus elrendezés
kiváló elhelyezkedés Komárom egyik keresett részén
még alakítható részletek a kivitelezés során


Ha Ön olyan családi házat keres, amely valóban otthonná válhat, és fontos számára a minőség, a nyugalom és az értékállóság, ne hagyja ki ezt a lehetőséget!


A részletes műszaki tartalom, tervek és kivitelezési fázisok személyes találkozó keretében megtekinthetők, átbeszélhetők.


Komoly érdeklődés esetén várom szíves megkeresését.


Velenceiné Kinga

Ha felkeltette érdeklődését ez az eladó komáromi családi ház, vagy bármely más családi ház és bővebb információt szeretne, keressen bizalommal.Hivatkozási szám: #179177

Az Openhouse Komárom Ingatlaniroda tagjaként várom Önt az országos hálózatunk teljes kínálatával.

A családi ház vásárláshoz hitelt igényelne? Ingyenes hitelközvetítéssel segít Önnek bankfüggetlen hitelszakértőnk.

További szolgáltatásainkkal (pl. értékbecslés, energetikai tanúsítvány, jogi háttér) is segítjük Önt a vásárlásban.
Az otthon érték. Az ingatlan üzlet.

Referencia szám: 179177

Családi ház részletei

Ár: 115 000 000 Ft
Méret: 141 négyzetméter
Azonosító: 11598947
Irodai azonosító: 179177-5147348
Telek: 729 négyzetméter
Ingatlan állapota: Épülő
Jelleg: családi ház
Építőanyag: Könnyűszerkezetes
Fűtés jellege: Egyedi
Fűtés módja: Gáz
Kor: Új építésű
Szintek száma: Földszintes
Egész szobák: 3

Térkép

Hasonló családi ház hirdetések

Eladó családi ház

Komárom

Komárom egyik csendes, szinte forgalom mentes utcájában eladó egy kiváló ...

Eladó családi ház

Komárom

Komárom frekventált, mégis csendes pontján, a Kelemen László utcában ...

Hasonló családi ház hirdetések

Eladó családi ház

Komárom

Komárom egyik csendes, szinte forgalom mentes utcájában eladó egy kiváló ...

Eladó családi ház

Komárom

Komárom frekventált, mégis csendes pontján, a Kelemen László utcában ...