Eladó családi ház Koroncó 77 998 000 Ft

Leírás

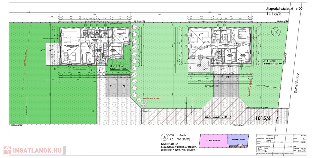
91 m²-es új családi ház 1060 m² saját telekkel, távol a város zajától – Koroncón épül álmai otthona!

A település tömegközlekedéssel és autóval is könnyen megközelíthető. A 83-as út új szakaszán a város, bevásárlóközpontok, az Ipari Park nagyon gyorsan elérhető.
Koroncó csendes új építésű utcájában családi házat kínálok Önnek.
1805 m2-es, hatalmas telken 2 ház épül fel használati megosztással. Mindkettő teljesen körül keríthető. Közős terület egy 125 m2-es bejáró. A két háznak közös fala nincs.
A hirdetésben kínált ingatlanhoz 1060 m2 SAJÁT TELEK tartozik.

A 91,29 m2-es L2 ház helyiségei: amerikai konyhás nappali, 3 HÁLÓSZOBA, kamra, fürdőszoba+ WC, közlekedő, háztartási helyiség, külön WC, közlekedő és előszoba.
Az ingatlanhoz 15,4 m2 terasz és 2,93 m2-es fedett bejárat tartozik.

Az ár emelt szintű fűtéskész állapotra vonatkozik 5% Áfával és tartalmazza a telekhányadot, ami 12.999.000,- Ft.
Megbízható, nagy múltú kivitelező! Megtekinthető referencia házak.
Kulcsrakész befejezés egyedi ajánlat alapján kérhető! Válaszfalak: szabadon mozgathatóak
Nagyobb ház is rendelhető. Ebben az esetben kb bruttó 700.000 Ft / m2 felárral lehet kalkulálni.
Várható befejezés: Szerződéskötéstől számított 9 hónap

Műszaki tartalom:
- Leier 30-as N+F tégla falazat, 10 cm tégla válaszfalak
- Lábazati fal: Két sor Leier zsalukő
- Födém hőszigetelés: 30 cm vastag szálas hőszigetelés.
- Fehér,műanyag rendszerű hőszigetelt, 3 rétegű üvegezésű ablakok (k=0,6 az üvegre), a téglafalba építve purhabbal, biztonsági bejárati ajtóval
- Baumit Star EPS hőszigetelő rendszer 15 cm homlokzati szigeteléssel
- padlószerkezetbe 10 cm lépésálló hőszigetelés kerül
- fafödém 30 cm ásványgyapot hőszigeteléssel
- Bramac Natura, Mediterrán standard barna vagy szürke cserép
- Félkör keresztmetszetű színezett ereszcsatorna. Vápa horganyzott lemez.
- FŰTÉS Saunier Duval Semiatek Condens kazánnal, gyári szerelt dupla falú kémény, minden helyiségben PADLÓFŰTÉSSEL
- Klíma előkészítés
- Murvázott terasz a rajzott jelzett 15 m2 ben . Gépkocsibeálló + hozzá vezető közös út és behajtó murvázva. Térköves beálló és terasz felár ellenében kérhető.

A külső közművek (víz, villany , szennyvíz, csapadékvíz elvezetés) biztosítása az épületen kivül az épületen belüli csatlakozási pontig a megrendelő feladata ! Ennek költsége kb. bruttó 2.500.000 Ft ami külön fizetendő.

Egyéni megbeszélés alapján értékegyeztetéssel még választható. ( Napelem, hőszivattyú, klíma, redőny....)

Ajánlom mindazoknak akik Győr vonzáskörzetének egyik kiemelkedően fejlődő településén, kellemes környezetben szeretnék élni életüket.
Az építkezés ILLETÉKMENTES!

CSOK, kamattámogatott hitelek igényelhetők. Díjmentes hitelügyintézés!

Hívjon gyorsan, mert már nagyon kevés hasonló projekt indul!
Várom hívását! 20/2777237

Családi ház részletei

Ár: 77 998 000 Ft
Méret: 91 négyzetméter
Azonosító: 11575586
Irodai azonosító: 122925
Cím: Koroncó
Telek: 1060 négyzetméter
Ingatlan állapota: Átlagos
Jelleg: családi ház
Építőanyag: Kérdezzen rá a hirdetőtől »
Fűtés jellege: Cirkó
Kor: Új építésű
Egész szobák: 4

Egyéb jellemzők

  • Terasz

Hasonló családi ház hirdetések

Eladó családi ház

Koroncó

Eladó Koroncón, ÚJ építésű tégla Családi Ház, TOP kategóriás hőszivattyúval. Minőségi ...

Eladó családi ház

Koroncó

Koroncón lehet az új otthonotok, egy 1060 nm-es telken, ...

Eladó családi ház

Koroncó

ELADÓ ÚJ ÉPÍTÉSŰ, TÉGLA CSALÁDI HÁZ KORONCÓN. Álmodja meg otthonát ...

Hasonló családi ház hirdetések

Eladó családi ház

Koroncó

Eladó Koroncón, ÚJ építésű tégla Családi Ház, TOP kategóriás hőszivattyúval. Minőségi ...

Eladó családi ház

Koroncó

Koroncón lehet az új otthonotok, egy 1060 nm-es telken, ...

Eladó családi ház

Koroncó

ELADÓ ÚJ ÉPÍTÉSŰ, TÉGLA CSALÁDI HÁZ KORONCÓN. Álmodja meg otthonát ...