Eladó családi ház Kótaj 99 000 000 Ft

Leírás

Új építésű, modern családi ház eladó Kótajban – prémium kivitel, azonnal költözhető!
Kótaj csendes, rendezett részén kínálunk eladásra egy új építésű, önálló családi házat, amely egy 1500 m²-es, automata öntözőrendszerrel ellátott, parkosított telken helyezkedik el. A teljes térburkolás és kerítés elkészült, így az ingatlan azonnal költözhető, minden fontos elem készen áll.
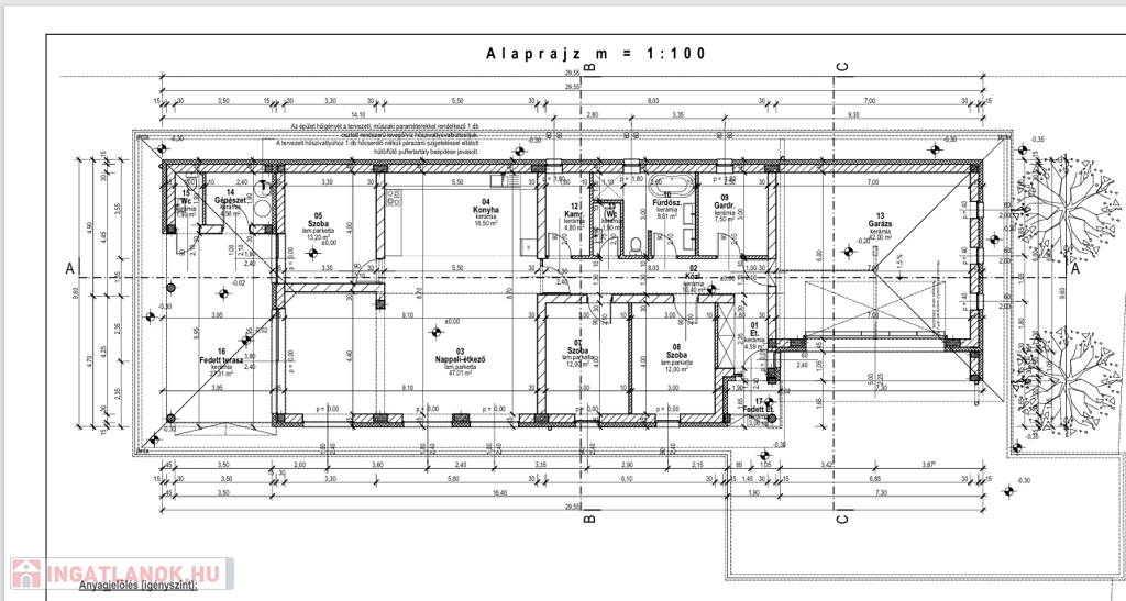
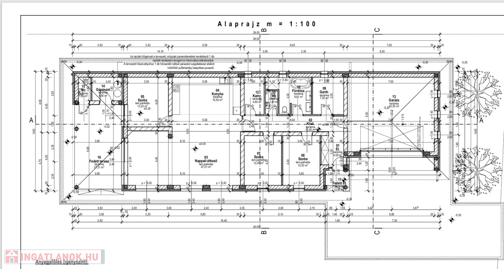
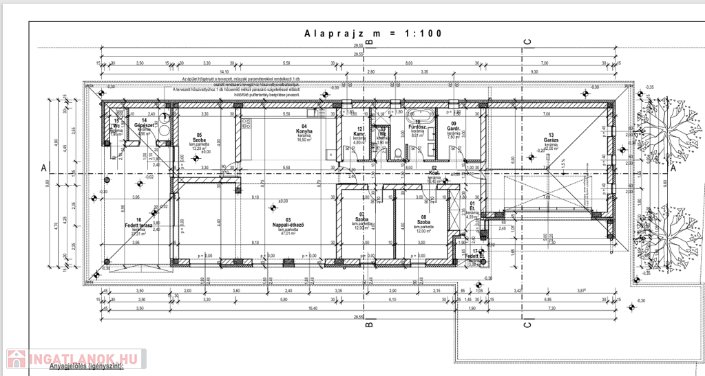
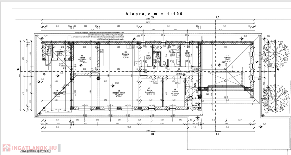
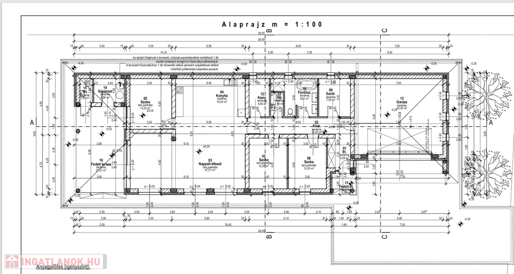
A ház 187 m² lakótérrel,3 hálószoba + nappalis kialakítású, 29 m²-es fedett terasszal, valamint 42 m²-es, kétállásos garázzsal rendelkezik. A belső tér jól átgondolt elrendezésű, külön mosókonyha és kazánház is helyet kapott, így a mindennapi élet kényelmesen szervezhető.
A tágas, világos nappali hatalmas üvegfelületekkel és tolófallal kapcsolódik a kerthez. A fedett terasz közvetlenül elérhető a nappaliból és a hálószobából is, ezáltal tökéletes helyszíne lehet családi vagy baráti összejöveteleknek.
Főbb műszaki jellemzők:


Új építésű, modern kialakítás

energetika besorolás A++

3 rétegű, hőszigetelt nyílászárók


15 cm homlokzati szigetelés


30 cm padlástér szigetelés


Hőszivattyús padlófűtés


Napelemrendszer előkészítése


Teljes kamerarendszer kiépítve


Riasztórendszer előkészítve


2 db klímaberendezés


Automata öntözőrendszer


Teljes térburkolat (járdák, kocsibeálló stb.)


Teljes kerítés


Mosókonyha és kazánház


42 m²-es, kétállásos garázs


29 m²-es fedett terasz nappali- és hálószoba kapcsolattal


Ez az ingatlan kiváló választás azok számára, akik egy igényes, energiatakarékos, modern otthont keresnek, nagy telekkel, rejtett költségek nélkül Megbízható kivitelezőtől ,100% készültségű,azonnal birtokba vehető!Az ingatlan azonosítója: 98892Érdeklődni: +36209268433 Az ingatlan azonosítója: 98892 Érdeklődni: +36209268433

Családi ház részletei

Ár: 99 000 000 Ft
Méret: 187 négyzetméter
Azonosító: 11590644
Irodai azonosító: 98892
Telek: 1500 négyzetméter
Ingatlan állapota: Épülő
Jelleg: családi ház
Építőanyag: Tégla
Fűtés jellege: Geotermikus
Kor: 1-5 éves
Egész szobák: 3