Eladó családi ház Lajoskomárom 128 000 000 Ft

Leírás

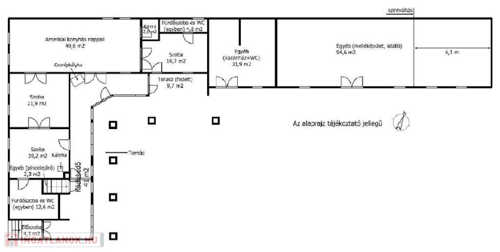
A Balatontól mintegy 20 km-re fekvő Lajoskomárom rendezett, zöldövezeti utcájában kínálok megvételre egy gondosan felújított, kúria jellegű 200 m2-es lakóépületet, amely 1700 m2-es telekkel, gazdasági épületekkel és fedett terasszal rendelkezik.

A déli fekvésű, világos, két bejárattal rendelkező ház 1900-ban épült, felújítása 2016-ban, a teljes tetőszerkezet cseréje 2017-ben történt meg. A házban három hálószoba, két fürdőszoba, három WC, nappali-konyha, spájz, közlekedők, kazánház és mosókonyha található. A hálószobák tágasak és csendesek, kettő közvetlen fürdőszoba-kapcsolattal. A jól felszerelt, központi pultos konyhához nagy spájz tartozik.

A fűtés elektromos padlófűtéssel és vegyes tüzelésű kazánnal, radiátoros hőleadással történik. Kiegészítőként cserépkályha, fatüzelésű kályha és klíma biztosítja a komfortot. A meleg vizet elektromos rendszer és puffertartály szolgáltatja. A fa nyílászárók hőszigeteltek, szúnyoghálóval felszereltek.

A burkolatok laminált parketta és kerámia, a falak festettek. A ház egy része alatt pince található. Az ingatlan tehermentes, azonnal költözhető, a kert gondozott, kútvízzel öntözhető, több termő gyümölcsfával. A telken két nagy gazdasági épület és fatároló is rendelkezésre áll. Igény esetén egy több mint két hektáros terület is megvásárolható hozzá.

Az energetikai tanúsítvány készítése folyamatban van, amint rendelkezésre áll, úgy azzal a hirdetés frissítésre kerül.



Referencia szám: M310170

Családi ház részletei

Ár: 128 000 000 Ft
Méret: 200 négyzetméter
Azonosító: 11615731
Irodai azonosító: M310170-5012047
Telek: 1757 négyzetméter
Ingatlan állapota: Kitűnő
Jelleg: családi ház
Építőanyag: Tégla
Fűtés jellege: Cirkó
Fűtés módja: Gáz
Komfort fokozat: Dupla komfort
Kor: 50 évesnél régebbi
Szintek száma: Földszintes
Egész szobák: 4

Egyéb jellemzők

  • Garázs

Térkép