Eladó családi ház Leányfalu 134 900 000 Ft

Leírás

Jó állapotú családi ház Leányfalun eladó!

- duplakomfort
- fedet garázs
- nagy méretű kert
- nagy méretű terasz
- erkély

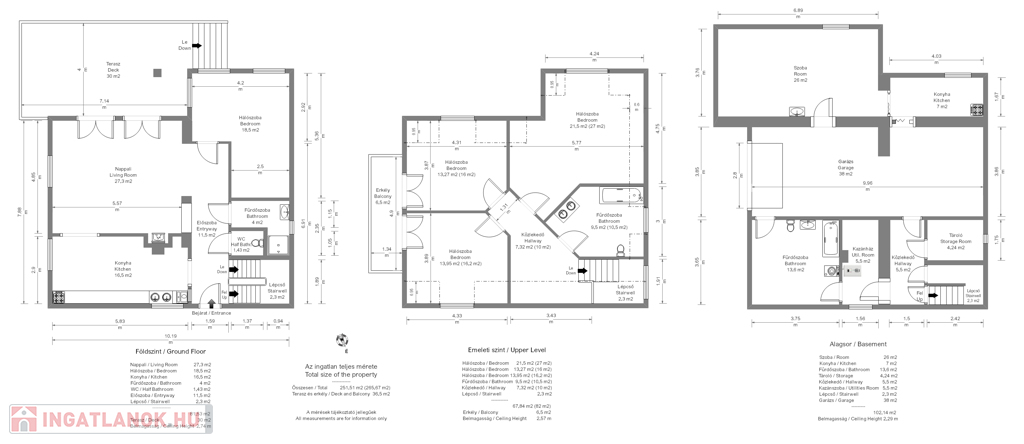
Közvetlenül Szentendre szomszédságában eladó egy 196 nm + garázs, tároló, kazánház, 5 szobás, duplakomfortos, önálló tégla építésű családi ház. A 3 szintes ház földszintjén található egy előszoba, étkezős nappali, ablakos nagyméretű konyha, hálószoba, fürdő és egy különálló wc. Az emeleten 3 normál méretű hálószoba, fürdő+wc és egy erkély. A ház alsó szintjén az alagsorban kapott helyet egy szoba, konyha, fürdő+wc, kazánház, tároló és két személygépkocsi tárolására is kiválóan alkalmas nagy méretű garázs.

A helyiségek méretei az alaprajzon megtalálhatók.

Az ingatlan 2010-ben nagyobb felújításon esett át. A nyári hónapokban 2 db klímaberendezés, a téli időszakban gázkazán és egy kandalló gondoskodik a kellemes hőmérsékletről.

AJÁNLÁS:
Ha olyan ingatlant keres, ami szép, biztonságos, nyugodt környezetben helyezkedik el de mégis közel a fővároshoz, akkor itt megtalálja a számítását! Remek fekvése és kialakítása miatt ez egy értékmegőrző beruházás!

Amennyiben Ön ilyen paraméterekkel rendelkező ingatlant keress, ne is keresse tovább, megtalálta. Hívjon fel, és kérjen időpontot a megtekintésre akár hétvégén is.

VÁSÁROLJON REJTETT KÖLTSÉGEK NÉLKÜL. Az ingatlan készpénzzel és banki hitellel egyaránt megvásárolható.

Kizárólag a mi irodánk kínálatában.

Hitellel kapcsolatban, független hitelszakértőink a jelenleg elérhető legkedvezőbb ajánlatokkal díjmentesen álnak a rendelkezésükre.

Családi ház részletei

Ár: 134 900 000 Ft
Méret: 196 négyzetméter
Azonosító: 11480913
Cím: Móricz Zsigmond út
Telek: 645 négyzetméter
Ingatlan állapota: Kérdezzen rá a hirdetőtől »
Jelleg: családi ház
Építőanyag: Tégla
Fűtés jellege: Központi
Fűtés módja: Gáz
Komfort fokozat: Dupla komfort
Elhelyezkedés: Udvari
Szintek száma: 3 szint
Egész szobák: 5
Nappalik: 1

Egyéb jellemzők

  • Csatorna
  • Garázs
  • Kábel TV
  • Melléképület
  • Parketta
  • Terasz

Térkép

Hasonló családi ház hirdetések

Eladó családi ház

Leányfalu

Ha egy rejtett gyöngyszemet keresa Dunakanyarban, megtalálta! Leányfalu ...

Eladó családi ház

Leányfalu

Ha egy rejtett gyöngyszemet keresa Dunakanyarban, megtalálta! Leányfalu ...

Hasonló családi ház hirdetések

Eladó családi ház

Leányfalu

Ha egy rejtett gyöngyszemet keresa Dunakanyarban, megtalálta! Leányfalu ...

Eladó családi ház

Leányfalu

Ha egy rejtett gyöngyszemet keresa Dunakanyarban, megtalálta! Leányfalu ...