Eladó családi ház Lulla 130 000 000 Ft

Leírás

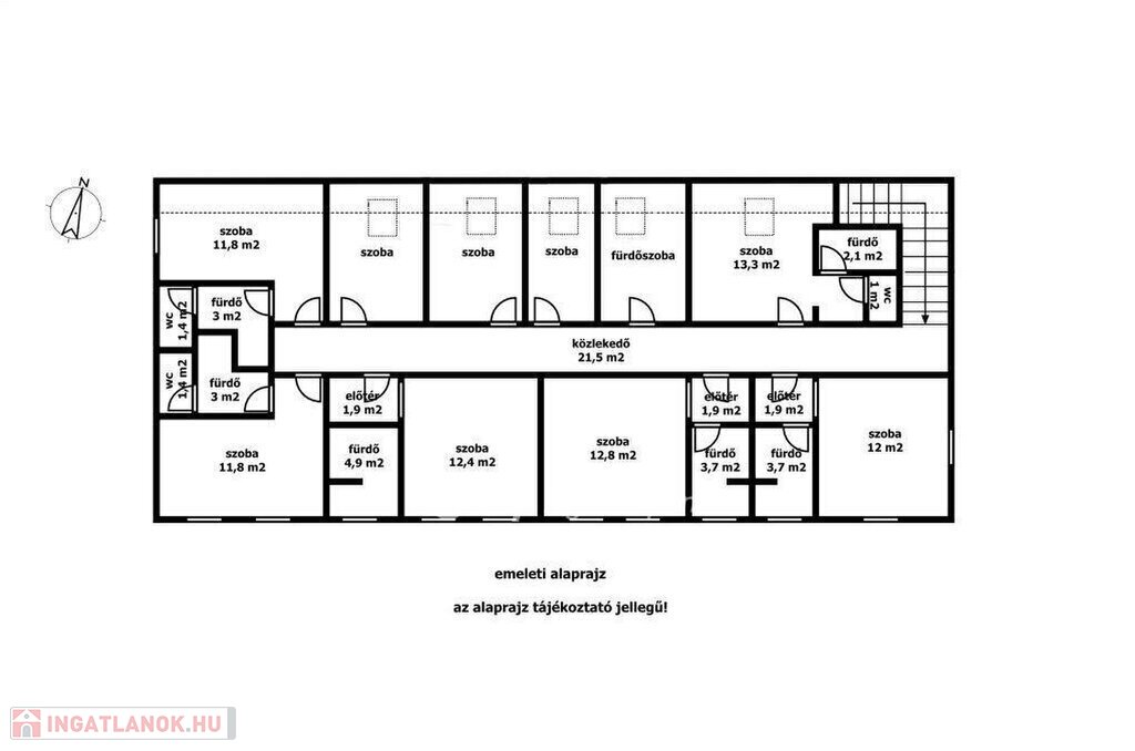
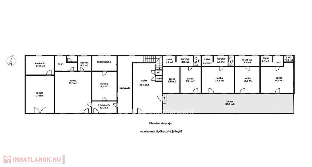
Megvételre kínálok Lullán, a Balaton déli partjához közeli településen, egy 380 m2-es lakóházat. Az ingatlan kialakítása alkalmassá teszi kereskedelmi szálláshelyként, munkásszállásként, rehabilitációs/rekreációs/egészségügyi központként való hasznosításra.14 szobának van jelenleg saját fürdőszobája. A konyha előírásoknak megfelelően került kialakításra. Két épület helyezkedik el egymás mellett: az utca felőli vályog, mely a hátsó téglaépület építésekor (2001) részben felújításra került, 4 éve új tetőt, a legutóbbi felújítás során pedig új burkolatokat kapott. A hátsó, kétszintes tégla épület teljeskörű felújítása az elmúlt 2 évben történt. Az épület új tetőt kapott napelemmel (47 kW). A felújítás kiterjedt a villany-, és vízvezetékek, valamint a burkolatok és szaniterek cseréjére is.
Az ingatlan villany, víz közművekkel rendelkezik jelenleg. ( A gáz visszakötésére van lehetőség. ) Fűtése hűtő-, fűtő klímákkal, elektromos fali fűtőpanelekkel megoldott. A házat körülölelő 7323 m2-es telek is számtalan lehetőséget kínál. A terület enyhe lejtésű, szabályos téglalap alakú. Lulla távolsága a Balatontól mindössze 16 km. További információkért, megtekintésért kérem hívjon!

Referencia szám: M326047

Családi ház részletei

Ár: 130 000 000 Ft
Méret: 380 négyzetméter
Azonosító: 11612619
Irodai azonosító: M326047-5198441
Telek: 7323 négyzetméter
Ingatlan állapota:
Jelleg: családi ház
Építőanyag: Tégla
Fűtés jellege: Villany
Fűtés módja: Villany
Komfort fokozat: Összkomfort
Kor: 21-50 éves
Szintek száma: 1 szint
Egész szobák: 15

Egyéb jellemzők

  • Garázs

Térkép