Eladó családi ház Magyarhertelend 67 900 000 Ft

Leírás

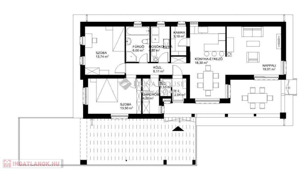
Magyarhertelenden eladó egy ÚJ ÉPÍTÉSŰ, modern hőszivattyús fűtésrendszerrel kivitelezett (padlófűtés, hűtő-fűtő klímával felszerelt), br.92m2, nettó 81 m2 lakóterű, amerikai konyha nappali+ 2 szoba, gardróbszoba, fürdő-wc, mosdó elosztású ÖNÁLLÓ EGYSZINTES családi ház 1392m2-es, sík, TÓRA PANORÁMÁS telken felszíni gépkocsi parkolóval.
Az ingatlan kiváló minőségben kerül kivitelezésre.
Az épület napfényes, falai 30-as Porotherm téglából készülnek, 15cm-es grafitos hőszigetelést kapnak, ablakai pedig 3 rétegű műanyag ablakok!Várható átadás:2025. nyara
IRÁNYÁR:67,9 M Ft

67900000 Ft

Referencia szám: HZ077467

Családi ház részletei

Ár: 67 900 000 Ft
Méret: 81 négyzetméter
Azonosító: 11578176
Irodai azonosító: HZ077467-4804291
Telek: 1392 négyzetméter
Összesített energetikai besorolás: A+
Ingatlan állapota: Épülő
Jelleg: családi ház
Építőanyag: Tégla
Fűtés jellege: Villany
Fűtés módja: Hőszivattyú
Komfort fokozat: Dupla komfort
Kor: Új építésű
Szintek száma: Földszintes
Egész szobák: 3

Egyéb jellemzők

  • Garázs

Térkép

Hasonló családi ház hirdetések

Eladó családi ház

Magyarhertelend

Magyarhertelenden eladó csodálatos környezetben, a kis tótól 100m-re, ...

Hasonló családi ház hirdetések

Eladó családi ház

Magyarhertelend

Magyarhertelenden eladó csodálatos környezetben, a kis tótól 100m-re, ...