Eladó családi ház Majosháza 76 900 000 Ft

Leírás

Majosháza – Csendes, családbarát település a Duna mentén

Majosháza egy nyugodt, kb. 1 735 fős község Pest vármegyében, a Ráckevei–Duna partján
Ideális azoknak, akik Budapest közelében keresnek békés, zöldövezeti otthont.

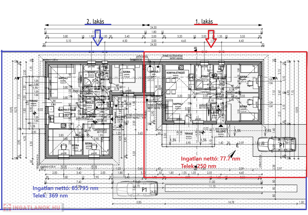
Itt kerül megépítésre- eladásra egy modern, új építésű, tégla szerkezetű családi ház.

A földszintes, 85 m² alapterületű otthon ideális méret, különösen olyan családok számára, akik kompakt, de jól használható tereket keresnek.

Az ingatlan rövid műszaki tartalma:
-Teherhordó falak 30 cm-es Porotherm Kerámia falazóelemből épülnek
-10 cm-es grafitos hőszigeteléssel
-fa födémszerkezet
-zárófödém hőszigetelése: szálas hőszigetelés min. 30 cm-es vastagságban
-beton cserép – páraáteresztő tetőfólia 3 rtg.-ü polipropilén
-nyílászárok: műanyag ablak/ ajtók, - 3 rétegű hőszigetelő – hangszigetelő üvegezéssel
-hőszivattyú rendszer
-közmű: víz, villany, csatorna

Az ingatlanban előszoba, 3 szoba, nappali+ konyha, fürdőszoba, vendég Wc., közlekedő, tároló, gépészet és egy terasz kerül kialakításra.

Az ingatlan összkomfortos, a hőszivattyús fűtésrendszer pedig alacsony rezsivel járó, környezetbarát megoldást nyújt. A padlófűtés kényelmes hőérzetet biztosít, míg a modern szigetelés és hőszigetelt nyílászárók garantálják az optimális energiahatékonyságot.

A hozzá tartozó 369 m²-es saját telek elegendő teret ad pihenőkertnek, kisebb játszótérnek vagy kerti tárolónak. A földszintes elrendezés nemcsak kényelmes, de hosszú távon is praktikus – idősebbek és kisgyermekes családok számára különösen előnyös.

A kiváló fekvés és az alacsony energiafogyasztás kombinációja miatt ez az eladó ház Majosházán remek lehetőség mindazoknak, akik biztonságos, modern és hosszú távon fenntartható otthont keresnek.

Csendes, kertvárosi élet Budapest közelében:
Oktatás: Majosházán található a Majosházi Református Általános Iskola és a Napraforgó Óvoda, amelyek minőségi oktatási lehetőséget biztosítanak a helyben élőknek.
Egészségügy: A településen elérhető háziorvosi és gyermekorvosi ellátás, fogászat, gyógyszertár, valamint orvosi ügyelet – a helyi egészségügyi szolgáltatások megbízható ellátást nyújtanak a lakosoknak.
Szabadidő, közösség: Majosházát barátságos, aktív közösség jellemzi, helyi rendezvényekkel és szabadtéri programokkal. A település területén történelmi templomok, valamint a közeli Duna-part kiváló lehetőséget nyújt pihenésre és kikapcsolódásra
Közlekedés: A község jól megközelíthető autóval (M0 körgyűrű, 51-es főút), és a helyi közlekedési lehetőségek is megfelelőek a dolgozni járók számára.

Amennyiben felkeltette érdeklődését az ingatlan várom szeretettel hívását időpont egyeztetésre!

Tőlünk vásárolt ÜGYFELEK számos kedvezményt vehetnek igénybe min pl. független- ingyenes hitelügyintézés és tanácsadás, MÖMAX áruházban vásárlás esetén 10 % , DIEGO-ba vásárlás esetén 10%, Vét-Gát vagyonvédelem- Szolgálat ingyenes bekötés, Sentinel- Max védelmi szolgálat ingyenes bekötés, Asztalos belső építés minden megrendelésből 10%, Enterprise Development online marketing és honlap készítés 10%.

Családi ház részletei

Ár: 76 900 000 Ft
Méret: 85 négyzetméter
Azonosító: 11548403
Telek: 369 négyzetméter
Ingatlan állapota: Épülő
Jelleg: ikerház
Építőanyag: Tégla
Fűtés jellege: Hőszivattyú
Fűtés módja: Hőszivattyú
Komfort fokozat: Összkomfort
Kor: Új építésű
Elhelyezkedés: Udvari
Szintek száma: Földszintes
Bútorozott: Nem bútorozott
Egész szobák: 4
Nappalik: 1

Egyéb jellemzők

  • Csatorna
  • Garázs
  • Melléképület
  • Parketta
  • Terasz

Térkép

Hasonló családi ház hirdetések

Eladó családi ház

Majosháza

Budapesttől 30 percre új épitésű tárolókapcsolatos ikerház mindkét ...

Hasonló családi ház hirdetések

Eladó családi ház

Majosháza

Budapesttől 30 percre új épitésű tárolókapcsolatos ikerház mindkét ...