Eladó családi ház Máriakéménd 124 990 000 Ft

Leírás

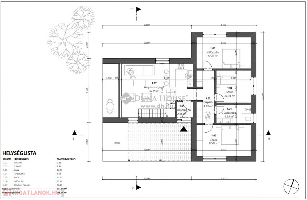
Máriakéménden újonnan épülő tóparti ház eladó.Az ingatlan két szintes, 171m2 , 6 hálószoba+nappali-konyha étkezős, padlófűtéses, egy kisebb és egy nagyobb terasszal, autóbeállóval .A nappalijából nyíló terasz tópartra néz.Jelen építkezési fázisban még könnyen saját igényre formálható.A lakóparkban összesen 5 ház épül.Bővebb információért keressen bizalommal akár hétvégén is.

Referencia szám: HZ048556-NOK

Családi ház részletei

Ár: 124 990 000 Ft
Méret: 171 négyzetméter
Azonosító: 11592678
Irodai azonosító: HZ048556-4692406
Telek: 500 négyzetméter
Ingatlan állapota: Épülő
Jelleg: családi ház
Építőanyag: Könnyűszerkezetes
Fűtés jellege: Villany
Fűtés módja: Hőszivattyú
Kor: Új építésű
Szintek száma: Földszintes
Egész szobák: 4

Egyéb jellemzők

  • Garázs

Térkép