Eladó családi ház Mikebuda 40 000 000 Ft

Leírás

Mikebudán Otthon Start ,csok hitelre és ,falusi csok felvételére alkalmas felújított vegyes falazatú ház vált eladóvá.
 Budapesttől autóval egy órányi távolságra Pest vármegyében Mikebudán csendes nyugodt környéken belterületen, aszfaltozott út mentén , erdő közelében értékesitésre kinálok egy, 110 nm hasznos alapterületű belülről felújitott családi házat 1551 nm telken.
Az épület betonsáv alapon , vert vályog falazatú , fafödémes , cserép héjazatú.
Az épületet belülről újjá varázsolták.
Víz ,villany ,fűtés , fürdő szoba  fürdő káddal, és épített zuhany kabin új állapotban.
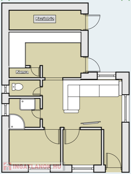
 A belső térben, nagy nappali , konyha ebédlővel , két tágas lakószoba, külön WC,a füdőben épített zuhany és sarok kád is rendelkezésre áll.
 A konyha ebédlő kert kapcsolatos terasszal nyílik a szabadba, innen juthatunk a kazánházhoz .
Fűtését tekintve padlófűtés van az egész házban , mely vegyes kazánról működtethető.
Gáz udvaron belül . /Akár átszerelhető gázcirkósra./
Új műanyag nyílászárók hőszigetelt üveggel, modern belső fa ajtókkal a szobákban a burkolat lamináltpadló a többi helyiségben kerámia csempe.
A külső teraszok és a ház szigetelése színezése a leendőbeli tulajdonosok ízlésére és igényére bízva .
 A közművek közül villany, vezetékes viz, gáz bekötésre került, csatorna nincs, mivel a településen nincs kiépitve.
Adásvételi szerződést követően azonnal költözhető! Minden a képek szerint! Kisbolt, óvoda, buszmegálló 3 perces sétával elérhetõ. Albertirsára Volán buszjárat közlekedik, innen ütemes vonatközlekedéssel Budapest Nyugati pályaudvar 50 perces menetidõvel közelíthetõ meg, autóval Budapest egy óra. Amennyiben felkeltettem érdeklõdését, hívjon bizalommal és nézzük meg együtt!

Családi ház részletei

Ár: 40 000 000 Ft
Méret: 110 négyzetméter
Azonosító: 11535728
Telek: 1551 négyzetméter
Ingatlan állapota:
Jelleg: családi ház
Építőanyag: Kérdezzen rá a hirdetőtől »
Komfort fokozat: Összkomfort
Egész szobák: 3

Egyéb jellemzők

  • Garázs
  • Kábel TV
  • Melléképület
  • Parketta
  • Pince
  • Terasz

Hasonló családi ház hirdetések

Eladó családi ház

Mikebuda

Otthonteremtés egyszerűen!Otthonstart hitelre, CSOK Pluszra és Falusi CSOK-ra ...

Hasonló családi ház hirdetések

Eladó családi ház

Mikebuda

Otthonteremtés egyszerűen!Otthonstart hitelre, CSOK Pluszra és Falusi CSOK-ra ...